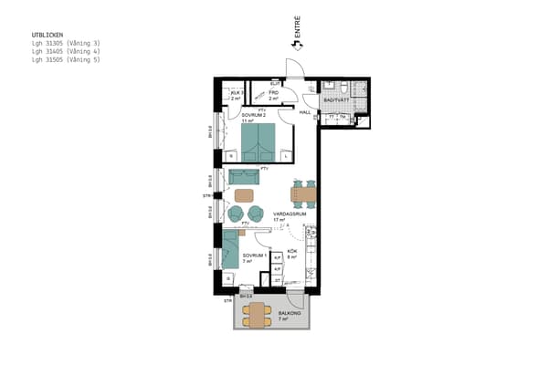
3 rok, 70 m²
Välkommen till denna genomgående trea med en härlig balkong som vetter mot gården. Med öppen planlösning och vitmålade väggar skapas en ljus och luftig atmosfär i hela bostaden.
Den mattlackade ekparketten i svagt vitlaserad ton ger ett modernt och stilrent intryck. Sovrummen och hallen är utrustade med praktiska skjutdörrsgarderober, vilket ger gott om förvaringsmöjligheter. Dessutom finns ett förråd direkt i bostaden för ytterligare utrymme.
Köket är utrustat med betonggråa köksluckor, mörk bänkskiva och ett stiligt stänkskydd av vitmålade väggar och mörk bakkantslist. Här finns även en induktionshäll, ugn under hällen samt ett överskåp med integrerad mikro och diskmaskin. Badrummet är stilrent inrett med vitt kakel och grått klinkergolv. Här finns tvättmaskin, torktumlare, kommod vid tvättstället och en duschvägg i klarglas.
Lägenheten är belägen i det lummiga skogsområdet Huvudsta Strandpark, endast 250 meter från Bällstaviken. Kvarteret Utblicken består av sex trapphus och utformas som ett långt lamellhus i olika höjder. Med en stor innergård och ljusa jordnära färger på fasaden blir detta ett barnvänligt och trivsamt boende. I närområdet finns allt du behöver, med Hemköp, vårdcentral, frisörsalong och gym inom 10 minuters promenadavstånd. Sundbyberg centrum erbjuder flera populära restauranger och butiker, och Bromma Blocks shoppingcenter ligger precis över Bällstaviken. Förskolor och grundskolor finns i närheten, såsom Lilla Alby skola (F-6) och Tallbackaskolan (F-9). Dessutom finns det gott om gymnasieskolor att välja mellan i både Solna och Stockholms kommun.
Kommunikationerna är utmärkta med närhet till tunnelbanans blå linje. Solna strand och Huvudsta tunnelbanestation ligger endast några minuters promenadväg bort. Flera busslinjer passerar genom området, och Sundbybergs pendeltågsstation samt tvärbanan finns bara 15 minuter bort. Med bil tar du dig smidigt upp på Huvudstaleden för att resa norr- eller söderut. För cykelentusiaster finns det också cykelvänliga vägar längs vattnet som leder till Pampas Marina, Karlberg och Stockholm city. Dessutom är det nära till Bromma flygplats.
Varmt välkommen till denna trevliga bostad med fantastiska omgivningar och bekvämligheter!
Den mattlackade ekparketten i svagt vitlaserad ton ger ett modernt och stilrent intryck. Sovrummen och hallen är utrustade med praktiska skjutdörrsgarderober, vilket ger gott om förvaringsmöjligheter. Dessutom finns ett förråd direkt i bostaden för ytterligare utrymme.
Köket är utrustat med betonggråa köksluckor, mörk bänkskiva och ett stiligt stänkskydd av vitmålade väggar och mörk bakkantslist. Här finns även en induktionshäll, ugn under hällen samt ett överskåp med integrerad mikro och diskmaskin. Badrummet är stilrent inrett med vitt kakel och grått klinkergolv. Här finns tvättmaskin, torktumlare, kommod vid tvättstället och en duschvägg i klarglas.
Lägenheten är belägen i det lummiga skogsområdet Huvudsta Strandpark, endast 250 meter från Bällstaviken. Kvarteret Utblicken består av sex trapphus och utformas som ett långt lamellhus i olika höjder. Med en stor innergård och ljusa jordnära färger på fasaden blir detta ett barnvänligt och trivsamt boende. I närområdet finns allt du behöver, med Hemköp, vårdcentral, frisörsalong och gym inom 10 minuters promenadavstånd. Sundbyberg centrum erbjuder flera populära restauranger och butiker, och Bromma Blocks shoppingcenter ligger precis över Bällstaviken. Förskolor och grundskolor finns i närheten, såsom Lilla Alby skola (F-6) och Tallbackaskolan (F-9). Dessutom finns det gott om gymnasieskolor att välja mellan i både Solna och Stockholms kommun.
Kommunikationerna är utmärkta med närhet till tunnelbanans blå linje. Solna strand och Huvudsta tunnelbanestation ligger endast några minuters promenadväg bort. Flera busslinjer passerar genom området, och Sundbybergs pendeltågsstation samt tvärbanan finns bara 15 minuter bort. Med bil tar du dig smidigt upp på Huvudstaleden för att resa norr- eller söderut. För cykelentusiaster finns det också cykelvänliga vägar längs vattnet som leder till Pampas Marina, Karlberg och Stockholm city. Dessutom är det nära till Bromma flygplats.
Varmt välkommen till denna trevliga bostad med fantastiska omgivningar och bekvämligheter!












