2 rok, 47 m²
Välkommen till denna 2:a med öppen planlösning, klädkammare och fri utsikt.
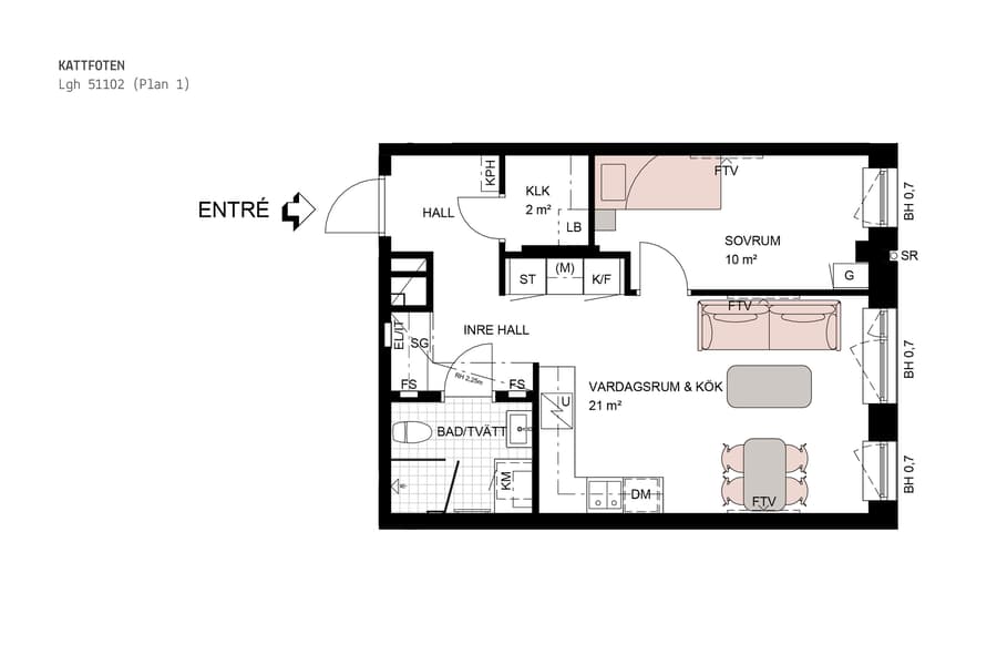
Lägenheten har en genomtänkt och modern planlösning med entré till en hall som erbjuder god förvaring i form av garderob, städskåp och förvaringsskåp. Från hallen nås en inre hall som leder vidare till bostadens olika rum och skapar en naturlig avskiljning mellan entré och bostadsdel. I anslutning till hallen ligger en praktisk klädkammare samt ett rymligt badrum med kaklade ytor, utrustat med WC, dusch, tvättställ, kombimaskin för tvätt och tork samt förvaringsskåp. Badrummet är inrett i neutrala färger med vita kakelplattor och golv i grå klinker.
Vardagsrum och kök utgör en öppen och social yta där köksdelen är placerad längs ena väggen och innehåller kyl/frys, spis, ugn, diskho och diskmaskin. Köket är modernt med vita skåpsluckor som harmoniserar med den gråa bänkskivan som spänner sig en bit upp på väggen och utgör en bakkantslist. Här finns gott om plats för både soffgrupp och matbord, och flera fönster ger ett generöst ljusinsläpp. Sovrummet är separat och rymmer dubbelsäng, sängbord och garderob, vilket ger en lugn och privat sovdel. Sammantaget erbjuder bostaden en ljus, yteffektiv och funktionell planlösning med öppen sällskapsyta, goda förvaringsmöjligheter och ett modernt badrum, vilket gör den väl lämpad för både singelhushåll och par.
Lägenheten har genomgående formats utifrån en stilren känsla med naturliga material såsom ekparkett, fönsterbänkar i natursten och vitmålade väggar.
Järvastaden är ett citynära modernt och familjevänligt område med påtaglig känsla av småstadsidyll. Fina parker, härliga natur- och fritidsområden. För all tänkbar shopping och nöjen så finns Mall of Scandinavia samt Strawberry arena i närheten. Runt knuten erbjuds bra närservice, butiker samt goda kommunikationer.
Lägenheten har en genomtänkt och modern planlösning med entré till en hall som erbjuder god förvaring i form av garderob, städskåp och förvaringsskåp. Från hallen nås en inre hall som leder vidare till bostadens olika rum och skapar en naturlig avskiljning mellan entré och bostadsdel. I anslutning till hallen ligger en praktisk klädkammare samt ett rymligt badrum med kaklade ytor, utrustat med WC, dusch, tvättställ, kombimaskin för tvätt och tork samt förvaringsskåp. Badrummet är inrett i neutrala färger med vita kakelplattor och golv i grå klinker.
Vardagsrum och kök utgör en öppen och social yta där köksdelen är placerad längs ena väggen och innehåller kyl/frys, spis, ugn, diskho och diskmaskin. Köket är modernt med vita skåpsluckor som harmoniserar med den gråa bänkskivan som spänner sig en bit upp på väggen och utgör en bakkantslist. Här finns gott om plats för både soffgrupp och matbord, och flera fönster ger ett generöst ljusinsläpp. Sovrummet är separat och rymmer dubbelsäng, sängbord och garderob, vilket ger en lugn och privat sovdel. Sammantaget erbjuder bostaden en ljus, yteffektiv och funktionell planlösning med öppen sällskapsyta, goda förvaringsmöjligheter och ett modernt badrum, vilket gör den väl lämpad för både singelhushåll och par.
Lägenheten har genomgående formats utifrån en stilren känsla med naturliga material såsom ekparkett, fönsterbänkar i natursten och vitmålade väggar.
Järvastaden är ett citynära modernt och familjevänligt område med påtaglig känsla av småstadsidyll. Fina parker, härliga natur- och fritidsområden. För all tänkbar shopping och nöjen så finns Mall of Scandinavia samt Strawberry arena i närheten. Runt knuten erbjuds bra närservice, butiker samt goda kommunikationer.












