Boka bostaden före någon annan

Läs mer om hur det funkar att boka bostad

4 rok, 108 m²

Till salu
Pris
5 590 000 kr
Avgift
6 564 kr
Våning
2 / 6
Balkong
4 m², Sydost
Tillträde
prel. jan. 2027

Boka bostaden före någon annan!

Den här bostaden går att boka. Läs mer om hur det funkar att boka bostad hos JM.

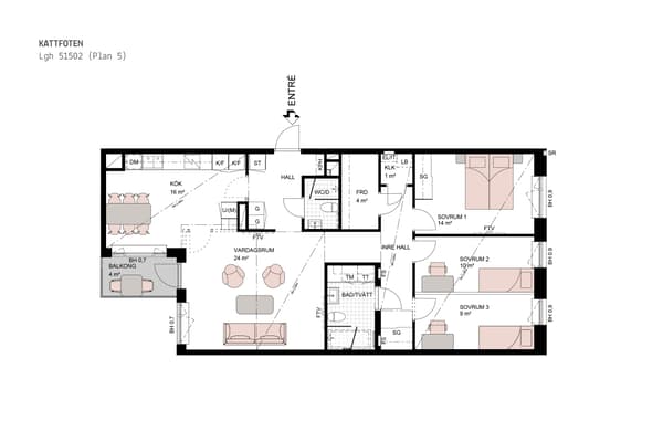
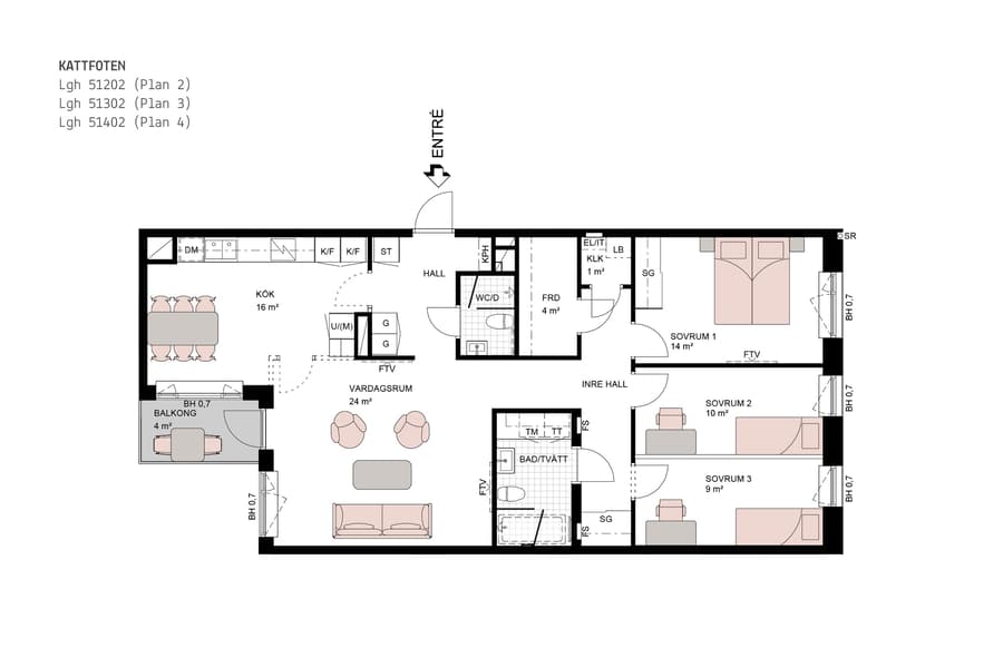
Planlösning

I planlösningen visas bostadsytans disposition. Se information så som mått, hur rummen är uppdelade och balkongens placering.

Floorplan

Balkongutsikt

Visionsbild som visar utsikten från balkongen eller uteplatsen.

Bostäderna är miljömärkta

Läs mer

Trygg bostadsrättsmarknad

Läs mer

Välj bostad

Se och jämför bostäderna i bostadsväljaren. Det du ser är visionsbilder och avvikelser kan förekomma.

Dölj alla bostäder
StatusRumPrisAvgiftBoareaVåningTillträdeNrAdress
Till salu11 990 000 kr3 309 kr38 m²1 / 6prel. mars 202761101Morkullagatan 6Läs mer om objekt 61101
Till salu12 240 000 kr3 133 kr34 m²1 / 6prel. apr. 202781102Lekparksgatan 15ALäs mer om objekt 81102
Till salu22 340 000 kr3 794 kr47 m²1 / 6prel. jan. 202751102Torrängsgatan 18Läs mer om objekt 51102
Till salu22 490 000 kr3 750 kr46 m²3 / 6prel. apr. 202771302Lekparksgatan 17ALäs mer om objekt 71302
Till salu22 640 000 kr3 837 kr48 m²1 / 6prel. apr. 202781104Lekparksgatan 15ALäs mer om objekt 81104
Till salu45 590 000 kr6 564 kr108 m²2 / 6prel. jan. 202751202Torrängsgatan 18Läs mer om objekt 51202

Kattfoten

Kattfoten erbjuder nyproducerade bostadsrätter med ett unikt parkläge i Järvastaden. Här är bostäderna välplanerade, de allra flesta med balkong uteplats eller terrass.

Läs mer om projektet

Tidslinje

Inredningsval
Våren 2026
För dig som köpt en bostad är det nu dags att göra dina inredningsval. Till din hjälp har du projektets inredningsansvarige. Sista dag för inredningsval skiljer sig mellan bostäderna, kontakta mäklare för mer information.

/ 8
laddar

Intresseanmälan

Ansvarig mäklare kommer att kontakta dig med mer information om bostäderna när du har anmält intresse.

Om du har ett konto hos oss sedan tidigare blir du ombedd att logga in för att slutföra din intresseanmälan.

Fler bostäder i närheten

Se alla

Till salu
Solna kommun / Järvastaden / Kattfoten

4 rok, 108 m²

Bostadsrätt, 5 690 000 kr
Våning 3/6
Tillträde prel. feb. 2027

Mån 20/4 17:00Läs mer om objekt 51302
Till salu
Solna kommun / Järvastaden / Kattfoten

4 rok, 108 m²

Bostadsrätt, 5 790 000 kr
Våning 4/6
Tillträde prel. feb. 2027

Mån 20/4 17:00Läs mer om objekt 51402
Till salu
Ljusa och störa öppna ytor (visionsbild).
Planlösning
Solna kommun / Järvastaden / Kattfoten

4 rok, 99 m²

Bostadsrätt, 5 590 000 kr
Våning 2/6
Tillträde prel. mars 2027

Mån 20/4 17:00Läs mer om objekt 61202