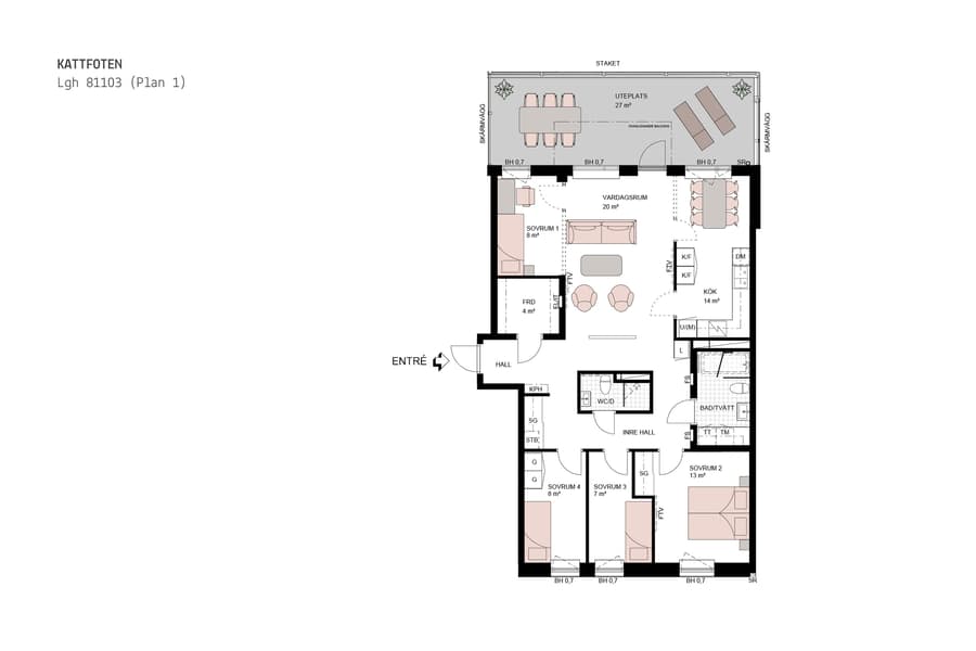
4 rok, 108 m²
Denna generösa fyrarumslägenhet är utformad med fokus på både umgänge och funktion, där planlösningen skapar tydliga zoner för sociala ytor och privata rum. Entrén leder in i en hall med bra avhängningsmöjligheter samt förvaring i garderober och städskåp. Intill hallen finns även ett praktiskt förråd, vilket bidrar till ett lättorganiserat hem.
Vardagsrummet är luftigt och inbjudande med plats för både soffgrupp och umgängesdel. Härifrån nås bostadens uteplats om 27 kvm (nordväst) som erbjuder gott om utrymme för matbord, loungemöbler och solstolar – en naturlig förlängning av vardagsrummet under årets varmare månader. Köket ligger i anslutning till sällskapsytorna och är välutrustat med maskinell standard såsom kyl/frys, spis, ugn, diskho och diskmaskin och har generösa arbetsytor och plats för matgrupp. Det är modernt med vita skåpsluckor som harmoniserar med den gråa bänkskivan som spänner sig en bit upp på väggen och utgör en bakkantslist.
Den mer avskilda delen av bostaden rymmer tre sovrum i varierande storlek. Det största sovrummet passar utmärkt som master bedroom, medan de två mindre sovrummen lämpar sig väl som barnrum, gästrum eller hemmakontor. En inre hall binder samman sovrummen och skapar en lugn och privat sovdel.
Badrummet är rymligt och funktionellt med dusch, WC, tvättställ samt tvätt- och torkmöjligheter och kompletteras av en separat WC, vilket är en uppskattad lösning i det större hushållet. Badrummet är inrett i neutrala färger med vita kakelplattor och golv i grå klinker. Sammantaget erbjuder bostaden en välbalanserad planlösning med stora sällskapsytor, flexibla sovrum och en generös uteplats som ger hemmet en extra dimension.
Lägenheten har genomgående formats utifrån en stilren känsla med naturliga material såsom ekparkett, fönsterbänkar i natursten och vitmålade väggar.
Järvastaden är ett citynära modernt och familjevänligt område med påtaglig känsla av småstadsidyll. Fina parker, härliga natur- och fritidsområden. För all tänkbar shopping och nöjen så finns Mall of Scandinavia samt Strawberry arena i närheten. Runt knuten erbjuds bra närservice, butiker samt goda kommunikationer.
Vardagsrummet är luftigt och inbjudande med plats för både soffgrupp och umgängesdel. Härifrån nås bostadens uteplats om 27 kvm (nordväst) som erbjuder gott om utrymme för matbord, loungemöbler och solstolar – en naturlig förlängning av vardagsrummet under årets varmare månader. Köket ligger i anslutning till sällskapsytorna och är välutrustat med maskinell standard såsom kyl/frys, spis, ugn, diskho och diskmaskin och har generösa arbetsytor och plats för matgrupp. Det är modernt med vita skåpsluckor som harmoniserar med den gråa bänkskivan som spänner sig en bit upp på väggen och utgör en bakkantslist.
Den mer avskilda delen av bostaden rymmer tre sovrum i varierande storlek. Det största sovrummet passar utmärkt som master bedroom, medan de två mindre sovrummen lämpar sig väl som barnrum, gästrum eller hemmakontor. En inre hall binder samman sovrummen och skapar en lugn och privat sovdel.
Badrummet är rymligt och funktionellt med dusch, WC, tvättställ samt tvätt- och torkmöjligheter och kompletteras av en separat WC, vilket är en uppskattad lösning i det större hushållet. Badrummet är inrett i neutrala färger med vita kakelplattor och golv i grå klinker. Sammantaget erbjuder bostaden en välbalanserad planlösning med stora sällskapsytor, flexibla sovrum och en generös uteplats som ger hemmet en extra dimension.
Lägenheten har genomgående formats utifrån en stilren känsla med naturliga material såsom ekparkett, fönsterbänkar i natursten och vitmålade väggar.
Järvastaden är ett citynära modernt och familjevänligt område med påtaglig känsla av småstadsidyll. Fina parker, härliga natur- och fritidsområden. För all tänkbar shopping och nöjen så finns Mall of Scandinavia samt Strawberry arena i närheten. Runt knuten erbjuds bra närservice, butiker samt goda kommunikationer.














