2 rok, 48 m²
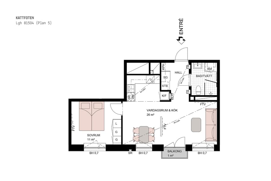
Lägenheten har en välplanerad och modern planlösning med entré till en hall som erbjuder praktisk förvaring i form av garderob och städskåp. I direkt anslutning till hallen ligger det rymliga badrummet med kaklade ytor, utrustat med WC, dusch, tvättställ, kombimaskin för tvätt och tork samt förvaringsskåp. Badrummet är inrett i neutrala färger med vita kakelplattor och golv i grå klinker.
Från hallen öppnar bostaden upp sig mot ett ljust vardagsrum och kök i öppen planlösning där köksdelen är placerad längs ena väggen och innehåller kyl/frys, spis, ugn, diskho och diskmaskin. Köket är modernt med vita skåpsluckor som harmoniserar med den gråa bänkskivan som spänner sig en bit upp på väggen och utgör en bakkantslist. Det finns gott om plats för både matbord och soffgrupp, och stora fönster ger ett generöst ljusinsläpp.
Det separata sovrummet om rymmer dubbelsäng, sängbord och garderober och erbjuder en lugn och avskild sovdel. Från vardagsrummet nås balkongen (sydost, sol morgon och förmiddag) som ger en trivsam utemiljö med plats för mindre möbler. Sammantaget erbjuder bostaden en öppen och social planlösning med tydlig rumsindelning, goda förvaringsmöjligheter, ett modernt badrum samt balkong som förlänger bostadens sällskapsyta.
Lägenheten har genomgående formats utifrån en stilren känsla med naturliga material såsom ekparkett, fönsterbänkar i natursten och vitmålade väggar.
Järvastaden är ett citynära modernt och familjevänligt område med påtaglig känsla av småstadsidyll. Fina parker, härliga natur- och fritidsområden. För all tänkbar shopping och nöjen så finns Mall of Scandinavia samt Strawberry arena i närheten. Runt knuten erbjuds bra närservice, butiker samt goda kommunikationer.
Från hallen öppnar bostaden upp sig mot ett ljust vardagsrum och kök i öppen planlösning där köksdelen är placerad längs ena väggen och innehåller kyl/frys, spis, ugn, diskho och diskmaskin. Köket är modernt med vita skåpsluckor som harmoniserar med den gråa bänkskivan som spänner sig en bit upp på väggen och utgör en bakkantslist. Det finns gott om plats för både matbord och soffgrupp, och stora fönster ger ett generöst ljusinsläpp.
Det separata sovrummet om rymmer dubbelsäng, sängbord och garderober och erbjuder en lugn och avskild sovdel. Från vardagsrummet nås balkongen (sydost, sol morgon och förmiddag) som ger en trivsam utemiljö med plats för mindre möbler. Sammantaget erbjuder bostaden en öppen och social planlösning med tydlig rumsindelning, goda förvaringsmöjligheter, ett modernt badrum samt balkong som förlänger bostadens sällskapsyta.
Lägenheten har genomgående formats utifrån en stilren känsla med naturliga material såsom ekparkett, fönsterbänkar i natursten och vitmålade väggar.
Järvastaden är ett citynära modernt och familjevänligt område med påtaglig känsla av småstadsidyll. Fina parker, härliga natur- och fritidsområden. För all tänkbar shopping och nöjen så finns Mall of Scandinavia samt Strawberry arena i närheten. Runt knuten erbjuds bra närservice, butiker samt goda kommunikationer.













