6 rok, 113 m²
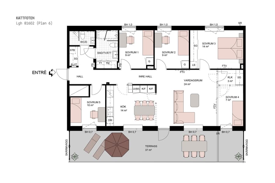
Denna rymliga sexrumslägenhet är utformad för att ge gott om plats åt både familjeliv, umgänge och arbete, med en planlösning som skapar tydliga och funktionella zoner. Via entrén möts man av en hall med bra avhängningsytor och förvaring i garderober och städskåp. Härifrån leder en inre hall vidare in i bostaden och knyter samman de mer privata rummen på ett naturligt sätt.
Bostadens sociala ytor är generösa och centreras kring vardagsrummet som enkelt rymmer både soffgrupp och umgängesytor. Intill ligger köket, planerat med maskinell utrustning (kyl/frys, spis, ugn, diskho och diskmaskin) och har goda arbetsytor och plats för ett större matbord – en självklar samlingspunkt i vardagen. Köket är modernt med vita skåpsluckor som harmoniserar med den gråa bänkskivan som spänner sig en bit upp på väggen och utgör en bakkantslist. Från sällskapsytorna nås bostadens stora och soliga terrass om 37 kvm (sydost) som erbjuder gott om utrymme för både måltider, loungemöbler och avkoppling utomhus.
Lägenheten disponerar fem sovrum i varierande storlek, vilket ger stor flexibilitet för barnfamiljen eller för den som behöver extra rum för gäster eller hemmakontor. Ett av sovrummen är större och lämpar sig väl som föräldrasovrum, medan övriga rum passar utmärkt som barnrum, arbetsrum eller hobbyutrymmen. Förvaringsmöjligheterna kompletteras av en klädkammare.
Bostaden har ett rymligt badrum med tvätt- och torkmöjligheter samt en separat WC med dusch, vilket underlättar vardagen i ett större hushåll. Badrummet är inrett i neutrala färger med vita kakelplattor och golv i grå klinker. Sammantaget är detta ett mycket välplanerat och flexibelt hem med stora sällskapsytor, många rum och en generös terrass som tillför boendet ett tydligt mervärde.
Lägenheten har genomgående formats utifrån en stilren känsla med naturliga material såsom ekparkett, fönsterbänkar i natursten och vitmålade väggar.
Järvastaden är ett citynära modernt och familjevänligt område med påtaglig känsla av småstadsidyll. Fina parker, härliga natur- och fritidsområden. För all tänkbar shopping och nöjen så finns Mall of Scandinavia samt Strawberry arena i närheten. Runt knuten erbjuds bra närservice, butiker samt goda kommunikationer.
Bostadens sociala ytor är generösa och centreras kring vardagsrummet som enkelt rymmer både soffgrupp och umgängesytor. Intill ligger köket, planerat med maskinell utrustning (kyl/frys, spis, ugn, diskho och diskmaskin) och har goda arbetsytor och plats för ett större matbord – en självklar samlingspunkt i vardagen. Köket är modernt med vita skåpsluckor som harmoniserar med den gråa bänkskivan som spänner sig en bit upp på väggen och utgör en bakkantslist. Från sällskapsytorna nås bostadens stora och soliga terrass om 37 kvm (sydost) som erbjuder gott om utrymme för både måltider, loungemöbler och avkoppling utomhus.
Lägenheten disponerar fem sovrum i varierande storlek, vilket ger stor flexibilitet för barnfamiljen eller för den som behöver extra rum för gäster eller hemmakontor. Ett av sovrummen är större och lämpar sig väl som föräldrasovrum, medan övriga rum passar utmärkt som barnrum, arbetsrum eller hobbyutrymmen. Förvaringsmöjligheterna kompletteras av en klädkammare.
Bostaden har ett rymligt badrum med tvätt- och torkmöjligheter samt en separat WC med dusch, vilket underlättar vardagen i ett större hushåll. Badrummet är inrett i neutrala färger med vita kakelplattor och golv i grå klinker. Sammantaget är detta ett mycket välplanerat och flexibelt hem med stora sällskapsytor, många rum och en generös terrass som tillför boendet ett tydligt mervärde.
Lägenheten har genomgående formats utifrån en stilren känsla med naturliga material såsom ekparkett, fönsterbänkar i natursten och vitmålade väggar.
Järvastaden är ett citynära modernt och familjevänligt område med påtaglig känsla av småstadsidyll. Fina parker, härliga natur- och fritidsområden. För all tänkbar shopping och nöjen så finns Mall of Scandinavia samt Strawberry arena i närheten. Runt knuten erbjuds bra närservice, butiker samt goda kommunikationer.


















