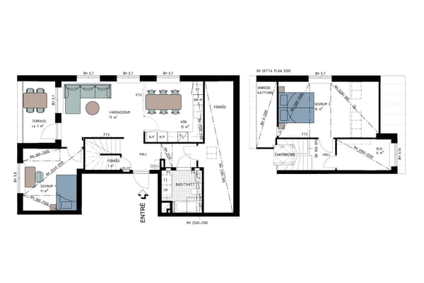
3 rok, 76 m²
Välplanerad trea i markplan. Stor uteplats mot innergård med eftermiddags- och kvällssol. Härligt master bedroom med klädkammare i anslutning.
HALL
Stor, välkomnande hall med praktisk förvaring i skjutdörrsgarderob och hatthylla.
KÖK
Fullutrustat kök med plats för matbord. Köksluckor och bänkskiva från Vedum, vitvarorna består av en integrerad diskmaskin, induktionshäll, dubbla kyl/frys samt mikro och ugn i högskåp - allt från Electrolux. Köket går att dela av med en skiljevägg mot vardagsrummet(tillval).
VARDAGSRUM
Vardagsrummet erbjuder sociala ytor genom den öppna planlösningen mot köket och har ett väldigt fint ljusinsläpp från det stora fönsterpartiet mot uteplatsen.
SOVRUM 2
Sovrum med plats för dubbelsäng och förvaring via den stora klädkammaren. För den som vill ha en stor två:a så kan sovrummet anpassas genom att det mindre sovrummet utgår och detta sovrum utökas, se förklaring på ritning (tillval).
SOVRUM 1
Ett mindre sovrum med plats för säng. Passar bra som kontor, barn- eller gästrum.
BADRUM
Helkaklat badrum med duschhörna med dörrar i klarglas. Tvätten skötes enkelt med tvättmaskin och torkumlare, båda från Electrolux. Ovanför tvättutrustningen finns en praktisk arbetsbänk och förvaring i väggskåp. JMs torkställning John och ytterligare förvaring i kommod gör det lätt att hålla ordning. Ovanför kommoden sitter en spegel med LED-belysning.
UTEPLATS
Otroligt generös uteplats om ca 39 kvm med plats för sittgrupp, matbord, solstolar eller allt på samma gång! Uteplatsen ligger i trivsamt söder- och västerläge mot den trivsamma och från gatan upphöjda innegården. Utgång sker från vardagsrummet.
Till bostaden hör ett källarförråd. Lägenheten utrustas med bredband från Telia (bredband och tv). I månadsavgiften ingår ca 20 tv-kanaler, internetanslutning 1000/1000 Mbit/s, värme och kallvatten.
HALL
Stor, välkomnande hall med praktisk förvaring i skjutdörrsgarderob och hatthylla.
KÖK
Fullutrustat kök med plats för matbord. Köksluckor och bänkskiva från Vedum, vitvarorna består av en integrerad diskmaskin, induktionshäll, dubbla kyl/frys samt mikro och ugn i högskåp - allt från Electrolux. Köket går att dela av med en skiljevägg mot vardagsrummet(tillval).
VARDAGSRUM
Vardagsrummet erbjuder sociala ytor genom den öppna planlösningen mot köket och har ett väldigt fint ljusinsläpp från det stora fönsterpartiet mot uteplatsen.
SOVRUM 2
Sovrum med plats för dubbelsäng och förvaring via den stora klädkammaren. För den som vill ha en stor två:a så kan sovrummet anpassas genom att det mindre sovrummet utgår och detta sovrum utökas, se förklaring på ritning (tillval).
SOVRUM 1
Ett mindre sovrum med plats för säng. Passar bra som kontor, barn- eller gästrum.
BADRUM
Helkaklat badrum med duschhörna med dörrar i klarglas. Tvätten skötes enkelt med tvättmaskin och torkumlare, båda från Electrolux. Ovanför tvättutrustningen finns en praktisk arbetsbänk och förvaring i väggskåp. JMs torkställning John och ytterligare förvaring i kommod gör det lätt att hålla ordning. Ovanför kommoden sitter en spegel med LED-belysning.
UTEPLATS
Otroligt generös uteplats om ca 39 kvm med plats för sittgrupp, matbord, solstolar eller allt på samma gång! Uteplatsen ligger i trivsamt söder- och västerläge mot den trivsamma och från gatan upphöjda innegården. Utgång sker från vardagsrummet.
Till bostaden hör ett källarförråd. Lägenheten utrustas med bredband från Telia (bredband och tv). I månadsavgiften ingår ca 20 tv-kanaler, internetanslutning 1000/1000 Mbit/s, värme och kallvatten.











