3 rok, 91 m²
Välkomna till denna nyproducerade och eleganta 3:a om ca 91 kvm (61+30) i två plan! Här erbjuds ett boende med genomtänkt inredning och genomgående hög standard. Välj mellan stilsäkra materialval i JM Original eller någon av de kostnadsfria designlinjerna, eller utforma boendet helt efter din egen smak med materialval från det breda sortimentet i olika prisklasser.
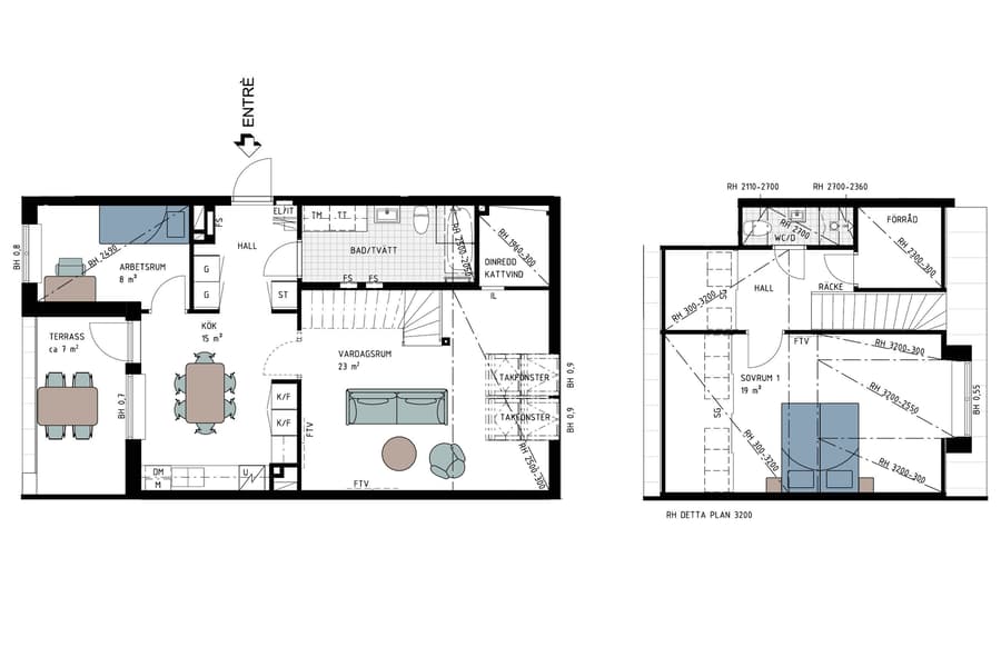
Inbjudande hall med exemplariska förvaringsmöjligheter via garderober. Vitmålade väggar och mattlackad 3-stav ekparkett (genomgående för hela lägenheten).
Välutrustat kök från Vedum i modernt utförande. Den maskinella utrustningen utgörs av induktionshäll, köksfläkt, dubbla kombinerade kyl/frys, inbyggnadsugn, inbyggnadsmikro och integrerad diskmaskin. Från köket nås den möblerbara terassen med eftermiddags- och kvällsol samt utsikt mot trivsam innergård. Låt den lättmöblerade terassen bli er egen sjönära oas att njuta och koppla av på.
Rymligt lättmöblerat vardagsrum med gott om plats för social möblering.
Helkaklat väldisponerat och toppfräscht badrum med bland annat tvättmaskin och torktumlare. Dessutom duschhörna med duschdörrar alternativt badkar. Ovanför tvättutrustningen finns en praktisk arbetsbänk och förvaring i väggskåp. JMs torkställning John och ytterligare förvaring i kommod gör det lätt att hålla ordning. Ovanför kommoden sitter en spegel med LED-belysning.
Detta plan erbjuder även väldisponerat arbetsrum med generöst ljusinsläpp.
Etagevåning med helkaklat duschrum samt hall med både förråd och skjutdörrsgarderob.
Master bedroom med plats för dubbelsäng med tillhörande sängbord och förvaring via mycket generös skjutdörrsgarderob.
Bostadsrättsföreningen har en gemensam trivsam innergård där du kan njuta av trevlig samvaro och många soltimmar. I källaren finns tillhörande förråd till varje lägenhet. Dessutom gemensamt garage, med vanliga platser och platser med laddbox för elbil. TV & bredband via Telia Triple play, värme och kallvatten ingår i månadsavgiften.
Inbjudande hall med exemplariska förvaringsmöjligheter via garderober. Vitmålade väggar och mattlackad 3-stav ekparkett (genomgående för hela lägenheten).
Välutrustat kök från Vedum i modernt utförande. Den maskinella utrustningen utgörs av induktionshäll, köksfläkt, dubbla kombinerade kyl/frys, inbyggnadsugn, inbyggnadsmikro och integrerad diskmaskin. Från köket nås den möblerbara terassen med eftermiddags- och kvällsol samt utsikt mot trivsam innergård. Låt den lättmöblerade terassen bli er egen sjönära oas att njuta och koppla av på.
Rymligt lättmöblerat vardagsrum med gott om plats för social möblering.
Helkaklat väldisponerat och toppfräscht badrum med bland annat tvättmaskin och torktumlare. Dessutom duschhörna med duschdörrar alternativt badkar. Ovanför tvättutrustningen finns en praktisk arbetsbänk och förvaring i väggskåp. JMs torkställning John och ytterligare förvaring i kommod gör det lätt att hålla ordning. Ovanför kommoden sitter en spegel med LED-belysning.
Detta plan erbjuder även väldisponerat arbetsrum med generöst ljusinsläpp.
Etagevåning med helkaklat duschrum samt hall med både förråd och skjutdörrsgarderob.
Master bedroom med plats för dubbelsäng med tillhörande sängbord och förvaring via mycket generös skjutdörrsgarderob.
Bostadsrättsföreningen har en gemensam trivsam innergård där du kan njuta av trevlig samvaro och många soltimmar. I källaren finns tillhörande förråd till varje lägenhet. Dessutom gemensamt garage, med vanliga platser och platser med laddbox för elbil. TV & bredband via Telia Triple play, värme och kallvatten ingår i månadsavgiften.











