Boka bostaden före någon annan

Läs mer om hur det funkar att boka bostad

2 rok, 43 m²

Till salu
Pris
2 095 000 kr
Avgift
3 342 kr
Våning
3 / 5
Balkong
7 m²
Tillträde
sep. 2026

Boka bostaden före någon annan!

Den här bostaden går att boka. Läs mer om hur det funkar att boka bostad hos JM.

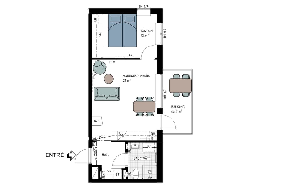
Planlösning

I planlösningen visas bostadsytans disposition. Se information så som mått, hur rummen är uppdelade och balkongens placering.

Floorplan

Balkongutsikt

Visionsbild som visar utsikten från balkongen eller uteplatsen.

Välkommen på Inredningshelg i Mälarvyn

Söndag 17 maj kl. 11.00–12.30 Få inspiration och konkreta tips från inredare om hur du skapar ett personligt och inbjudande hem. Fokus på helhet, möbler och detaljer – med balkong och uteplats som en naturlig förlängning av bostaden. 📍 Ägirgatan 24, Västerås 📩 Frågor och anmälan: mäklare Helena Angermund, Bjurfors

Anmäl dig till visningen här

Bostäderna är miljömärkta

Läs mer

Trygg bostadsrättsmarknad

Läs mer

Välj bostad

Se och jämför bostäderna i bostadsväljaren. Det du ser är visionsbilder och avvikelser kan förekomma.

Dölj alla bostäder
StatusRumPrisAvgiftBoareaVåningTillträdeNrAdress
Till salu11 395 000 kr2 937 kr35 m²0 / 3juni 202641002Rangatan 3Läs mer om objekt 41002
Till salu21 750 000 kr3 261 kr41 m²6 / 14omgående11602Ägirgatan 24Läs mer om objekt 11602
Till salu21 795 000 kr3 342 kr43 m²1 / 5sep. 202631103Rangatan 1Läs mer om objekt 31103
Till salu21 895 000 kr3 261 kr41 m²7 / 14omgående11702Ägirgatan 24Läs mer om objekt 11702
Till salu21 895 000 kr3 261 kr41 m²8 / 14omgående11802Ägirgatan 24Läs mer om objekt 11802
Till salu22 095 000 kr3 342 kr43 m²3 / 5sep. 202631302Rangatan 1Läs mer om objekt 31302

Mälarvyn

I Mälarvyn får du ett elegant boende i ett av Öster Mälarstrands finaste lägen.

Läs mer om projektet

Tidslinje

Tillträde
Flytta in nu (Hus 1) - Flexibel inflyttning (Hus 2-4)
Nu får du tillträde till bostaden som är besiktigad och färdig för inflyttning. Välkommen hem!

/ 8
laddar

Intresseanmälan

Ansvarig mäklare kommer att kontakta dig med mer information om bostäderna när du har anmält intresse.

Om du har ett konto hos oss sedan tidigare blir du ombedd att logga in för att slutföra din intresseanmälan.

Fler bostäder i närheten

Se alla

Till salu
Det rymliga köket har bra med arbetsytor och utrustas med rostfria och energieffektiva vitvaror. Köket på bild är ett tillval (visionsbild).
Västerås kommun / Öster Mälarstrand / Mälarvyn

2 rok, 41 m²

Bostadsrätt, 1 750 000 kr
Våning 6/14
Tillträde omgående

Sön 17/5 11:00Läs mer om objekt 11602
Till salu
Västerås kommun / Öster Mälarstrand / Mälarvyn

4 rok, 84 m²

Bostadsrätt, 4 150 000 kr
Våning 6/14
Tillträde omgående

Sön 17/5 11:00Läs mer om objekt 11604
Till salu
Västerås kommun / Öster Mälarstrand / Mälarvyn

2 rok, 41 m²

Bostadsrätt, 1 895 000 kr
Våning 7/14
Tillträde omgående

Sön 17/5 11:00Läs mer om objekt 11702