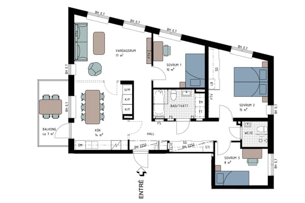
4 rok, 84 m²
Gavelfyra med balkong i söder. Badrum med tvättmaskin och torktumlare samt extra WC. Rymligt master bedroom med stor skjutdörrsgarderob.
HALL
Välkomnande hall med praktisk förvaring i skjutdörrsgarderob.
KÖK
Fullutrustat kök med plats för matbord. Köksluckor och bänkskiva från Vedum, vitvarorna består av en integrerad diskmaskin, induktionshäll, dubbla kyl/frys samt mikro och ugn i högskåp - allt från Electrolux. Köket går att dela av med en skiljevägg mot vardagsrummet(tillval).
VARDAGSRUM
Vardagsrummet erbjuder sociala ytor genom den öppna planlösningen mot köket och har ett väldigt fint ljusinsläpp från det stora fönsterpartiet mot balkongen. Vardagsrummet går att utökas genom att sovrum 3 tas bort (tillval, se ritning).
SOVRUM 1
Stort sovrum med plats för dubbelsäng och förvaring via skjutdörrsgarderob.
SOVRUM 2
Ett mindre sovrum med plats för säng och en skjutdörrsgarderob. Passar bra som kontor, barn- eller gästrum. Sovrummet går att utöka genom att lägenheten görs om till en trea (tillval, se ritning)
SOVRUM 3
Ett mindre sovrum med plats för säng och en garderob. Passar bra som kontor, barn- eller gästrum.
BADRUM
Helkaklat badrum med duschhörna med dörrar i klarglas. Tvätten skötes enkelt med tvättmaskin och torkumlare, båda från Electrolux. Ovanför tvättutrustningen finns en praktisk arbetsbänk och förvaring i väggskåp. JMs torkställning John och ytterligare förvaring i kommod gör det lätt att hålla ordning. Ovanför kommoden sitter en spegel med LED-belysning.
WC
Gäst-wc med kakel på golv, målade väggar, wc, kommod med tvättställ och spegel med LED-belysning.
BALKONG
Generös balkong med plats för sittgrupp. Balkongen ligger i trivsamt söderläge, utgång från vardagsrummet.
Till bostaden hör ett källarförråd. Lägenheten utrustas med bredband från Telia (bredband och tv). I månadsavgiften ingår ca 20 tv-kanaler, internetanslutning 1000/1000 Mbit/s, värme och kallvatten.
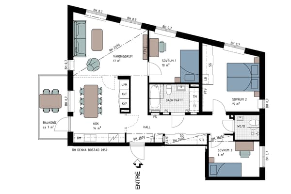
HALL
Välkomnande hall med praktisk förvaring i skjutdörrsgarderob.
KÖK
Fullutrustat kök med plats för matbord. Köksluckor och bänkskiva från Vedum, vitvarorna består av en integrerad diskmaskin, induktionshäll, dubbla kyl/frys samt mikro och ugn i högskåp - allt från Electrolux. Köket går att dela av med en skiljevägg mot vardagsrummet(tillval).
VARDAGSRUM
Vardagsrummet erbjuder sociala ytor genom den öppna planlösningen mot köket och har ett väldigt fint ljusinsläpp från det stora fönsterpartiet mot balkongen. Vardagsrummet går att utökas genom att sovrum 3 tas bort (tillval, se ritning).
SOVRUM 1
Stort sovrum med plats för dubbelsäng och förvaring via skjutdörrsgarderob.
SOVRUM 2
Ett mindre sovrum med plats för säng och en skjutdörrsgarderob. Passar bra som kontor, barn- eller gästrum. Sovrummet går att utöka genom att lägenheten görs om till en trea (tillval, se ritning)
SOVRUM 3
Ett mindre sovrum med plats för säng och en garderob. Passar bra som kontor, barn- eller gästrum.
BADRUM
Helkaklat badrum med duschhörna med dörrar i klarglas. Tvätten skötes enkelt med tvättmaskin och torkumlare, båda från Electrolux. Ovanför tvättutrustningen finns en praktisk arbetsbänk och förvaring i väggskåp. JMs torkställning John och ytterligare förvaring i kommod gör det lätt att hålla ordning. Ovanför kommoden sitter en spegel med LED-belysning.
WC
Gäst-wc med kakel på golv, målade väggar, wc, kommod med tvättställ och spegel med LED-belysning.
BALKONG
Generös balkong med plats för sittgrupp. Balkongen ligger i trivsamt söderläge, utgång från vardagsrummet.
Till bostaden hör ett källarförråd. Lägenheten utrustas med bredband från Telia (bredband och tv). I månadsavgiften ingår ca 20 tv-kanaler, internetanslutning 1000/1000 Mbit/s, värme och kallvatten.











