3 rok, 87 m²
Välkomna till denna nyproducerade och eleganta 3:a om ca 87 kvm (58+29) i två plan! Här erbjuds ett boende med genomtänkt inredning och genomgående hög standard. Välj mellan stilsäkra materialval i JM Original eller någon av de kostnadsfria designlinjerna, eller utforma boendet helt efter din egen smak med materialval från det breda sortimentet i olika prisklasser.
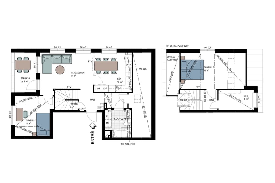
Inbjudande hall med rymligt förråd i anslutning. Vitmålade väggar och mattlackad 3-stav ekparkett (genomgående för hela lägenheten).
Välutrustat kök från Vedum i modernt utförande. Den maskinella utrustningen utgörs av induktionshäll, köksfläkt, dubbla kombinerade kyl/frys, inbyggnadsugn, inbyggnadsmikro och integrerad diskmaskin.
Social öppen planlösning mellan kök och vardagsrum med utgång till terrass i västerläge med eftermiddags- och kvällssol. Låt den lättmöblerade terrassen bli er egen sjönära oas att njuta och koppla av på.
Välplanerat sovrum 1 med plats för säng med tillhörande sängbord och förvaring.
Ytterligare välplanerat sovrum 2 med plats för dubbelsäng med tillhörande sängbord. Generösa förvaringsmöjligheter via rymlig klädkammare.
Helkaklat väldisponerat och toppfräscht badrum med bland annat tvättmaskin och torktumlare. Dessutom duschhörna med duschdörrar/badkar. Ovanför tvättutrustningen finns en praktisk arbetsbänk och förvaring i väggskåp. JMs torkställning John och ytterligare förvaring i kommod gör det lätt att hålla ordning. Ovanför kommoden sitter en spegel med LED-belysning.
Bostadsrättsföreningen har en gemensam trivsam innergård där du kan njuta av trevlig samvaro och många soltimmar. I källaren finns tillhörande förråd till varje lägenhet. Dessutom gemensamt garage, med vanliga platser och platser med laddbox för elbil. TV & bredband via Telia Triple play, värme och kallvatten ingår i månadsavgiften.
Inbjudande hall med rymligt förråd i anslutning. Vitmålade väggar och mattlackad 3-stav ekparkett (genomgående för hela lägenheten).
Välutrustat kök från Vedum i modernt utförande. Den maskinella utrustningen utgörs av induktionshäll, köksfläkt, dubbla kombinerade kyl/frys, inbyggnadsugn, inbyggnadsmikro och integrerad diskmaskin.
Social öppen planlösning mellan kök och vardagsrum med utgång till terrass i västerläge med eftermiddags- och kvällssol. Låt den lättmöblerade terrassen bli er egen sjönära oas att njuta och koppla av på.
Välplanerat sovrum 1 med plats för säng med tillhörande sängbord och förvaring.
Ytterligare välplanerat sovrum 2 med plats för dubbelsäng med tillhörande sängbord. Generösa förvaringsmöjligheter via rymlig klädkammare.
Helkaklat väldisponerat och toppfräscht badrum med bland annat tvättmaskin och torktumlare. Dessutom duschhörna med duschdörrar/badkar. Ovanför tvättutrustningen finns en praktisk arbetsbänk och förvaring i väggskåp. JMs torkställning John och ytterligare förvaring i kommod gör det lätt att hålla ordning. Ovanför kommoden sitter en spegel med LED-belysning.
Bostadsrättsföreningen har en gemensam trivsam innergård där du kan njuta av trevlig samvaro och många soltimmar. I källaren finns tillhörande förråd till varje lägenhet. Dessutom gemensamt garage, med vanliga platser och platser med laddbox för elbil. TV & bredband via Telia Triple play, värme och kallvatten ingår i månadsavgiften.












