1 rok, 35 m²
Bekvämt på entréplan finner du denna kvadratsmarta etta där alla de bekvämligheter som förväntas av en modern bostad samsas på 35 kvadrat.
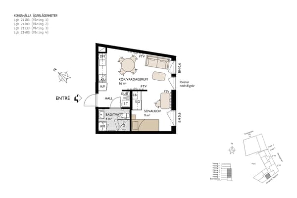
Du välkomnas in i bostadens hall med förvaring bakom kvadratsmarta skjutdörrar. Det smidiga hyllsystemet låter dig själv anpassa förvaringslösningen efter dina behov. Intill finns utrymme att skapa en skrivbordshörna och på så sätt få arbetsplatsen avskild från resten av de sociala ytorna.
Längre in i hallen är det helkaklade badrummet beläget. Duschhörnan har svängbara dörrar i klarglas, något som öppnar upp för mer utrymme. Här finns gott om förvaring i vägghängd kommod och ett väggskåp. Under skåpet återfinns din nya tvättstuga – en arbetsbänk samt kombimaskin för både tvätt och torkning.
Vidare in återfinns allrummet som innefattar ytor för både matlagning, umgänge och sömn. Det praktiska köket är lättarbetat med goda ytor för matlagning och förvaring i skåp och lådor. Här finns allt du kan förvänta dig av ett modernt kök i form av energisnåla vitvaror som utgörs av kombinerad kyl/frys, inbyggnadsugn med mikrofunktion, induktionshäll och integrerad diskmaskin.
Förutom köket inrymmer rummet ytor för mindre matgrupp och soffhörna, perfekt för att bjuda över vänner och skapa härliga minnen tillsammans. För ett praktiskt boende är bäddsoffa optimalt, men du får även plats med sängmöbel om så önskas.
JM erbjuder sobra materialval med en genomgående hög finish. Originalinredningen går i tidlöst vitt, både vad gäller väggfärg, köks- och badrumsinredning. I köket kompletteras det vita med kontrasterande grå arbetsbänk som fortsätter upp som bakkantslist en bit på väggen. Maskinparken går i rostfritt. I badrummet kompletteras det vita av grått klinkergolv. Därtill finns flera tillval att göra.
I Solhöjden bor du centralt och känner pulsen i denna nya stadsdel med all tänkbar service och kommunikationer runt husknuten. Är du inte bekant med området finns här ett stort utbud av butiker, caféer och restauranger och en kort promenad bort ligger Resecentrum för smidig transport både söder-och norrut.
Du välkomnas in i bostadens hall med förvaring bakom kvadratsmarta skjutdörrar. Det smidiga hyllsystemet låter dig själv anpassa förvaringslösningen efter dina behov. Intill finns utrymme att skapa en skrivbordshörna och på så sätt få arbetsplatsen avskild från resten av de sociala ytorna.
Längre in i hallen är det helkaklade badrummet beläget. Duschhörnan har svängbara dörrar i klarglas, något som öppnar upp för mer utrymme. Här finns gott om förvaring i vägghängd kommod och ett väggskåp. Under skåpet återfinns din nya tvättstuga – en arbetsbänk samt kombimaskin för både tvätt och torkning.
Vidare in återfinns allrummet som innefattar ytor för både matlagning, umgänge och sömn. Det praktiska köket är lättarbetat med goda ytor för matlagning och förvaring i skåp och lådor. Här finns allt du kan förvänta dig av ett modernt kök i form av energisnåla vitvaror som utgörs av kombinerad kyl/frys, inbyggnadsugn med mikrofunktion, induktionshäll och integrerad diskmaskin.
Förutom köket inrymmer rummet ytor för mindre matgrupp och soffhörna, perfekt för att bjuda över vänner och skapa härliga minnen tillsammans. För ett praktiskt boende är bäddsoffa optimalt, men du får även plats med sängmöbel om så önskas.
JM erbjuder sobra materialval med en genomgående hög finish. Originalinredningen går i tidlöst vitt, både vad gäller väggfärg, köks- och badrumsinredning. I köket kompletteras det vita med kontrasterande grå arbetsbänk som fortsätter upp som bakkantslist en bit på väggen. Maskinparken går i rostfritt. I badrummet kompletteras det vita av grått klinkergolv. Därtill finns flera tillval att göra.
I Solhöjden bor du centralt och känner pulsen i denna nya stadsdel med all tänkbar service och kommunikationer runt husknuten. Är du inte bekant med området finns här ett stort utbud av butiker, caféer och restauranger och en kort promenad bort ligger Resecentrum för smidig transport både söder-och norrut.



