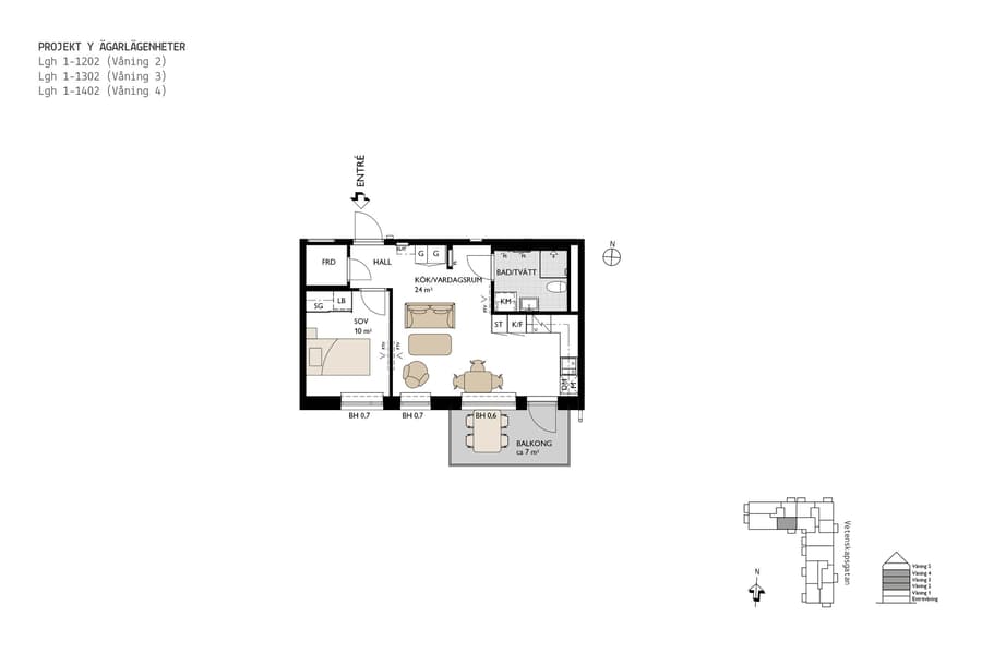
2 rok, 43 m²
Välplanerad och ljus tvåa med solig balkong i söder utåt den trivsamma innergården och en härlig social avdelning med öppen planlösning mot kök. Sovrummet är av bra storlek med fint förvaringsutrymme i skjutdörrsgarderob. Badrummet erbjuder tvättmöjligheter i hemmet via kombimaskin.
Lägenheten har även ett privat förråd som nås från hallen. Kökets interiör från Vedum är både funktionell och estetiskt tilltalande och kommer med vitvaror av hög standard från Electrolux.
Samtliga lägenheter förmedlar ett tidlöst och enhetligt stilspråk i skandinavisk anda med vitt, grått och ek som en harmonisk grund. Allt har valts med största omsorg. Vill du sätta lite mer av din egen prägel på bostaden kan du skräddarsy den med flera tillval. Här går funktion och stil hand i hand.
En ägarlägenhet innebär en stor frihet där du själv bestämmer över din bostad, likt en villaägare. Vill du hyra ut till en student ett tag eller rentav sälja – allt är helt upp till dig som lagfaren ägare. Som att ha ett hus på höjden.
Lägenheten har även ett privat förråd som nås från hallen. Kökets interiör från Vedum är både funktionell och estetiskt tilltalande och kommer med vitvaror av hög standard från Electrolux.
Samtliga lägenheter förmedlar ett tidlöst och enhetligt stilspråk i skandinavisk anda med vitt, grått och ek som en harmonisk grund. Allt har valts med största omsorg. Vill du sätta lite mer av din egen prägel på bostaden kan du skräddarsy den med flera tillval. Här går funktion och stil hand i hand.
En ägarlägenhet innebär en stor frihet där du själv bestämmer över din bostad, likt en villaägare. Vill du hyra ut till en student ett tag eller rentav sälja – allt är helt upp till dig som lagfaren ägare. Som att ha ett hus på höjden.















