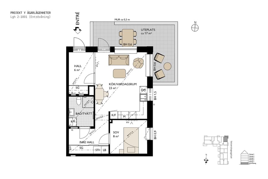
2 rok, 51 m²
Trivsam tvårummare på gavel i markplan med extra rymlig uteplats och parkutsikt samt öppen planlösning mellan kök och sällskapsrum. Gott om förvaring finns både i skjutdörrsgarderob i entrén och en inre hall i anslutning till sovrummet. Badrummet har en praktisk kombimaskin för din tvätt.
Den privata uteplatsen har fin utsikt över parkens grönska och rundar hela gaveln mot såväl norr som öster vilket ger många soltimmar och möjlighet att inreda i två rum. Kökets interiör från Vedum är både funktionell och estetiskt tilltalande och kommer med vitvaror av hög standard från Electrolux.
Samtliga lägenheter förmedlar ett tidlöst och enhetligt stilspråk i skandinavisk anda med vitt, grått och ek som en harmonisk grund. Allt har valts med största omsorg. Vill du sätta lite mer av din egen prägel på bostaden kan du skräddarsy den med flera tillval. Här går funktion och stil hand i hand.
En ägarlägenhet innebär en stor frihet där du själv bestämmer över din bostad, likt en villaägare. Vill du hyra ut till en student ett tag eller rentav sälja – allt är helt upp till dig som lagfaren ägare. Som att ha ett hus på höjden.
Den privata uteplatsen har fin utsikt över parkens grönska och rundar hela gaveln mot såväl norr som öster vilket ger många soltimmar och möjlighet att inreda i två rum. Kökets interiör från Vedum är både funktionell och estetiskt tilltalande och kommer med vitvaror av hög standard från Electrolux.
Samtliga lägenheter förmedlar ett tidlöst och enhetligt stilspråk i skandinavisk anda med vitt, grått och ek som en harmonisk grund. Allt har valts med största omsorg. Vill du sätta lite mer av din egen prägel på bostaden kan du skräddarsy den med flera tillval. Här går funktion och stil hand i hand.
En ägarlägenhet innebär en stor frihet där du själv bestämmer över din bostad, likt en villaägare. Vill du hyra ut till en student ett tag eller rentav sälja – allt är helt upp till dig som lagfaren ägare. Som att ha ett hus på höjden.















