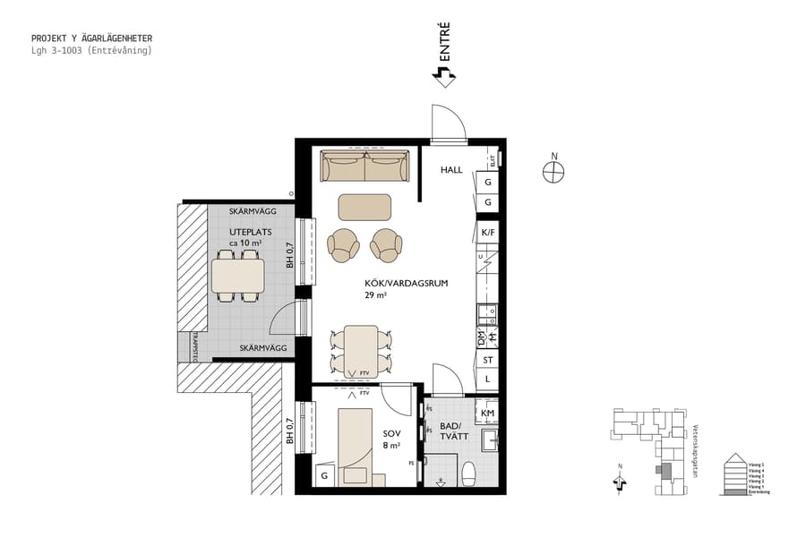
2 rok, 46 m²
Trivsam och välplanerad tvåa i markplan med privat uteplats i skönt västerläge och social planlösning mellan sällskapsrum och kök. Även i sovrummet finns ett fönster mot väster där kvällsljuset letar sig in. I badrummet intill finns en kombimaskin som gör det enkelt att sköta tvätten när du vill.
Uteplatsen har en bra möblerbar yta, kvällssol och en inramning av grönska och staket. Kökets interiör från Vedum är både funktionell och estetiskt tilltalande och kommer med vitvaror av hög standard från Electrolux.
Samtliga lägenheter förmedlar ett tidlöst och enhetligt stilspråk i skandinavisk anda med vitt, grått och ek som en harmonisk grund. Allt har valts med största omsorg. Vill du sätta lite mer av din egen prägel på bostaden kan du skräddarsy den med flera tillval. Här går funktion och stil hand i hand.
En ägarlägenhet innebär en stor frihet där du själv bestämmer över din bostad, likt en villaägare. Vill du hyra ut till en student ett tag eller rentav sälja – allt är helt upp till dig som lagfaren ägare. Som att ha ett hus på höjden
Uteplatsen har en bra möblerbar yta, kvällssol och en inramning av grönska och staket. Kökets interiör från Vedum är både funktionell och estetiskt tilltalande och kommer med vitvaror av hög standard från Electrolux.
Samtliga lägenheter förmedlar ett tidlöst och enhetligt stilspråk i skandinavisk anda med vitt, grått och ek som en harmonisk grund. Allt har valts med största omsorg. Vill du sätta lite mer av din egen prägel på bostaden kan du skräddarsy den med flera tillval. Här går funktion och stil hand i hand.
En ägarlägenhet innebär en stor frihet där du själv bestämmer över din bostad, likt en villaägare. Vill du hyra ut till en student ett tag eller rentav sälja – allt är helt upp till dig som lagfaren ägare. Som att ha ett hus på höjden















