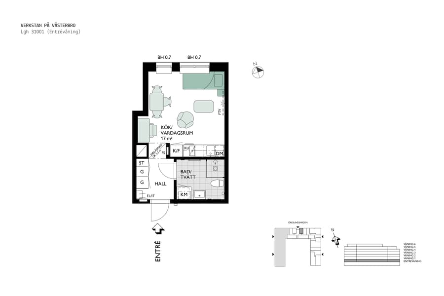
1 rok, 27 m²
Fullt utrustad enrummare med öppen planlösning. Lägenheten rymmer alla bekvämligheter som behövs i vardagen med fullt utrustat kök och helkaklat badrum med kombimaskin.
Bostaden är inredd med kök från Vedum i stilren design och vitvaror från Elektrolux. Köket är utrustat med kyl/frys, induktionshäll och integrerad diskmaskin samt kombinerad ugn/mikrovågsugn. Helkaklat badrum med inredning från Svedbergs och spotlightbelysning i tak. Standarden är hög med JM originalinredning och möjlighet finns att göra tillval för att få en personlig touch. Bra förvaringslösningar med rymliga garderobspartier och/eller flexibla garderobssytem från Elfa”.
Samtliga lägenheter har tillgång till ett förrådsutrymme i källarplan där det även finns cykelparkering och garage.
I månadsavgiften inkluderas uppvärmning, kallvatten samt allmän renhållning i föreningen. För 230 kr/mån får man dessutom fiber, IP-telefoni (fasta delen) och kabel-TV via Telia, vilket är kollektivt upphandlat av föreningen. Varje lägenhet debiteras utefter hur mycket varmvatten man förbrukar vilket är miljösmart och praktiskt.
När du köper en bostad av JM är det till ett fast pris. Som nyinflyttad JM-kund får du dessutom två timmars kostnadsfri hantverkshjälp när du får tillträde till din nya bostad. JM har även ett trygghetspaket med möjlighet att skjuta på tillträdet upp till sex månader samt skydd mot dubbel boendekostnad 20.000 kr/mån i upp till 6 månader. Trygghetspaket på totalt 1 år ingår helt utan någon kostnad när du köper bostad via JM.
Med den nya stadsdelen Västerbro ska Lunds innerstad växa västerut. Området är idag ett industriområde som sträcker sig från Bryggaregatan i öster till Fjelierondellen i väster. I norr gränsar det mot Kobjer och i söder mot Fjelievägen. Avståndet till Sockerbruksområdet och Lunds Centralstation är bara några hundra meter. Det centrala läget gör det närmast till en självklarhet att området nu ska omvandlas från industrier till boende. Visionen för Västerbro är att skapa en modern kvartersstad, med tusentals nya bostäder för lundaborna, där det också görs plats för parker, arbetsplatser, butiker, caféer och kommunal service som skola och förskolor.
Bostaden är inredd med kök från Vedum i stilren design och vitvaror från Elektrolux. Köket är utrustat med kyl/frys, induktionshäll och integrerad diskmaskin samt kombinerad ugn/mikrovågsugn. Helkaklat badrum med inredning från Svedbergs och spotlightbelysning i tak. Standarden är hög med JM originalinredning och möjlighet finns att göra tillval för att få en personlig touch. Bra förvaringslösningar med rymliga garderobspartier och/eller flexibla garderobssytem från Elfa”.
Samtliga lägenheter har tillgång till ett förrådsutrymme i källarplan där det även finns cykelparkering och garage.
I månadsavgiften inkluderas uppvärmning, kallvatten samt allmän renhållning i föreningen. För 230 kr/mån får man dessutom fiber, IP-telefoni (fasta delen) och kabel-TV via Telia, vilket är kollektivt upphandlat av föreningen. Varje lägenhet debiteras utefter hur mycket varmvatten man förbrukar vilket är miljösmart och praktiskt.
När du köper en bostad av JM är det till ett fast pris. Som nyinflyttad JM-kund får du dessutom två timmars kostnadsfri hantverkshjälp när du får tillträde till din nya bostad. JM har även ett trygghetspaket med möjlighet att skjuta på tillträdet upp till sex månader samt skydd mot dubbel boendekostnad 20.000 kr/mån i upp till 6 månader. Trygghetspaket på totalt 1 år ingår helt utan någon kostnad när du köper bostad via JM.
Med den nya stadsdelen Västerbro ska Lunds innerstad växa västerut. Området är idag ett industriområde som sträcker sig från Bryggaregatan i öster till Fjelierondellen i väster. I norr gränsar det mot Kobjer och i söder mot Fjelievägen. Avståndet till Sockerbruksområdet och Lunds Centralstation är bara några hundra meter. Det centrala läget gör det närmast till en självklarhet att området nu ska omvandlas från industrier till boende. Visionen för Västerbro är att skapa en modern kvartersstad, med tusentals nya bostäder för lundaborna, där det också görs plats för parker, arbetsplatser, butiker, caféer och kommunal service som skola och förskolor.

















