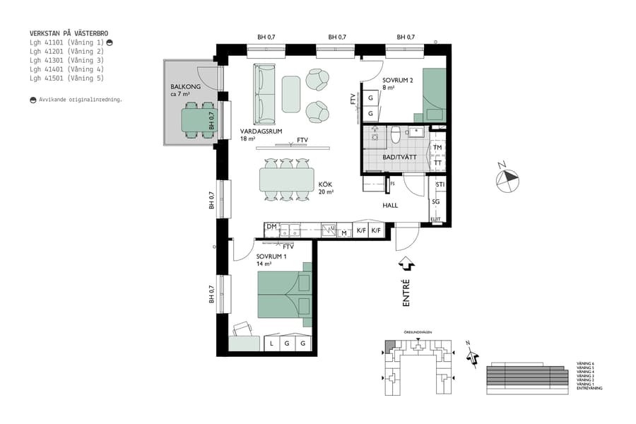
3 rok, 72 m²
Väldisponerad gavelbostad om 72 kvm med balkong. Öppen och social planlösning och modernt utrustat kök. Välutrustat badrum med tvättavdelning. Två sovrum med förvaring i garderob.
Bostaden är inredd med kök från Vedum i stilren design och vitvaror från Elektrolux. Köket är utrustat med kyl/frys, induktionshäll och integrerad diskmaskin samt ugn och mikrovågsugn. Helkaklat badrum med inredning från Svedbergs och spotlightbelysning i tak. Standarden är hög med JM originalinredning. Bra förvaringslösningar med rymliga garderobspartier och/eller flexibla garderobssytem från Elfa.
Samtliga lägenheter har tillgång till ett förrådsutrymme i källarplan där det även finns cykelparkering och garage.
I månadsavgiften inkluderas uppvärmning, kallvatten samt allmän renhållning i föreningen. För 230 kr/mån får man dessutom fiber, IP-telefoni (fasta delen) och kabel-TV via Telia, vilket är kollektivt upphandlat av föreningen. Varje lägenhet debiteras utefter hur mycket varmvatten man förbrukar vilket är miljösmart och praktiskt.
Bostaden är inredd med kök från Vedum i stilren design och vitvaror från Elektrolux. Köket är utrustat med kyl/frys, induktionshäll och integrerad diskmaskin samt ugn och mikrovågsugn. Helkaklat badrum med inredning från Svedbergs och spotlightbelysning i tak. Standarden är hög med JM originalinredning. Bra förvaringslösningar med rymliga garderobspartier och/eller flexibla garderobssytem från Elfa.
Samtliga lägenheter har tillgång till ett förrådsutrymme i källarplan där det även finns cykelparkering och garage.
I månadsavgiften inkluderas uppvärmning, kallvatten samt allmän renhållning i föreningen. För 230 kr/mån får man dessutom fiber, IP-telefoni (fasta delen) och kabel-TV via Telia, vilket är kollektivt upphandlat av föreningen. Varje lägenhet debiteras utefter hur mycket varmvatten man förbrukar vilket är miljösmart och praktiskt.















