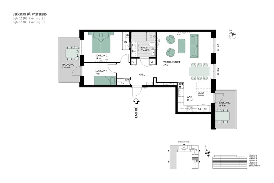
3 rok, 75 m²
Genomgående trea med fint ljusinsläpp om 75 kvm med dubbla balkonger varav en i soligt västerläge. Denna bostad har en öppen och social planlösning, vilket skapar en luftig och inbjudande atmosfär. Köket är modernt utrustat med möjlighet att välja en praktisk köksö. Badrummet med tvättavdelning är välutrustat. Lägenheten har två sovrum.
Bostaden är inredd med kök från Vedum i stilren design och vitvaror från Elektrolux. Köket är utrustat med kyl/frys, induktionshäll och integrerad diskmaskin samt ugn och mikrovågsugn. Helkaklat badrum med inredning från Svedbergs och spotlightbelysning i tak. Standarden är hög med JM originalinredning. Bra förvaringslösningar med rymliga garderobspartier och/eller flexibla garderobssytem från Elfa.
Samtliga lägenheter har tillgång till ett förrådsutrymme i källarplan där det även finns cykelparkering och garage.
I månadsavgiften inkluderas uppvärmning, kallvatten samt allmän renhållning i föreningen. Obligatoriskt tillägg för bredband/tv om 230 kr/månad samt individuell avläsning av el och varmvatten.
JM har ett trygghetspaket med möjlighet att skjuta på tillträdet upp till sex månader samt skydd mot dubbel boendekostnad 20.000 kr/mån i upp till 6 månader. Trygghetspaket på totalt 1 år ingår helt utan någon kostnad när du köper bostad via JM.
Bostaden är inredd med kök från Vedum i stilren design och vitvaror från Elektrolux. Köket är utrustat med kyl/frys, induktionshäll och integrerad diskmaskin samt ugn och mikrovågsugn. Helkaklat badrum med inredning från Svedbergs och spotlightbelysning i tak. Standarden är hög med JM originalinredning. Bra förvaringslösningar med rymliga garderobspartier och/eller flexibla garderobssytem från Elfa.
Samtliga lägenheter har tillgång till ett förrådsutrymme i källarplan där det även finns cykelparkering och garage.
I månadsavgiften inkluderas uppvärmning, kallvatten samt allmän renhållning i föreningen. Obligatoriskt tillägg för bredband/tv om 230 kr/månad samt individuell avläsning av el och varmvatten.
JM har ett trygghetspaket med möjlighet att skjuta på tillträdet upp till sex månader samt skydd mot dubbel boendekostnad 20.000 kr/mån i upp till 6 månader. Trygghetspaket på totalt 1 år ingår helt utan någon kostnad när du köper bostad via JM.














