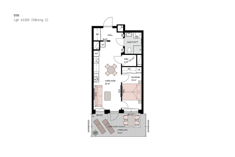
2 rok, 44 m²
Välkommen till ett modernt och stilrent hem i Huvudsta Strandpark, där genomtänkta materialval och smart planering möter en trivsam boendemiljö nära både natur och stadspuls.
Här bor du med en generös uteplats mot gården, en naturlig förlängning av vardagsrummet och en perfekt plats för avkoppling, odling eller middagar i kvällssolen.
Köket från Vedum är smakfullt utformat med goda arbetsytor och utrustat med pålitliga vitvaror från Electrolux, allt i en harmonisk palett som smälter väl in i bostadens moderna uttryck. Det öppna sambandet mellan kök och vardagsrum skapar en social och inbjudande yta för både vardag och umgänge.
Sovrummet erbjuder plats för dubbelsäng och har förvaring i praktisk skjutdörrsgarderob. Väggarna är vitmålade och golven pryds av elegant parkett, något som ger en tidlös och enhetlig känsla genom hela bostaden. De vackra fönsterbänkarna i natursten ger ett extra kvalitetslyft.
Det helkaklade badrummet är inrett med stilrena materialval, klinkergolv och utrustat med kombimaskin för en extra smidig vardag.
Som en uppskattad detalj finns även lägenhetsförråd i bostaden, vilket ger smart och lättillgänglig förvaring.
Ett hem för dig som uppskattar nyproduktionens bekvämlighet, modern design och hög boendekvalitet – allt i ett attraktivt område nära vattnet, grönområden och smidiga kommunikationer.
Här bor du med en generös uteplats mot gården, en naturlig förlängning av vardagsrummet och en perfekt plats för avkoppling, odling eller middagar i kvällssolen.
Köket från Vedum är smakfullt utformat med goda arbetsytor och utrustat med pålitliga vitvaror från Electrolux, allt i en harmonisk palett som smälter väl in i bostadens moderna uttryck. Det öppna sambandet mellan kök och vardagsrum skapar en social och inbjudande yta för både vardag och umgänge.
Sovrummet erbjuder plats för dubbelsäng och har förvaring i praktisk skjutdörrsgarderob. Väggarna är vitmålade och golven pryds av elegant parkett, något som ger en tidlös och enhetlig känsla genom hela bostaden. De vackra fönsterbänkarna i natursten ger ett extra kvalitetslyft.
Det helkaklade badrummet är inrett med stilrena materialval, klinkergolv och utrustat med kombimaskin för en extra smidig vardag.
Som en uppskattad detalj finns även lägenhetsförråd i bostaden, vilket ger smart och lättillgänglig förvaring.
Ett hem för dig som uppskattar nyproduktionens bekvämlighet, modern design och hög boendekvalitet – allt i ett attraktivt område nära vattnet, grönområden och smidiga kommunikationer.









