3 rok, 84 m²
Välkommen till denna nyproducerade trea i attraktiva Huvudsta Strandpark – ett hem där modern design, genomtänkta materialval och ett naturnära läge möts i perfekt harmoni. Bostaden erbjuder en välplanerad planlösning med generösa ytor och ett naturligt flöde mellan rummen, vilket skapar både trivsel och funktion i vardagen.
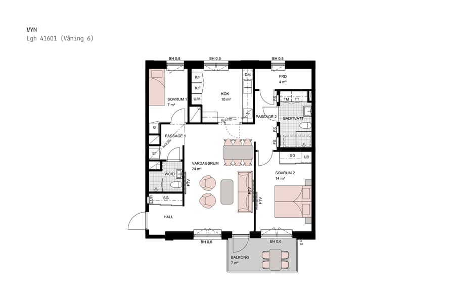
Vardagsrummet är bostadens självklara samlingspunkt. De stora fönsterpartierna ger ett fantastiskt ljusinsläpp och rummet har gott om plats för både soffgrupp och matplats. Härifrån nås även bostadens balkong, som förlänger de sociala ytorna och bjuder in till avkoppling under årets varmare månader.
Köket ligger avskilt på motsatt sida av bostaden och är smakfullt inrett med köksinredning från Vedum och moderna vitvaror från Electrolux. Här finns gott om arbetsyta och förvaring, vilket gör köket både praktiskt och estetiskt tilltalande. De vitmålade väggarna och ekparkettgolven löper genom hela bostaden och skapar en ljus, varm och tidlös atmosfär. Fönsternischer i natursten tillför en exklusiv detalj som lyfter helhetsintrycket.
Bostaden rymmer två sovrum i olika storlekar, där det större sovrummet ligger vägg i vägg med vardagsrummet och erbjuder goda möbleringsmöjligheter. Det mindre sovrummet passar utmärkt som barnrum, gästrum eller hemmakontor.
Det helkaklade badrummet är stilrent och funktionellt, utrustat med både tvättmaskin och torktumlare från Electrolux. Här finns även bra förvaring och en lugn, harmonisk känsla. Utöver detta finns en separat WC/dusch – en uppskattad bekvämlighet i vardagen.
Ett stort plus är det praktiska förrådet som ligger inne i bostaden, vilket ger smidig och lättillgänglig förvaring utan att behöva lämna hemmet.
Detta är ett hem för dig som söker modern komfort, hög standard och ett naturnära läge med närhet till både vatten, grönområden och stadens puls. Ett boende att trivas i – länge.
Vardagsrummet är bostadens självklara samlingspunkt. De stora fönsterpartierna ger ett fantastiskt ljusinsläpp och rummet har gott om plats för både soffgrupp och matplats. Härifrån nås även bostadens balkong, som förlänger de sociala ytorna och bjuder in till avkoppling under årets varmare månader.
Köket ligger avskilt på motsatt sida av bostaden och är smakfullt inrett med köksinredning från Vedum och moderna vitvaror från Electrolux. Här finns gott om arbetsyta och förvaring, vilket gör köket både praktiskt och estetiskt tilltalande. De vitmålade väggarna och ekparkettgolven löper genom hela bostaden och skapar en ljus, varm och tidlös atmosfär. Fönsternischer i natursten tillför en exklusiv detalj som lyfter helhetsintrycket.
Bostaden rymmer två sovrum i olika storlekar, där det större sovrummet ligger vägg i vägg med vardagsrummet och erbjuder goda möbleringsmöjligheter. Det mindre sovrummet passar utmärkt som barnrum, gästrum eller hemmakontor.
Det helkaklade badrummet är stilrent och funktionellt, utrustat med både tvättmaskin och torktumlare från Electrolux. Här finns även bra förvaring och en lugn, harmonisk känsla. Utöver detta finns en separat WC/dusch – en uppskattad bekvämlighet i vardagen.
Ett stort plus är det praktiska förrådet som ligger inne i bostaden, vilket ger smidig och lättillgänglig förvaring utan att behöva lämna hemmet.
Detta är ett hem för dig som söker modern komfort, hög standard och ett naturnära läge med närhet till både vatten, grönområden och stadens puls. Ett boende att trivas i – länge.











