3 rok, 79 m²
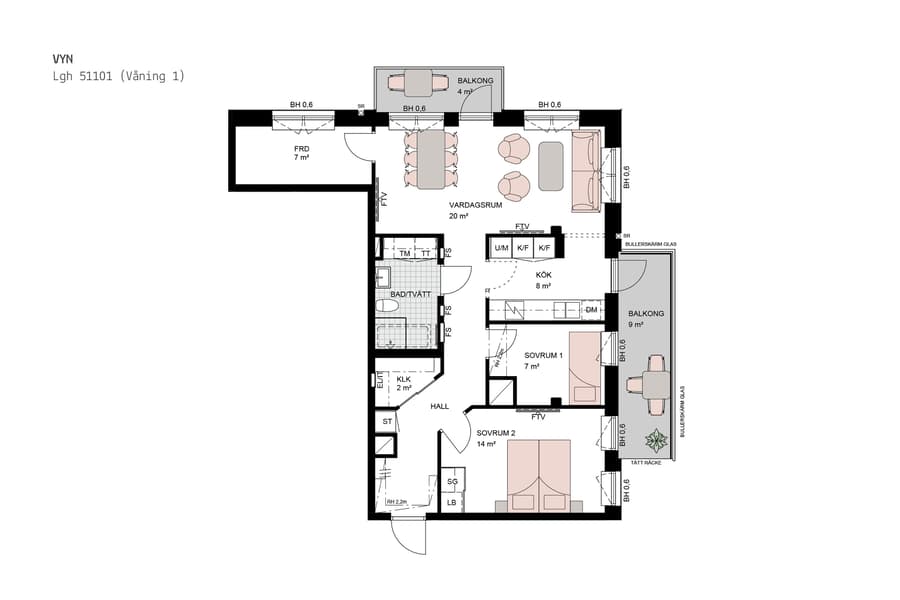
Denna nyproducerade trea om 79 kvadratmeter i Huvudsta Strandpark erbjuder en välplanerad och funktionell layout med generösa ytor och genomtänkta detaljer. Bostaden är belägen i ett attraktivt läge med närhet till både vatten och stadspuls, och har en planlösning som främjar både socialt umgänge och privatliv.
Det öppna sambandet mellan kök och vardagsrum skapar en ljus och luftig känsla. Köket från Vedum är utrustat med moderna vitvaror från Electrolux, inklusive diskmaskin, kyl/frys och mikrovågsugn. Vardagsrummet är rymligt och har utgång till en av bostadens två balkonger, vilket ger ett naturligt flöde mellan inne och ute.
Bostaden har två sovrum – ett större med plats för dubbelsäng och förvaring, samt ett mindre som lämpar sig väl som barnrum, gästrum eller kontor. Förvaringsmöjligheterna är goda med en separat klädkammare och flera garderober. Dessutom finns ett lägenhetsförråd praktiskt placerat inne i bostaden, vilket ger smidig tillgång till extra förvaring utan att behöva lämna hemmet.
Det helkaklade badrummet är utrustat med både tvättmaskin och torktumlare, vilket ger en bekväm vardag. Materialvalen är moderna och stilrena, med vitmålade väggar, ekparkettgolv och fönsternischer i natursten som ger en exklusiv känsla.
Två balkonger ger möjlighet till sol och avkoppling under olika tider på dagen. Sammanfattningsvis är detta en bostad som kombinerar kvalitet, komfort och stil i ett av Solnas mest eftertraktade områden.
Det öppna sambandet mellan kök och vardagsrum skapar en ljus och luftig känsla. Köket från Vedum är utrustat med moderna vitvaror från Electrolux, inklusive diskmaskin, kyl/frys och mikrovågsugn. Vardagsrummet är rymligt och har utgång till en av bostadens två balkonger, vilket ger ett naturligt flöde mellan inne och ute.
Bostaden har två sovrum – ett större med plats för dubbelsäng och förvaring, samt ett mindre som lämpar sig väl som barnrum, gästrum eller kontor. Förvaringsmöjligheterna är goda med en separat klädkammare och flera garderober. Dessutom finns ett lägenhetsförråd praktiskt placerat inne i bostaden, vilket ger smidig tillgång till extra förvaring utan att behöva lämna hemmet.
Det helkaklade badrummet är utrustat med både tvättmaskin och torktumlare, vilket ger en bekväm vardag. Materialvalen är moderna och stilrena, med vitmålade väggar, ekparkettgolv och fönsternischer i natursten som ger en exklusiv känsla.
Två balkonger ger möjlighet till sol och avkoppling under olika tider på dagen. Sammanfattningsvis är detta en bostad som kombinerar kvalitet, komfort och stil i ett av Solnas mest eftertraktade områden.












