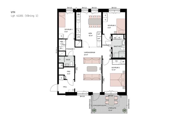
4 rok, 104 m²
Välkommen till en nyproducerad fyrarumslägenhet i Huvudsta Strandpark – ett boende där modern funktion möter stilren design och genomtänkta detaljer.
Lägenheten har en öppen och social planlösning med vardagsrum i direkt anslutning till köket från Vedum, vilket skapar naturliga ytor för både umgänge och vardagsliv. Köket är utrustat med vitvaror från Electrolux och erbjuder goda arbetsytor samt plats för matbord.
Tre sovrum med varierande storlek ger flexibilitet för familj, arbete eller gäster. Bostaden har två balkonger – en nås från vardagsrummet och en från det största sovrummet – vilket ger möjlighet till både sociala stunder och avskildhet utomhus.
Interiören präglas av vitmålade väggar och genomgående ekparkettgolv som skapar en ljus och harmonisk atmosfär. Fönsternischer i natursten tillför en exklusiv känsla och förstärker det arkitektoniska uttrycket.
Det helkaklade badrummet är utrustat med både tvättmaskin och torktumlare, och kompletteras av en separat gäst-WC med dusch – ett praktiskt inslag för både familj och besökare. Förvaringsmöjligheter finns i ett separat förråd inne i bostaden.
Med ett attraktivt läge nära vatten, natur och stadspuls är detta ett hem som erbjuder både komfort och kvalitet i ett av Solnas mest eftertraktade områden.
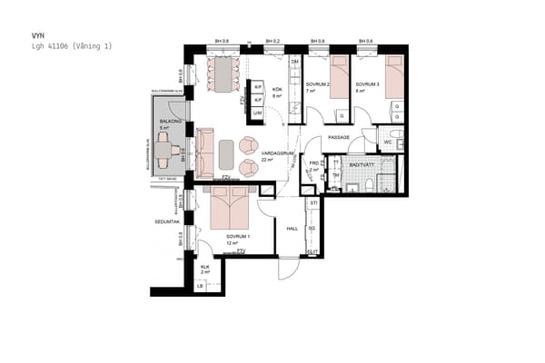
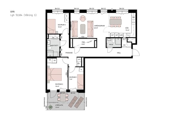
Lägenheten har en öppen och social planlösning med vardagsrum i direkt anslutning till köket från Vedum, vilket skapar naturliga ytor för både umgänge och vardagsliv. Köket är utrustat med vitvaror från Electrolux och erbjuder goda arbetsytor samt plats för matbord.
Tre sovrum med varierande storlek ger flexibilitet för familj, arbete eller gäster. Bostaden har två balkonger – en nås från vardagsrummet och en från det största sovrummet – vilket ger möjlighet till både sociala stunder och avskildhet utomhus.
Interiören präglas av vitmålade väggar och genomgående ekparkettgolv som skapar en ljus och harmonisk atmosfär. Fönsternischer i natursten tillför en exklusiv känsla och förstärker det arkitektoniska uttrycket.
Det helkaklade badrummet är utrustat med både tvättmaskin och torktumlare, och kompletteras av en separat gäst-WC med dusch – ett praktiskt inslag för både familj och besökare. Förvaringsmöjligheter finns i ett separat förråd inne i bostaden.
Med ett attraktivt läge nära vatten, natur och stadspuls är detta ett hem som erbjuder både komfort och kvalitet i ett av Solnas mest eftertraktade områden.










