3 rok, 78 m²
Välkommen till denna nyproducerade bostad med ett eftertraktat läge i Huvudsta Strandpark, där modern arkitektur samspelar med grönskande omgivningar och närhet till stadens utbud. Hemmet präglas av ett stilrent och tidlöst uttryck som skapar en harmonisk boendemiljö.
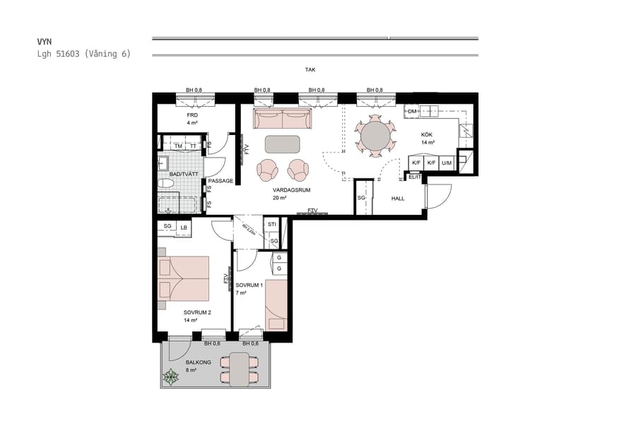
De sociala ytorna är öppna och väl sammanhållna där kök och vardagsrum möts på ett naturligt sätt. Planlösningen bjuder in till umgänge och erbjuder generösa ytor för både matplats och vardagsrumsmöbler utan att tumma på rymd och ljus.
Sovrummen är lugnt belägna och utformade för att skapa en privat och avkopplande atmosfär. Här finns goda förvaringsmöjligheter och plats för både säng och kompletterande möblering. Hallen är välkomnande med praktiska förvaringslösningar som ger ett ordnat helhetsintryck.
Den rymliga balkongen fungerar som en naturlig förlängning av bostaden och erbjuder gott om plats för möbler och växtlighet. En perfekt plats för avkoppling med utsikt mot de rogivande omgivningarna i Huvudsta Strandpark.
Badrummet är modernt och funktionellt utrustat med tvättmöjligheter för extra vardagskomfort. Köket från Vedum är smakfullt utformat med stilrena materialval och komplett maskinpark från Electrolux. Vitmålade väggar, ekparkettgolv och stora fönsterpartier med fönsternischer i natursten ger bostaden en ljus och exklusiv karaktär.
Ett modernt och välplanerat hem för dig som söker kvalitet, komfort och ett naturnära läge i Solna.
De sociala ytorna är öppna och väl sammanhållna där kök och vardagsrum möts på ett naturligt sätt. Planlösningen bjuder in till umgänge och erbjuder generösa ytor för både matplats och vardagsrumsmöbler utan att tumma på rymd och ljus.
Sovrummen är lugnt belägna och utformade för att skapa en privat och avkopplande atmosfär. Här finns goda förvaringsmöjligheter och plats för både säng och kompletterande möblering. Hallen är välkomnande med praktiska förvaringslösningar som ger ett ordnat helhetsintryck.
Den rymliga balkongen fungerar som en naturlig förlängning av bostaden och erbjuder gott om plats för möbler och växtlighet. En perfekt plats för avkoppling med utsikt mot de rogivande omgivningarna i Huvudsta Strandpark.
Badrummet är modernt och funktionellt utrustat med tvättmöjligheter för extra vardagskomfort. Köket från Vedum är smakfullt utformat med stilrena materialval och komplett maskinpark från Electrolux. Vitmålade väggar, ekparkettgolv och stora fönsterpartier med fönsternischer i natursten ger bostaden en ljus och exklusiv karaktär.
Ett modernt och välplanerat hem för dig som söker kvalitet, komfort och ett naturnära läge i Solna.












