3 rok, 55 m²
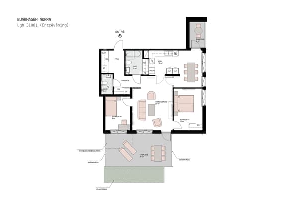
Attraktivt trerummare på gaveln med tillhörande garageplats och balkong mot park. Invändigt möts du av trestavig ekparkett, fönsterbänkar i natursten, vitmålade väggar samt ljusa ytskikt som grund.
Bostaden erbjuder fina sociala ytor med öppen planlösning mellan kök och vardagsrum samt med utgång till balkongen. Köket är stilrent och funktionellt inrett med vita skåpluckor samt smidiga utdragslådor. Goda arbetsytor med bänkskiva i grå laminat som fortsätter upp som ett stänkskydd. Den maskinella utrustningen består av kombinerade kyl/frys, induktionshäll, spiskåpa med utdragbar front, integrerad diskmaskin och varmluftsugn samt mikrovågsugn.
Intill vardagsrummet når man bostadens ena mindre sovrum med en garderob och möjlig frånvalsvägg om man vill ha lägenheten som en tvåa. Det andra större sovrummet nås från hall med två garderober och plats för dubbelsäng.
I anslutning till entré nås badrummet som har vitkaklade väggar och grått klinkergolv. Badrummet är fullt utrustat och i grunden ingår skärmvägg för dusch, torkställning (utan el), handfat med vit kommod och spegel med belysning ovanför, toalettstol samt tvättmaskin och torktumlare med fastmonterade överskåp ovanför. I hallen finns hatthylla och skjutdörrsgarderob samt ett städskåp.
Ägarlägenhet med låga driftskostnader samt stor personlig frihet.
Bostaden erbjuder fina sociala ytor med öppen planlösning mellan kök och vardagsrum samt med utgång till balkongen. Köket är stilrent och funktionellt inrett med vita skåpluckor samt smidiga utdragslådor. Goda arbetsytor med bänkskiva i grå laminat som fortsätter upp som ett stänkskydd. Den maskinella utrustningen består av kombinerade kyl/frys, induktionshäll, spiskåpa med utdragbar front, integrerad diskmaskin och varmluftsugn samt mikrovågsugn.
Intill vardagsrummet når man bostadens ena mindre sovrum med en garderob och möjlig frånvalsvägg om man vill ha lägenheten som en tvåa. Det andra större sovrummet nås från hall med två garderober och plats för dubbelsäng.
I anslutning till entré nås badrummet som har vitkaklade väggar och grått klinkergolv. Badrummet är fullt utrustat och i grunden ingår skärmvägg för dusch, torkställning (utan el), handfat med vit kommod och spegel med belysning ovanför, toalettstol samt tvättmaskin och torktumlare med fastmonterade överskåp ovanför. I hallen finns hatthylla och skjutdörrsgarderob samt ett städskåp.
Ägarlägenhet med låga driftskostnader samt stor personlig frihet.

















