1 rok, 31 m²
Ägarlägenhet om ett rum och kök med balkong mot gård i söder. Du möts av naturliga materialval såsom mattlackad och trestavig ekparkett, fönsterbänkar i natursten, vitmålade väggar samt ljusa ytskikt som grund.
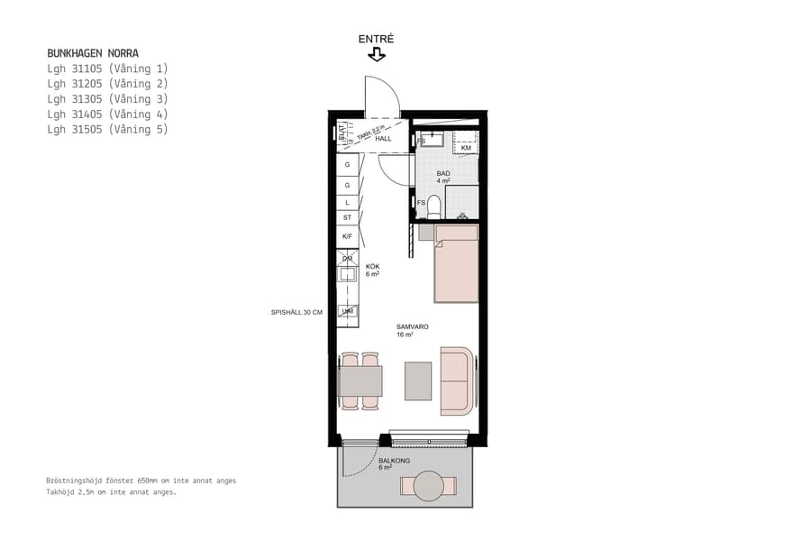
Välkomnande hall med plats för ytterkläder och förvaring i flera garderober. I anslutning till hallen nås badrummet med vitkaklade väggar och grått klinkergolv. Badrummet är fullt utrustat och i grunden ingår skärmvägg för dusch, torkställning (utan el), handfat med vit kommod och spegel med belysning ovanför, toalettstol samt egen kombimaskin med fastmonterat överskåp ovanför.
Allrum med öppen planlösning och plats för soffa och matplats samt sovalkov. Köket är stilrent och funktionellt inrett med vita skåpluckor samt smidiga utdragslådor som grund. För att underlätta köksbestyren finns bra arbetsytor med bänkskiva i grå laminat som fortsätter upp som ett stänkskydd. I utrustningsväg ingår som original en kombinerad kyl/frys, induktionshäll 30cm, spiskåpa med utdragbar front, integrerad diskmaskin samt kombinerad ugn/mikro.
Äganderätt med låga fasta kostnader.
Välkomnande hall med plats för ytterkläder och förvaring i flera garderober. I anslutning till hallen nås badrummet med vitkaklade väggar och grått klinkergolv. Badrummet är fullt utrustat och i grunden ingår skärmvägg för dusch, torkställning (utan el), handfat med vit kommod och spegel med belysning ovanför, toalettstol samt egen kombimaskin med fastmonterat överskåp ovanför.
Allrum med öppen planlösning och plats för soffa och matplats samt sovalkov. Köket är stilrent och funktionellt inrett med vita skåpluckor samt smidiga utdragslådor som grund. För att underlätta köksbestyren finns bra arbetsytor med bänkskiva i grå laminat som fortsätter upp som ett stänkskydd. I utrustningsväg ingår som original en kombinerad kyl/frys, induktionshäll 30cm, spiskåpa med utdragbar front, integrerad diskmaskin samt kombinerad ugn/mikro.
Äganderätt med låga fasta kostnader.


















