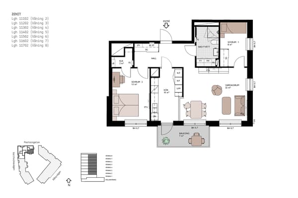
3 rok, 72 m²
Välplanerad hörntrea med härligt ljusinsläpp från fönster i två väderstreck. Kök i öppen planlösning mot vardagsrum. Sovrum med god förvaring i klädkammare.
HALL
Välkomnande hall med bra utrymme och förvaring.
VARDAGSRUM
Trevligt vardagsrum med härligt ljusinsläpp från fönster och balkongdörr. Gott om plats för en soffgrupp.
KÖK
Fullutrustat kök med i halvöppen planlösning mot vardagsrummet. Bra matplats vid fönstret. Köksluckor och bänkskiva från Vedum. Vitvarorna består av en integrerad diskmaskin, induktionshäll, varmluftsugn och mikro i högskåp samt två kyl/frys - allt från Electrolux.
Du har stora möjligheter att sätta din egen prägel på köket med både kostnadsfria val och ytterligare alternativ i olika prisklasser – i inredningsväljaren hittar du alla tillval.
SOVRUM 1
Sovrum med plats för dubbelsäng, förvaring i klädkammare.
SOVRUM 2
Sovrum med plats för säng, förvaring i skjutdörrsgarderob.
BADRUM
Helkaklat badrum med duschhörna som har dörrar i klarglas. Tvättmaskin och torktumlare från Electrolux. Ovanför tvättutrustningen finns en praktisk arbetsbänk och förvaring i väggskåp. JMs torkställning John och ytterligare förvaring i kommod gör det lätt att hålla ordning.
Även här finns möjlighet att sätta din egen prägel på bland annat kakel och klinker med både kostnadsfria tillval och ytterligare alternativ i olika prisklasser – i inredningsväljaren hittar du alla tillval.
HALL
Välkomnande hall med bra utrymme och förvaring.
VARDAGSRUM
Trevligt vardagsrum med härligt ljusinsläpp från fönster och balkongdörr. Gott om plats för en soffgrupp.
KÖK
Fullutrustat kök med i halvöppen planlösning mot vardagsrummet. Bra matplats vid fönstret. Köksluckor och bänkskiva från Vedum. Vitvarorna består av en integrerad diskmaskin, induktionshäll, varmluftsugn och mikro i högskåp samt två kyl/frys - allt från Electrolux.
Du har stora möjligheter att sätta din egen prägel på köket med både kostnadsfria val och ytterligare alternativ i olika prisklasser – i inredningsväljaren hittar du alla tillval.
SOVRUM 1
Sovrum med plats för dubbelsäng, förvaring i klädkammare.
SOVRUM 2
Sovrum med plats för säng, förvaring i skjutdörrsgarderob.
BADRUM
Helkaklat badrum med duschhörna som har dörrar i klarglas. Tvättmaskin och torktumlare från Electrolux. Ovanför tvättutrustningen finns en praktisk arbetsbänk och förvaring i väggskåp. JMs torkställning John och ytterligare förvaring i kommod gör det lätt att hålla ordning.
Även här finns möjlighet att sätta din egen prägel på bland annat kakel och klinker med både kostnadsfria tillval och ytterligare alternativ i olika prisklasser – i inredningsväljaren hittar du alla tillval.













