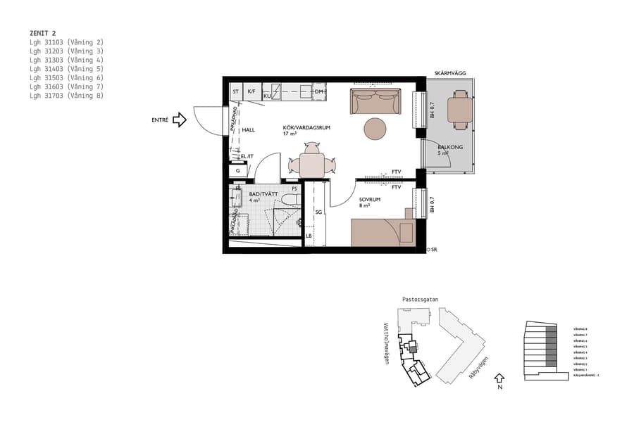
2 rok, 32 m²
Välplanerad och funktionell tvåa med härlig balkong mot innergården. Öppen planlösning mellan kök och vardagsrum skapar en luftig känsla med fint ljusinsläpp. Sovrummet har bra förvaring i skjutdörrsgarderob, och det helkaklade badrummet är utrustat med kombimaskin. Dessutom finns möjlighet att göra fina tillval för att sätta din egen prägel på bostaden.
KÖK/VARDAGSRUM:
Kök i öppen planlösning mot vardagsrum. Kök med kyl/frys, induktionshäll, ugn, micro och diskmaskin. Bra förvaring i köksskåp. Vardagsrum med ljusinsläpp från två väderstreck. Plats för soffa, tv-möbel och matplats.
SOVRUM:
Sovrum med god förvaring i skjutdörrsgarderob. Plats för säng och förvaring.
BADRUM:
Fint helkaklat badrum med wc, dusch, kommod och kombimaskin.
KÖK/VARDAGSRUM:
Kök i öppen planlösning mot vardagsrum. Kök med kyl/frys, induktionshäll, ugn, micro och diskmaskin. Bra förvaring i köksskåp. Vardagsrum med ljusinsläpp från två väderstreck. Plats för soffa, tv-möbel och matplats.
SOVRUM:
Sovrum med god förvaring i skjutdörrsgarderob. Plats för säng och förvaring.
BADRUM:
Fint helkaklat badrum med wc, dusch, kommod och kombimaskin.












