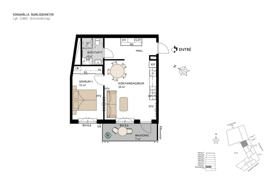
2 rok, 50 m²
Denna genomtänkta tvåa med balkong mot innergården är praktiskt belägen på första våningen och erbjuder alla bekvämligheter som förväntas av en modern bostad.
Du välkomnas in i bostadens rymliga hall med förvaring i skjutdörrsgarderob med spegelglas och flera möblerbara ytor. Rakt fram är det helkaklade badrummet beläget. Duschhörnan har svängbara dörrar i klarglas, något som öppnar upp för mer utrymme. Här finns gott om förvaring i vägghängd kommod och ett väggskåp. Under skåpet återfinns din nya tvättstuga – en arbetsbänk samt kombimaskin för både tvätt och tork.
Vidare finner ni kök och vardagsrum i ett öppet samband. Det praktiska köket är lättarbetat med goda ytor för matlagning. Här finns allt du kan förvänta dig av ett modernt kök i form av energisnåla vitvaror som utgörs av kombinerad kyl/frys, inbyggnadsugn och mikro, induktionshäll samt integrerad diskmaskin.
Därtill finns gott om plats för matgrupp och soffhörna för umgänge med nära och kära. Sommartid förlängs ytorna ut till den trevliga balkongen i härligt sydvästläge.
Det rofyllda sovrummet har plats för dubbelsäng och nattduksbord. Här finns även gott om förvaring i skjutdörrsgarderob längs ena väggen. Det flexibla hyllsystemet låter dig själv anpassa förvaringslösningen efter dina behov.
JM erbjuder sobra materialval med en genomgående hög finish. Originalinredningen går i tidlöst vitt, både vad gäller väggfärg, köks- och badrumsinredning. I köket kompletteras det vita med kontrasterande grå arbetsbänk som fortsätter upp som bakkantslist en bit på väggen. Maskinparken går i rostfritt. I badrummet kompletteras det vita av grått klinkergolv. Därtill finns flera tillval att göra.
I Kongahälla Ägarlägenheter bor du centralt och känner pulsen i denna nya stadsdel med all tänkbar service och kommunikationer runt husknuten. Är du inte bekant med området finns här ett stort utbud av butiker, caféer och restauranger och en kort promenad bort ligger Resecentrum för smidig transport både söder-och norrut.
Du välkomnas in i bostadens rymliga hall med förvaring i skjutdörrsgarderob med spegelglas och flera möblerbara ytor. Rakt fram är det helkaklade badrummet beläget. Duschhörnan har svängbara dörrar i klarglas, något som öppnar upp för mer utrymme. Här finns gott om förvaring i vägghängd kommod och ett väggskåp. Under skåpet återfinns din nya tvättstuga – en arbetsbänk samt kombimaskin för både tvätt och tork.
Vidare finner ni kök och vardagsrum i ett öppet samband. Det praktiska köket är lättarbetat med goda ytor för matlagning. Här finns allt du kan förvänta dig av ett modernt kök i form av energisnåla vitvaror som utgörs av kombinerad kyl/frys, inbyggnadsugn och mikro, induktionshäll samt integrerad diskmaskin.
Därtill finns gott om plats för matgrupp och soffhörna för umgänge med nära och kära. Sommartid förlängs ytorna ut till den trevliga balkongen i härligt sydvästläge.
Det rofyllda sovrummet har plats för dubbelsäng och nattduksbord. Här finns även gott om förvaring i skjutdörrsgarderob längs ena väggen. Det flexibla hyllsystemet låter dig själv anpassa förvaringslösningen efter dina behov.
JM erbjuder sobra materialval med en genomgående hög finish. Originalinredningen går i tidlöst vitt, både vad gäller väggfärg, köks- och badrumsinredning. I köket kompletteras det vita med kontrasterande grå arbetsbänk som fortsätter upp som bakkantslist en bit på väggen. Maskinparken går i rostfritt. I badrummet kompletteras det vita av grått klinkergolv. Därtill finns flera tillval att göra.
I Kongahälla Ägarlägenheter bor du centralt och känner pulsen i denna nya stadsdel med all tänkbar service och kommunikationer runt husknuten. Är du inte bekant med området finns här ett stort utbud av butiker, caféer och restauranger och en kort promenad bort ligger Resecentrum för smidig transport både söder-och norrut.














