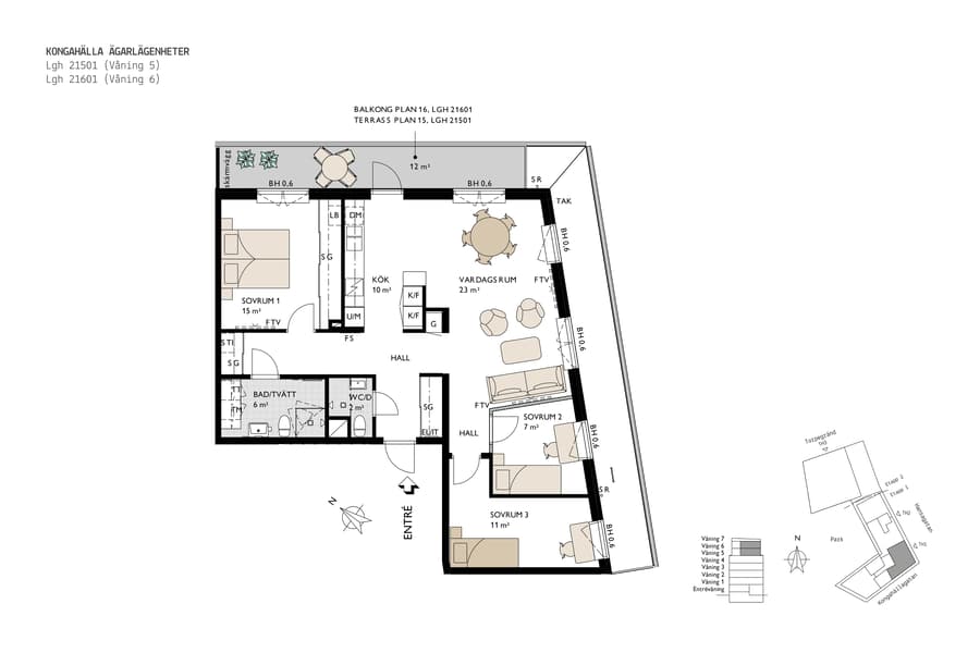
4 rok, 93 m²
Du välkomnas in i bostadens hall med förvaring i skjutdörrsgarderob. Direkt till vänster finner du det första badrummet, ett mindre sådant med dusch, kommod och toalett. Vidare nås kök och vardagsrum i ett öppet samband som flödar i ljus från två väderstreck. Det praktiska köket är lättarbetat med goda ytor för matlagning. Här finns allt du kan förvänta dig av ett modernt kök i form av energisnåla vitvaror som utgörs av två kombinerade kyl/frys, inbyggnadsugn och mikro, induktionshäll samt integrerad diskmaskin. Från köket nås den trevliga terrassen i österläge, perfekt för att avnjuta solen under dygnets tidigare timmar.
Låt matplatsen, som ryms invid fönster, bli en naturlig avskärmning mellan kök och vardagsrumsdel. Matplatsen rymmer såväl familj som gäster och möjliggör till långa middagsbjudningar. Vardagsrummet är skapat för det sociala umgänget med plats för mysig soffhörna.
Bostadens första sovrum nås från vardagsrummet har plats för sängmöbel och skrivbord. Ett perfekt barn- eller gästrum som även kan agera kontor, eller helt väljas bort till fördel för större vardagsrum! Innan för detta sovrum ligger nästa sovrum som även det har plats för sängmöbel och skrivbord eller förvaringsmöbel.
Via en inre hall, med förvaring i skjutdörrsgarderob nås det största sovrummet som har plats för dubbelsäng och nattduksbord. Här finns även gott om förvaring i skjutdörrsgarderob längs ena väggen. Det flexibla hyllsystemet låter dig själv anpassa förvaringslösningen efter dina behov.
I den inre hallen är det största helkaklade badrummet beläget. Duschhörnan har svängbara dörrar i klarglas, något som öppnar upp för mer utrymme. Här finns gott om förvaring i vägghängd kommod och ett väggskåp. Under skåpet återfinns din nya tvättstuga – en arbetsbänk samt kombimaskin för både tvätt och tork.
JM erbjuder sobra materialval med en genomgående hög finish. Originalinredningen går i tidlöst vitt, både vad gäller väggfärg, köks- och badrumsinredning. I köket kompletteras det vita med kontrasterande grå arbetsbänk som fortsätter upp som bakkantslist en bit på väggen. Maskinparken går i rostfritt. I badrummet kompletteras det vita av grått klinkergolv. Därtill finns flera tillval att göra.
I Kongahälla Ägarlägenheter bor du centralt och känner pulsen i denna nya stadsdel med all tänkbar service och kommunikationer runt husknuten. Är du inte bekant med området finns här ett stort utbud av butiker, caféer och restauranger och en kort promenad bort ligger Resecentrum för smidig transport både söder-och norrut.
Låt matplatsen, som ryms invid fönster, bli en naturlig avskärmning mellan kök och vardagsrumsdel. Matplatsen rymmer såväl familj som gäster och möjliggör till långa middagsbjudningar. Vardagsrummet är skapat för det sociala umgänget med plats för mysig soffhörna.
Bostadens första sovrum nås från vardagsrummet har plats för sängmöbel och skrivbord. Ett perfekt barn- eller gästrum som även kan agera kontor, eller helt väljas bort till fördel för större vardagsrum! Innan för detta sovrum ligger nästa sovrum som även det har plats för sängmöbel och skrivbord eller förvaringsmöbel.
Via en inre hall, med förvaring i skjutdörrsgarderob nås det största sovrummet som har plats för dubbelsäng och nattduksbord. Här finns även gott om förvaring i skjutdörrsgarderob längs ena väggen. Det flexibla hyllsystemet låter dig själv anpassa förvaringslösningen efter dina behov.
I den inre hallen är det största helkaklade badrummet beläget. Duschhörnan har svängbara dörrar i klarglas, något som öppnar upp för mer utrymme. Här finns gott om förvaring i vägghängd kommod och ett väggskåp. Under skåpet återfinns din nya tvättstuga – en arbetsbänk samt kombimaskin för både tvätt och tork.
JM erbjuder sobra materialval med en genomgående hög finish. Originalinredningen går i tidlöst vitt, både vad gäller väggfärg, köks- och badrumsinredning. I köket kompletteras det vita med kontrasterande grå arbetsbänk som fortsätter upp som bakkantslist en bit på väggen. Maskinparken går i rostfritt. I badrummet kompletteras det vita av grått klinkergolv. Därtill finns flera tillval att göra.
I Kongahälla Ägarlägenheter bor du centralt och känner pulsen i denna nya stadsdel med all tänkbar service och kommunikationer runt husknuten. Är du inte bekant med området finns här ett stort utbud av butiker, caféer och restauranger och en kort promenad bort ligger Resecentrum för smidig transport både söder-och norrut.













