4 rok, 102 m²
Näst högst upp i huset finner du denna välplanerade gavelfyra med terrass i sydväst och alla bekvämligheter som förväntas av ett nyproducerat boende. Upplev bekvämligheterna och friheten i en ägarlägenhet i populära Kongahälla.
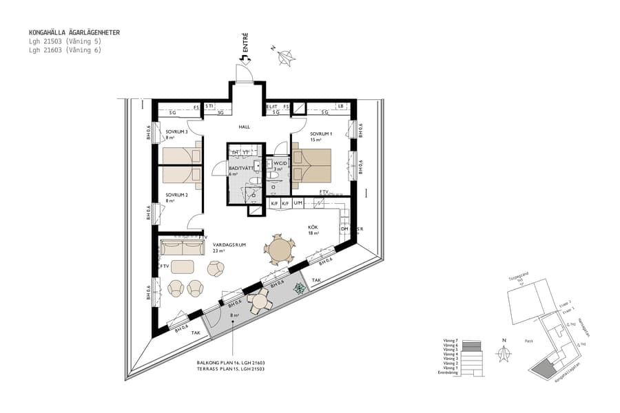
Stig in i den rymliga hallen som möter dig med förvaring i dubbla skjutdörrsgarderober. Närmast entrén ligger ett snyggt och slitstarkt klinkergolv, som övergår i ekparkett som löper vidare genom rummen.
Till vänster finner du bostadens första, tillika det största sovrummet med förvaring i skjutdörrsgarderob längs ena väggen. Här ryms med enkelhet dubbelsäng och nattduksbord och direkt utanför sovrumsdörren har du det första badrummet. Ett mindre helkaklat badrum med dusch, vägghängd kommod och toalett.
Tar du istället höger från entrén möts du av de andra två sovrummen i fil, båda om 8 kvm. Det ena erbjuder förvaring i skjutdörrsgarderob längs ena väggen medan det andra har mer yta för både sängmöbel och skrivbord. I anslutning till dessa sovrum är det andra badrummet strategiskt beläget. Detta badrum är också helkaklat med duschhörna med svängbara dörrar i klarglas, gott om förvaring i vägghängd kommod och flera väggskåp. Under arbetsbänken finner du tvättmaskin och torktumlare, för att smidigt hantera klädvården i vardagen.
Vidare finner du de sociala ytorna med kök och vardagsrum i ett öppet socialt samband. Det lättarbetade L-formade köket har gott om plats för matlagning i gemenskap och förvaring erbjuds i flera skåp och lådor. Här finns allt du kan förvänta dig av ett modernt kök i form av energisnåla vitvaror som utgörs av två kombinerade kyl/frys, inbyggnadsugn och mikro, induktionshäll samt integrerad diskmaskin.
Invid fönster finns gott om plats för matgrupp där du dukar upp till såväl vardagsmiddagen som festmåltiden med nära och kära.
Vardagsrummet i sin tur har plats för soffgrupp, tv-möbel och vidare möblemang. Sommartid öppnar du fördelaktigen upp till terrassen i sydvästläge med utsikt över grannskapet.
JM erbjuder sobra materialval med en genomgående hög finish. Denna lägenhet levereras med konceptet JM Original vilket innebär en genomgående neutral inredning i form av vita väggar och ekparkettgolv. Vitt kök från Vedum med grå arbetsbänk i laminat som fortsätter en bit upp på väggen som stänkskydd och kvalitativa rostfria vitvaror från Electrolux och Franke. Badrummen har matt vitt kakel i stående sättning och grå klinkergolv med underliggande komfortvärme. Det stora badrummet är utrustat med spegelskåp och vit kommod medan det mindre har belyst spegel och vit kommod. En neutral grund där du kan sätta din prägel genom möbler och inredning.
I Kongahälla Ägarlägenheter bor du centralt och känner pulsen i denna nya stadsdel med all tänkbar service och kommunikationer runt husknuten. Är du inte bekant med området finns här ett stort utbud av butiker, caféer och restauranger och en kort promenad bort ligger Resecentrum för smidig transport både söder-och norrut.
Stig in i den rymliga hallen som möter dig med förvaring i dubbla skjutdörrsgarderober. Närmast entrén ligger ett snyggt och slitstarkt klinkergolv, som övergår i ekparkett som löper vidare genom rummen.
Till vänster finner du bostadens första, tillika det största sovrummet med förvaring i skjutdörrsgarderob längs ena väggen. Här ryms med enkelhet dubbelsäng och nattduksbord och direkt utanför sovrumsdörren har du det första badrummet. Ett mindre helkaklat badrum med dusch, vägghängd kommod och toalett.
Tar du istället höger från entrén möts du av de andra två sovrummen i fil, båda om 8 kvm. Det ena erbjuder förvaring i skjutdörrsgarderob längs ena väggen medan det andra har mer yta för både sängmöbel och skrivbord. I anslutning till dessa sovrum är det andra badrummet strategiskt beläget. Detta badrum är också helkaklat med duschhörna med svängbara dörrar i klarglas, gott om förvaring i vägghängd kommod och flera väggskåp. Under arbetsbänken finner du tvättmaskin och torktumlare, för att smidigt hantera klädvården i vardagen.
Vidare finner du de sociala ytorna med kök och vardagsrum i ett öppet socialt samband. Det lättarbetade L-formade köket har gott om plats för matlagning i gemenskap och förvaring erbjuds i flera skåp och lådor. Här finns allt du kan förvänta dig av ett modernt kök i form av energisnåla vitvaror som utgörs av två kombinerade kyl/frys, inbyggnadsugn och mikro, induktionshäll samt integrerad diskmaskin.
Invid fönster finns gott om plats för matgrupp där du dukar upp till såväl vardagsmiddagen som festmåltiden med nära och kära.
Vardagsrummet i sin tur har plats för soffgrupp, tv-möbel och vidare möblemang. Sommartid öppnar du fördelaktigen upp till terrassen i sydvästläge med utsikt över grannskapet.
JM erbjuder sobra materialval med en genomgående hög finish. Denna lägenhet levereras med konceptet JM Original vilket innebär en genomgående neutral inredning i form av vita väggar och ekparkettgolv. Vitt kök från Vedum med grå arbetsbänk i laminat som fortsätter en bit upp på väggen som stänkskydd och kvalitativa rostfria vitvaror från Electrolux och Franke. Badrummen har matt vitt kakel i stående sättning och grå klinkergolv med underliggande komfortvärme. Det stora badrummet är utrustat med spegelskåp och vit kommod medan det mindre har belyst spegel och vit kommod. En neutral grund där du kan sätta din prägel genom möbler och inredning.
I Kongahälla Ägarlägenheter bor du centralt och känner pulsen i denna nya stadsdel med all tänkbar service och kommunikationer runt husknuten. Är du inte bekant med området finns här ett stort utbud av butiker, caféer och restauranger och en kort promenad bort ligger Resecentrum för smidig transport både söder-och norrut.












