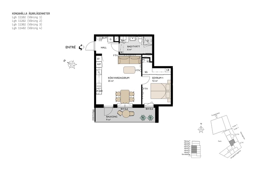
2 rok, 48 m²
På andra våningen finner du denna genomtänkta tvåa där alla bekvämligheter som förväntas av en modern bostad samsas på 48 smarta kvadrat. Vad sägs om en rymlig balkong och generöst med förvaring i sovrummet?
Du välkomnas in i bostadens hall med förvaring i garderob och kapphylla. Rakt fram är det helkaklade badrummet beläget. Duschhörnan har svängbara dörrar i klarglas, något som öppnar upp för mer utrymme. Här finns gott om förvaring i vägghängd kommod och ett väggskåp. Under skåpet återfinns din nya tvättstuga – en arbetsbänk samt kombimaskin för både tvätt och tork.
Vidare finner ni kök och vardagsrum i ett öppet samband. Det moderna köket är lättarbetat med goda ytor för matlagning och förvaring i lådor och skåp. Här finns allt du kan förvänta dig av ett modernt kök i form av energisnåla vitvaror som utgörs av kombinerad kyl/frys, inbyggnadsugn och mikro, induktionshäll samt integrerad diskmaskin.
Förutom köket inrymmer rummet ytor för en matgrupp och soffhörna. Sommartid förlängs ytorna ut till den härliga balkongen om 9 kvm i sydvästläge.
Det separata sovrummet erbjuder gott om förvaring i skjutdörrsgarderob och har plats för sängmöbel och nattduksbord. Det flexibla hyllsystemet gör det möjligt för dig att anpassa förvaringen efter dina behov.
JM erbjuder sobra materialval med en genomgående hög finish. Originalinredningen går i tidlöst vitt, både vad gäller väggfärg, köks- och badrumsinredning. I köket kompletteras det vita med kontrasterande grå arbetsbänk som fortsätter upp som bakkantslist en bit på väggen. Maskinparken går i rostfritt. I badrummet kompletteras det vita av grått klinkergolv. Därtill finns flera tillval att göra.
I Kongahälla Ägarlägenheter bor du centralt och känner pulsen i denna nya stadsdel med all tänkbar service och kommunikationer runt husknuten. Är du inte bekant med området finns här ett stort utbud av butiker, caféer och restauranger och en kort promenad bort ligger Resecentrum för smidig transport både söder-och norrut.
Du välkomnas in i bostadens hall med förvaring i garderob och kapphylla. Rakt fram är det helkaklade badrummet beläget. Duschhörnan har svängbara dörrar i klarglas, något som öppnar upp för mer utrymme. Här finns gott om förvaring i vägghängd kommod och ett väggskåp. Under skåpet återfinns din nya tvättstuga – en arbetsbänk samt kombimaskin för både tvätt och tork.
Vidare finner ni kök och vardagsrum i ett öppet samband. Det moderna köket är lättarbetat med goda ytor för matlagning och förvaring i lådor och skåp. Här finns allt du kan förvänta dig av ett modernt kök i form av energisnåla vitvaror som utgörs av kombinerad kyl/frys, inbyggnadsugn och mikro, induktionshäll samt integrerad diskmaskin.
Förutom köket inrymmer rummet ytor för en matgrupp och soffhörna. Sommartid förlängs ytorna ut till den härliga balkongen om 9 kvm i sydvästläge.
Det separata sovrummet erbjuder gott om förvaring i skjutdörrsgarderob och har plats för sängmöbel och nattduksbord. Det flexibla hyllsystemet gör det möjligt för dig att anpassa förvaringen efter dina behov.
JM erbjuder sobra materialval med en genomgående hög finish. Originalinredningen går i tidlöst vitt, både vad gäller väggfärg, köks- och badrumsinredning. I köket kompletteras det vita med kontrasterande grå arbetsbänk som fortsätter upp som bakkantslist en bit på väggen. Maskinparken går i rostfritt. I badrummet kompletteras det vita av grått klinkergolv. Därtill finns flera tillval att göra.
I Kongahälla Ägarlägenheter bor du centralt och känner pulsen i denna nya stadsdel med all tänkbar service och kommunikationer runt husknuten. Är du inte bekant med området finns här ett stort utbud av butiker, caféer och restauranger och en kort promenad bort ligger Resecentrum för smidig transport både söder-och norrut.














