3 rok, 78 m²
I naturnära Tölö Kungsbacka, växer ett nytt bostadsområde fram – perfekt för dig som söker ett modernt, bekvämt och lättskött hem med närhet till både natur och stad. Här erbjuds en nyproducerad bostadsrätt om 78 kvm med två sovrum, öppen planlösning, en separat klädkammare och en generös balkong om cirka 10 kvm i nordvästligt läge.
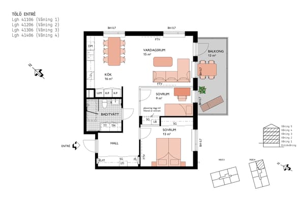
Bostaden har en genomtänkt och yteffektiv planlösning där varje kvadratmeter nyttjas smart. Hallen är möblerbar och utrustad med skjutdörrsgarderober för praktisk förvaring direkt vid entrén. Genom hela bostaden ligger en trestavs ekparkett som tillsammans med vitmålade väggar skapar en ljus och harmonisk grund.
Det öppna köket från Vedum har släta vita luckor, grå laminatbänkskiva och vitvaror från Electrolux – inklusive dubbla kyl/frysar, inbyggd mikro och ugn samt integrerad diskmaskin. Köket övergår sömlöst i vardagsrummet, vilket skapar ett luftigt och socialt utrymme med plats för både soffgrupp och matbord.
Från vardagsrummet når du balkongen om cirka 10 kvm i nordvästligt läge.
Det större sovrummet är rymligt och har plats för dubbelsäng. Det mindre sovrummet lämpar sig väl som barnrum, gästrum eller arbetsrum.
Det helkaklade badrummet är inrett i vitt och grått och utrustat med dusch, separat tvättmaskin och torktumlare samt plats för förvaring. Utöver garderober och klädkammare ingår även ett externt förråd som kompletterar hemmets förvaringsmöjligheter.
Tölö erbjuder ett lugnt och trivsamt läge med närhet till skog, gångstråk och vardagsservice. Kungsbacka centrum och Hede station nås snabbt med cykel, bil eller buss – och pendlingen till Göteborg är smidig via E6:an eller tåg.
Välkommen till ett nyproducerat hem där modern funktion möter ett naturnära liv – med smart planlösning, låg underhållsnivå och en skön balkong för ljusa eftermiddagar och stilla kvällar.
Bostaden har en genomtänkt och yteffektiv planlösning där varje kvadratmeter nyttjas smart. Hallen är möblerbar och utrustad med skjutdörrsgarderober för praktisk förvaring direkt vid entrén. Genom hela bostaden ligger en trestavs ekparkett som tillsammans med vitmålade väggar skapar en ljus och harmonisk grund.
Det öppna köket från Vedum har släta vita luckor, grå laminatbänkskiva och vitvaror från Electrolux – inklusive dubbla kyl/frysar, inbyggd mikro och ugn samt integrerad diskmaskin. Köket övergår sömlöst i vardagsrummet, vilket skapar ett luftigt och socialt utrymme med plats för både soffgrupp och matbord.
Från vardagsrummet når du balkongen om cirka 10 kvm i nordvästligt läge.
Det större sovrummet är rymligt och har plats för dubbelsäng. Det mindre sovrummet lämpar sig väl som barnrum, gästrum eller arbetsrum.
Det helkaklade badrummet är inrett i vitt och grått och utrustat med dusch, separat tvättmaskin och torktumlare samt plats för förvaring. Utöver garderober och klädkammare ingår även ett externt förråd som kompletterar hemmets förvaringsmöjligheter.
Tölö erbjuder ett lugnt och trivsamt läge med närhet till skog, gångstråk och vardagsservice. Kungsbacka centrum och Hede station nås snabbt med cykel, bil eller buss – och pendlingen till Göteborg är smidig via E6:an eller tåg.
Välkommen till ett nyproducerat hem där modern funktion möter ett naturnära liv – med smart planlösning, låg underhållsnivå och en skön balkong för ljusa eftermiddagar och stilla kvällar.









