4 rok, 97 m²
Takvåning om 97 kvm i naturnära Tölö – tre sovrum, två badrum och takfönster
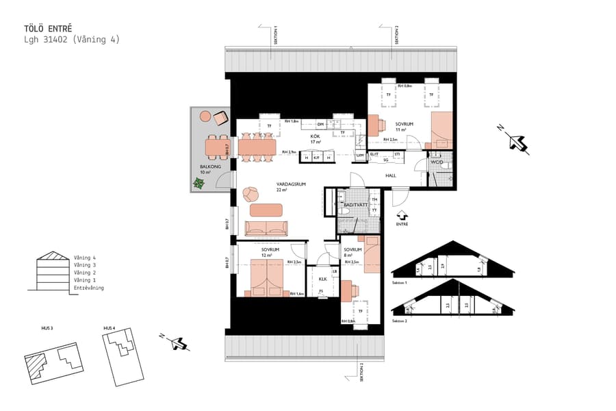
I det nya kvarteret i Tölö, Kungsbacka, erbjuds nu en rymlig och ljus takvåning för dig som söker ett bekvämt, nyproducerat hem med närhet till både natur och stad. Denna bostadsrätt om 97 kvm har tre sovrum, två badrum, generös takhöjd, takfönster och en balkong i nordvästläge – perfekt för lugna kvällar med utsikt mot himlen.
Högst upp i huset och med ett läge i gaveldel får du ett härligt ljusinsläpp från flera väderstreck. Den extra takhöjden tillsammans med takfönstren förstärker känslan av rymd och bidrar till en luftig och modern atmosfär i hela bostaden.
Planlösningen är väl avvägd – med en tydlig uppdelning mellan sällskapsytor och privata rum. I hallen finns skjutdörrsgarderober och praktiska förvaringslösningar. Härifrån öppnar bostaden upp mot det öppna kök- och vardagsrummet – bostadens naturliga mittpunkt.
Köket från Vedum är stilrent med släta vita luckor och grå laminatbänkskiva. Vitvaror från Electrolux ingår, däribland dubbla kyl/frysar, inbyggd mikro och ugn samt integrerad diskmaskin. Möjlighet finns att göra egna tillval för att sätta din personliga prägel. Den öppna planlösningen skapar en social yta där du får plats med både matgrupp och soffhörna. Från vardagsrummet nås balkongen om cirka 10 kvm i nordvästligt läge!
Lägenheten har tre sovrum i olika storlek. Det största rummet har plats för dubbelsäng och tillgång till en separat klädkammare, medan de två mindre rummen lämpar sig utmärkt som barnrum, kontor eller gästrum – flexibla ytor som kan anpassas efter behov.
Två badrum gör vardagen smidig – båda helkaklade i vitt och grått, med dusch i det ena och både tvättmaskin och torktumlare i det andra. Enkelt, snyggt och funktionellt.
Genom hela bostaden ligger en trestavs ekparkett och väggarna är målade i vitt – en ljus och tidlös bas att bygga vidare på med din egen stil. Bostaden har gott om förvaring, både invändigt och via ett externt förråd som ingår.
Området Tölö är omgivet av natur, med skog, promenadstigar och grönområden precis runt hörnet. Samtidigt når du Kungsbacka centrum på bara några minuter med cykel eller bil, och Hede station ger smidig pendling till Göteborg.
Här bor du i en nyproducerad takvåning där varje kvadratmeter är planerad med omtanke – ett hem som kombinerar funktion, komfort och ett naturnära läge.
I det nya kvarteret i Tölö, Kungsbacka, erbjuds nu en rymlig och ljus takvåning för dig som söker ett bekvämt, nyproducerat hem med närhet till både natur och stad. Denna bostadsrätt om 97 kvm har tre sovrum, två badrum, generös takhöjd, takfönster och en balkong i nordvästläge – perfekt för lugna kvällar med utsikt mot himlen.
Högst upp i huset och med ett läge i gaveldel får du ett härligt ljusinsläpp från flera väderstreck. Den extra takhöjden tillsammans med takfönstren förstärker känslan av rymd och bidrar till en luftig och modern atmosfär i hela bostaden.
Planlösningen är väl avvägd – med en tydlig uppdelning mellan sällskapsytor och privata rum. I hallen finns skjutdörrsgarderober och praktiska förvaringslösningar. Härifrån öppnar bostaden upp mot det öppna kök- och vardagsrummet – bostadens naturliga mittpunkt.
Köket från Vedum är stilrent med släta vita luckor och grå laminatbänkskiva. Vitvaror från Electrolux ingår, däribland dubbla kyl/frysar, inbyggd mikro och ugn samt integrerad diskmaskin. Möjlighet finns att göra egna tillval för att sätta din personliga prägel. Den öppna planlösningen skapar en social yta där du får plats med både matgrupp och soffhörna. Från vardagsrummet nås balkongen om cirka 10 kvm i nordvästligt läge!
Lägenheten har tre sovrum i olika storlek. Det största rummet har plats för dubbelsäng och tillgång till en separat klädkammare, medan de två mindre rummen lämpar sig utmärkt som barnrum, kontor eller gästrum – flexibla ytor som kan anpassas efter behov.
Två badrum gör vardagen smidig – båda helkaklade i vitt och grått, med dusch i det ena och både tvättmaskin och torktumlare i det andra. Enkelt, snyggt och funktionellt.
Genom hela bostaden ligger en trestavs ekparkett och väggarna är målade i vitt – en ljus och tidlös bas att bygga vidare på med din egen stil. Bostaden har gott om förvaring, både invändigt och via ett externt förråd som ingår.
Området Tölö är omgivet av natur, med skog, promenadstigar och grönområden precis runt hörnet. Samtidigt når du Kungsbacka centrum på bara några minuter med cykel eller bil, och Hede station ger smidig pendling till Göteborg.
Här bor du i en nyproducerad takvåning där varje kvadratmeter är planerad med omtanke – ett hem som kombinerar funktion, komfort och ett naturnära läge.




