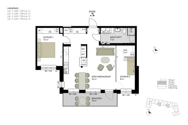
3 rok, 91 m²
Välplanerad och genomgående ägarlägenhet om 3 rok på 91 kvm på våning 2 med härlig balkong mot gården i sydväst. Bostaden har både klädkammare och skjutdörrsgarderober med bra plats till förvaring. Badrum med plats för badkar som inredningsval samt bekvämlighet med både tvättmaskin och torktumlare, spotlights i tak. Finns även en extra gäst-wc. Bostaden är inredd med kök från Vedum i stilren design och vitvaror från Electrolux. I kvarteret kommer det finnas tillgång till både en gemensam takterrass och en bokningsbar gästlägenhet. Förråd tillhör lägenheten. I avgiften till samfällighetsföreningen ingår följande: Värme, varm-och kallvatten (Schablonkostnad för varm- och kallvatten. Mätning av förbrukning gällande kall-och varmvatten sker och lägenhetsinnehavare kommer att debiteras efter verklig förbrukning), renhållning, avsättning underhåll, förvaltning (teknisk samt ekonomisk), gemensam el, fastighetsförsäkring, serviceavtal, administration och mätaravgifter. Även garage eller markparkering ingår.












