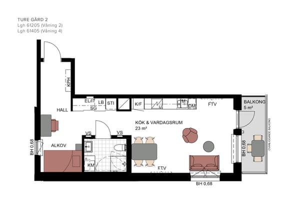
1 rok, 35 m²
Yteffektiv etta med sovalkov och plats för stor säng. Förvaring i skjutdörrsgarderob och balkong i västerläge mot innergården.
HALL
Hall med förvaring i stor skjutdörrsgarderob.
KÖK/VARDAGSRUM
Köket har en modern inredning med släta, vita skåpluckor och en grå bänkskiva med matchande bakkantslist. En LED-list med dimmer ovanför bänken ger energieffektivt och stämningsfullt arbetsljus. Väggskåpen är handtagslösa för ett stilrent intryck, medan lådor och bänkskåp har rostfria handtag som bryter av på ett smakfullt sätt. Köket är utrustat med induktionshäll, ugn och mikrovågsugn placerade i praktiskt högskåp samt integrerad diskmaskin. Kyl/frys i rostfritt stål från Electrolux.
Du har stora möjligheter att sätta din egen prägel på köket med inredningsval – i den digitala inredningsväljaren hittar du alla tillval.
Det öppna vardagsrummet erbjuder gott om utrymme för soffgrupp och matplats. Här finns även altandörren som leder ut till balkongen, perfekt för sociala stunder och avkoppling.
SOVALKOV
Praktisk sovalkov med plats för större säng.
BADRUM
Helkaklat badrum med duschhörna med dörrar i klarglas. Kombimaskin från Electrolux. Ovanför tvättutrustningen finns en praktisk arbetsbänk och förvaring i väggskåp. JMs torkställning John och ytterligare förvaring i kommod gör det lätt att hålla ordning.
Även i badrummet finns möjlighet att sätta din egen prägel på bland annat kakel och klinker med inredningsval – i den digitala inredningsväljaren hittar du alla tillval.
BALKONG
Möblerbar balkong i västerläge mot den grönskande innergården. Här finns gott om plats för både sittgrupp och egna planteringar.
Lägenheten utrustas med Triple play från Telia (IP-telefoni, bredband och tv). I månadsavgiften ingår ca 20 tv-kanaler, internetanslutning 1000/1000 Mbit/s, bredbandstelefoni samt värme och kallvatten. Till bostaden hör ett källarförråd.
HALL
Hall med förvaring i stor skjutdörrsgarderob.
KÖK/VARDAGSRUM
Köket har en modern inredning med släta, vita skåpluckor och en grå bänkskiva med matchande bakkantslist. En LED-list med dimmer ovanför bänken ger energieffektivt och stämningsfullt arbetsljus. Väggskåpen är handtagslösa för ett stilrent intryck, medan lådor och bänkskåp har rostfria handtag som bryter av på ett smakfullt sätt. Köket är utrustat med induktionshäll, ugn och mikrovågsugn placerade i praktiskt högskåp samt integrerad diskmaskin. Kyl/frys i rostfritt stål från Electrolux.
Du har stora möjligheter att sätta din egen prägel på köket med inredningsval – i den digitala inredningsväljaren hittar du alla tillval.
Det öppna vardagsrummet erbjuder gott om utrymme för soffgrupp och matplats. Här finns även altandörren som leder ut till balkongen, perfekt för sociala stunder och avkoppling.
SOVALKOV
Praktisk sovalkov med plats för större säng.
BADRUM
Helkaklat badrum med duschhörna med dörrar i klarglas. Kombimaskin från Electrolux. Ovanför tvättutrustningen finns en praktisk arbetsbänk och förvaring i väggskåp. JMs torkställning John och ytterligare förvaring i kommod gör det lätt att hålla ordning.
Även i badrummet finns möjlighet att sätta din egen prägel på bland annat kakel och klinker med inredningsval – i den digitala inredningsväljaren hittar du alla tillval.
BALKONG
Möblerbar balkong i västerläge mot den grönskande innergården. Här finns gott om plats för både sittgrupp och egna planteringar.
Lägenheten utrustas med Triple play från Telia (IP-telefoni, bredband och tv). I månadsavgiften ingår ca 20 tv-kanaler, internetanslutning 1000/1000 Mbit/s, bredbandstelefoni samt värme och kallvatten. Till bostaden hör ett källarförråd.













