2 rok, 55 m²
En trappa upp finner du denna genomtänkta tvåa där alla bekvämligheter som förväntas av en modern bostad samsas på 55 smarta kvadrat.
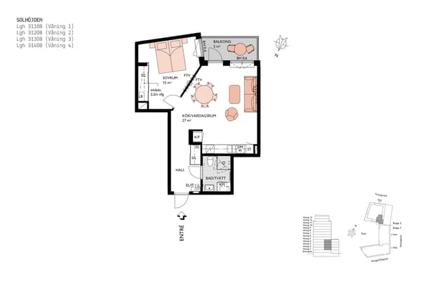
Du välkomnas in i bostadens hall med förvaring i skjutdörrsgarderob och klädkammare. Till vänster är det helkaklade badrummet beläget. Duschhörnan har svängbara dörrar i klarglas, något som öppnar upp för mer utrymme. Här finns gott om förvaring i vägghängd kommod och ett väggskåp. Under skåpet återfinns din nya tvättstuga – en arbetsbänk samt kombimaskin för både tvätt och tork.
Vidare finner ni kök och vardagsrum i ett öppet samband. Det moderna vinkelköket är lättarbetat med goda ytor för matlagning och förvaring i lådor och skåp. Här finns allt du kan förvänta dig av ett modernt kök i form av energisnåla vitvaror som utgörs av kombinerad kyl/frys, inbyggnadsugn och mikro, induktionshäll samt integrerad diskmaskin.
Förutom köket inrymmer rummet ytor för matgrupp och soffhörna. Sommartid förlängs ytorna ut till den härliga balkongen om 5 kvm med möjlig kvällssol under sommartid.
Det separata sovrummet med dubbla dörrar erbjuder förvaring i skjutdörrsgarderob och har plats för sängmöbel och nattduksbord samt en skrivbordshörna.
JM erbjuder sobra materialval med en genomgående hög finish. Originalinredningen går i tidlöst vitt, både vad gäller väggfärg, köks- och badrumsinredning. I köket kompletteras det vita med kontrasterande grå arbetsbänk som fortsätter upp som bakkantslist en bit på väggen. Maskinparken går i rostfritt. I badrummet kompletteras det vita av grått klinkergolv. Därtill finns flera tillval att göra.
I Solhöjden bor du centralt och känner pulsen i denna nya stadsdel med all tänkbar service och kommunikationer runt husknuten. Är du inte bekant med området finns här ett stort utbud av butiker, caféer och restauranger och en kort promenad bort ligger Resecentrum för smidig transport både söder-och norrut.
Du välkomnas in i bostadens hall med förvaring i skjutdörrsgarderob och klädkammare. Till vänster är det helkaklade badrummet beläget. Duschhörnan har svängbara dörrar i klarglas, något som öppnar upp för mer utrymme. Här finns gott om förvaring i vägghängd kommod och ett väggskåp. Under skåpet återfinns din nya tvättstuga – en arbetsbänk samt kombimaskin för både tvätt och tork.
Vidare finner ni kök och vardagsrum i ett öppet samband. Det moderna vinkelköket är lättarbetat med goda ytor för matlagning och förvaring i lådor och skåp. Här finns allt du kan förvänta dig av ett modernt kök i form av energisnåla vitvaror som utgörs av kombinerad kyl/frys, inbyggnadsugn och mikro, induktionshäll samt integrerad diskmaskin.
Förutom köket inrymmer rummet ytor för matgrupp och soffhörna. Sommartid förlängs ytorna ut till den härliga balkongen om 5 kvm med möjlig kvällssol under sommartid.
Det separata sovrummet med dubbla dörrar erbjuder förvaring i skjutdörrsgarderob och har plats för sängmöbel och nattduksbord samt en skrivbordshörna.
JM erbjuder sobra materialval med en genomgående hög finish. Originalinredningen går i tidlöst vitt, både vad gäller väggfärg, köks- och badrumsinredning. I köket kompletteras det vita med kontrasterande grå arbetsbänk som fortsätter upp som bakkantslist en bit på väggen. Maskinparken går i rostfritt. I badrummet kompletteras det vita av grått klinkergolv. Därtill finns flera tillval att göra.
I Solhöjden bor du centralt och känner pulsen i denna nya stadsdel med all tänkbar service och kommunikationer runt husknuten. Är du inte bekant med området finns här ett stort utbud av butiker, caféer och restauranger och en kort promenad bort ligger Resecentrum för smidig transport både söder-och norrut.











