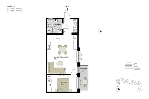
2 rok, 40 m²
På 40 kvm får du här en kompakt tvåa som verkligen utnyttjar ytan på bästa sätt. Den öppna planlösningen mellan kök och vardagsrum gör bostaden social och ljus, medan sovrummet ger en privat oas. Balkongen blir ett extra rum större delen av året, perfekt för frukost i morgonssolen. Badrummet är utrustat med kombimaskin och smarta förvaringslösningar gör vardagen enkel.
Fartyget består av 89 bostäder med fokus på kvalitet, funktion och modern design. Alla hem har kök från Vedum och vitvaror från Electrolux. Som boende får du tillgång till garage med laddplatser, cykelhus och bil- och cykelpool.
Dockan är platsen där du kan leva ett liv nära både natur och puls. Här väntar kajpromenader, salta dopp och stadens utbud runt hornet, ett hem för dig som vill ha allt.
Fartyget består av 89 bostäder med fokus på kvalitet, funktion och modern design. Alla hem har kök från Vedum och vitvaror från Electrolux. Som boende får du tillgång till garage med laddplatser, cykelhus och bil- och cykelpool.
Dockan är platsen där du kan leva ett liv nära både natur och puls. Här väntar kajpromenader, salta dopp och stadens utbud runt hornet, ett hem för dig som vill ha allt.
















