Boka bostaden före någon annan

Läs mer om hur det funkar att boka bostad

3 rok, 76 m²

Till salu
Pris
4 740 000 kr
Avgift
5 650 kr
Våning
1 / 4
Balkong
11 m², Väst
Tillträde
prel. okt. 2027

Boka bostaden före någon annan!

Den här bostaden går att boka. Läs mer om hur det funkar att boka bostad hos JM.

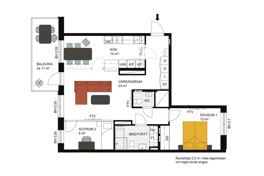
Planlösning

I planlösningen visas bostadsytans disposition. Se information så som mått, hur rummen är uppdelade och balkongens placering.

Floorplan

Balkongutsikt

Visionsbild som visar utsikten från balkongen eller uteplatsen.

Bostäderna är miljömärkta

Läs mer

Trygg bostadsrättsmarknad

Läs mer

Välj bostad

Se och jämför bostäderna i bostadsväljaren. Det du ser är visionsbilder och avvikelser kan förekomma.

Dölj alla bostäder
StatusRumPrisAvgiftBoareaVåningTillträdeNrAdress
Till salu22 340 000 kr3 800 kr41 m²0 / 4prel. dec. 202741001Östra Kasernvägen 9CLäs mer om objekt 41001
Till salu22 440 000 kr3 650 kr39 m²0 / 3prel. sep. 202711002Östra Kasernvägen 11Läs mer om objekt 11002
Till salu22 590 000 kr3 700 kr39 m²0 / 4prel. nov. 202731002Östra Kasernvägen 9BLäs mer om objekt 31002
Till salu22 640 000 kr3 990 kr45 m²1 / 4prel. okt. 202721102Östra Kasernvägen 9ALäs mer om objekt 21102
Till salu22 740 000 kr4 030 kr46 m²1 / 3prel. sep. 202711102Östra Kasernvägen 11Läs mer om objekt 11102
Till salu34 740 000 kr5 650 kr76 m²1 / 4prel. okt. 202721103Östra Kasernvägen 9ALäs mer om objekt 21103

Skärgårdsterrassen

Bo vid Rindö Hamn i ett unikt bostadskvarter i skärgårdsmiljö. Några av bostäderna högst upp får egen terrass med utsikt över havet.

Läs mer om projektet

Tidslinje

Säljstart
2025-12-28
Nu släpps de bostäder som inte bokats av VIP-kunder till försäljning, och vi publicerar prislistan med planlösningar här på projektsidan.

/ 8
laddar

Intresseanmälan

Ansvarig mäklare kommer att kontakta dig med mer information om bostäderna när du har anmält intresse.

Om du har ett konto hos oss sedan tidigare blir du ombedd att logga in för att slutföra din intresseanmälan.

Fler bostäder i närheten

Se alla

Till salu
Bostäderna är välplanerade och ljusa med tidlös inredning (visionsbild).
Planlösning.
Vaxholm kommun / Rindö / Skärgårdsterrassen

3 rok, 77 m²

Bostadsrätt, 4 490 000 kr
Tillträde prel. sep. 2027

Mån 20/4 17:00Läs mer om objekt 11001
Till salu
Exempel på sovrum med fin planlösning (visionsbild).
Planlösning.
Vaxholm kommun / Rindö / Skärgårdsterrassen

3 rok, 86 m²

Bostadsrätt, 5 440 000 kr
Tillträde prel. sep. 2027

Mån 20/4 17:00Läs mer om objekt 11003
Till salu
Bostäderna är välplanerade och ljusa med tidlös inredning (visionsbild).
Planlösning.
Vaxholm kommun / Rindö / Skärgårdsterrassen

3 rok, 77 m²

Bostadsrätt, 4 590 000 kr
Våning 1/3
Tillträde prel. sep. 2027

Mån 20/4 17:00Läs mer om objekt 11101