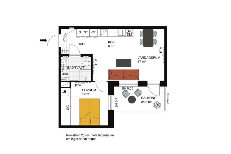
2 rok, 45 m²
Här presenteras en genomtänkt tvårummare med välplanerade kvadrat i ett fint hörnläge med en rymlig balkong i söderläge med utsikt mot vattnet, en bostad som bjuder på många kvaliteter som vackert ljusinsläpp, genomtänkt planlösning och goda förvaringsmöjligheter. Bostaden är omsorgsfullt planerad från första steget in i hallen, här möts du av en inbjudande entré med förvaring och ingång till bostadens badrum. Vidare följer ett stilrent kök och vardagsrum i öppen planlösning där varje yta har en tydlig funktion, trots den kvadratsmarta ytan ryms både matplats och soffhörna utan att det känns trångt.
Det rogivande sovrummet rymmer både dubbelsäng och gott om förvaring bakom skjutdörrsgarderob, utöver ett fullt utrustat kök är även badrummet fullt utrustat med kombinerad tvättmaskin och torktumlare samt dusch med smakfulla glasväggar vilket skapar en bostad som lämnar lite att önska.
I originalutförandet är färgsättningen ljus och sober med en mattlackad ekparkett och genomgående vitmålade väggar. Köket inreds då med släta vita luckor och en grå bänkskiva som fortsätter en bit upp på väggen med en bakkantslist. Köksskåpen ovan bänk är handtagslösa vilket skapar en stilren och modern känsla, under väggskåpen sitter en LED-list som ger ett bra och energisnålt arbetsljus. Handtag på bänk- och högskåp är rostfria vilket även vitvaror är och med en integrerad diskmaskinen skapas här ett enhetligt intryck. Vill du sätta din egen prägel på bostaden finns det möjlighet att inom JM:s inredningsval välja färgsättning och materialval bland en mängd olika alternativ.
Badrummet är helkaklat med kakel i vitt och klinkers i grått som samspelar fint med köket och skapar en genomtänkt och medveten stil. En kommod under tvättstället gör det lätt att hålla ordning i badrummet och ovanför kombinerad tvättmaskin och torktumlare sitter förvaring i väggskåp. Andra fina detaljer i badrummet är duschväggar av glas och en praktisk torkställningen.
Bostadsrättsföreningen har en gemensam trivsam innergård där du kan njuta av trevlig samvaro och många soltimmar. I föreningen finns en övernattningslägenhet som går att hyra för föreningens medlemmar samt ett bekvämt garage under huset, här finns både vanliga platser och platser med laddbox att hyra till en månadskostnad. Utöver dessa ytor har föreningen även miljörum för källsortering och cykel- och barnvagnsförråd. Grundutbud med TV, IP-telefoni och bredband erbjuds via Telia Tripleplay och ingår i månadsavgiften.
I JMs nya kvarter Skärgårdsterrassen bor du i moderna bostäder som kombinerar fördelarna med nyproduktion med närhet till natur och hav. Härifrån tar du enkelt färjan till Vaxholms charmiga stadskärna med sitt rika utbud av caféer, restauranger och service.
Det rogivande sovrummet rymmer både dubbelsäng och gott om förvaring bakom skjutdörrsgarderob, utöver ett fullt utrustat kök är även badrummet fullt utrustat med kombinerad tvättmaskin och torktumlare samt dusch med smakfulla glasväggar vilket skapar en bostad som lämnar lite att önska.
I originalutförandet är färgsättningen ljus och sober med en mattlackad ekparkett och genomgående vitmålade väggar. Köket inreds då med släta vita luckor och en grå bänkskiva som fortsätter en bit upp på väggen med en bakkantslist. Köksskåpen ovan bänk är handtagslösa vilket skapar en stilren och modern känsla, under väggskåpen sitter en LED-list som ger ett bra och energisnålt arbetsljus. Handtag på bänk- och högskåp är rostfria vilket även vitvaror är och med en integrerad diskmaskinen skapas här ett enhetligt intryck. Vill du sätta din egen prägel på bostaden finns det möjlighet att inom JM:s inredningsval välja färgsättning och materialval bland en mängd olika alternativ.
Badrummet är helkaklat med kakel i vitt och klinkers i grått som samspelar fint med köket och skapar en genomtänkt och medveten stil. En kommod under tvättstället gör det lätt att hålla ordning i badrummet och ovanför kombinerad tvättmaskin och torktumlare sitter förvaring i väggskåp. Andra fina detaljer i badrummet är duschväggar av glas och en praktisk torkställningen.
Bostadsrättsföreningen har en gemensam trivsam innergård där du kan njuta av trevlig samvaro och många soltimmar. I föreningen finns en övernattningslägenhet som går att hyra för föreningens medlemmar samt ett bekvämt garage under huset, här finns både vanliga platser och platser med laddbox att hyra till en månadskostnad. Utöver dessa ytor har föreningen även miljörum för källsortering och cykel- och barnvagnsförråd. Grundutbud med TV, IP-telefoni och bredband erbjuds via Telia Tripleplay och ingår i månadsavgiften.
I JMs nya kvarter Skärgårdsterrassen bor du i moderna bostäder som kombinerar fördelarna med nyproduktion med närhet till natur och hav. Härifrån tar du enkelt färjan till Vaxholms charmiga stadskärna med sitt rika utbud av caféer, restauranger och service.















