3 rok, 76 m²
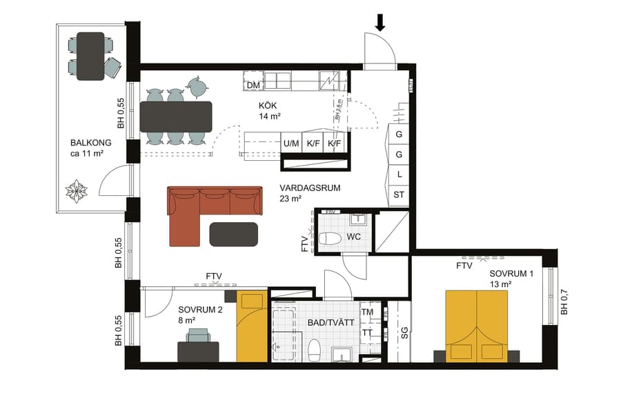
Välkommen till en genomgående bostad om tre rum och kök med rymlig balkong i västerläge med sjöglimt, flexibel planlösning och gäst-wc. Här presenteras en genomtänkt bostad som inleds med en praktisk hall med förvaring bakom garderober och direkt entré till bostaden kök. Med en delvis öppen planlösning mellan kök och vardagsrum skapas här en härlig känsla av rymd och gemenskap, utan att ge avkall på ordning och reda. De välplanerade ytorna följs även till de sociala delarna som ligger i ett fint västerläge med utgång till den rymliga balkongen som blir en naturlig förlängning av bostaden och ger plats för avkoppling större delen av året. Lägenheten präglas av luftiga ytor med alternativ planlösning för rymliga sovrum, generösa fönsterpartier och en harmonisk atmosfär som passar både vardag och helg.
I originalutförandet är färgsättningen ljus och sober med en mattlackad ekparkett och genomgående vitmålade väggar. Köket inreds då med släta vita luckor och en grå bänkskiva som fortsätter en bit upp på väggen med en bakkantslist. Köksskåpen ovan bänk är handtagslösa vilket skapar en stilren och modern känsla, under väggskåpen sitter en LED-list som ger ett bra och energisnålt arbetsljus. Handtag på bänk- och högskåp är rostfria vilket även vitvaror är och med en integrerad diskmaskinen skapas här ett enhetligt intryck. Vill du sätta din egen prägel på bostaden finns det möjlighet att inom JM:s inredningsval välja färgsättning och materialval bland en mängd olika alternativ.
Badrummet är helkaklat med kakel i vitt och klinkers i grått som samspelar fint med köket och skapar en genomtänkt och medveten stil. En kommod under tvättstället gör det lätt att hålla ordning i badrummet och ovanför tvättmaskin och torktumlare sitter förvaring i väggskåp. Andra fina detaljer i badrummet är duschväggar av glas och en praktisk torkställningen.
Bostadsrättsföreningen har en gemensam trivsam innergård där du kan njuta av trevlig samvaro och många soltimmar. I föreningen finns en övernattningslägenhet som går att hyra för föreningens medlemmar samt ett bekvämt garage under huset, här finns både vanliga platser och platser med laddbox att hyra till en månadskostnad. Utöver dessa ytor har föreningen även miljörum för källsortering och cykel- och barnvagnsförråd. Grundutbud med TV, IP-telefoni och bredband erbjuds via Telia Tripleplay och ingår i månadsavgiften.
I JMs nya kvarter Skärgårdsterrassen bor du i moderna bostäder som kombinerar fördelarna med nyproduktion med närhet till natur och hav. Härifrån tar du enkelt färjan till Vaxholms charmiga stadskärna med sitt rika utbud av caféer, restauranger och service.
I originalutförandet är färgsättningen ljus och sober med en mattlackad ekparkett och genomgående vitmålade väggar. Köket inreds då med släta vita luckor och en grå bänkskiva som fortsätter en bit upp på väggen med en bakkantslist. Köksskåpen ovan bänk är handtagslösa vilket skapar en stilren och modern känsla, under väggskåpen sitter en LED-list som ger ett bra och energisnålt arbetsljus. Handtag på bänk- och högskåp är rostfria vilket även vitvaror är och med en integrerad diskmaskinen skapas här ett enhetligt intryck. Vill du sätta din egen prägel på bostaden finns det möjlighet att inom JM:s inredningsval välja färgsättning och materialval bland en mängd olika alternativ.
Badrummet är helkaklat med kakel i vitt och klinkers i grått som samspelar fint med köket och skapar en genomtänkt och medveten stil. En kommod under tvättstället gör det lätt att hålla ordning i badrummet och ovanför tvättmaskin och torktumlare sitter förvaring i väggskåp. Andra fina detaljer i badrummet är duschväggar av glas och en praktisk torkställningen.
Bostadsrättsföreningen har en gemensam trivsam innergård där du kan njuta av trevlig samvaro och många soltimmar. I föreningen finns en övernattningslägenhet som går att hyra för föreningens medlemmar samt ett bekvämt garage under huset, här finns både vanliga platser och platser med laddbox att hyra till en månadskostnad. Utöver dessa ytor har föreningen även miljörum för källsortering och cykel- och barnvagnsförråd. Grundutbud med TV, IP-telefoni och bredband erbjuds via Telia Tripleplay och ingår i månadsavgiften.
I JMs nya kvarter Skärgårdsterrassen bor du i moderna bostäder som kombinerar fördelarna med nyproduktion med närhet till natur och hav. Härifrån tar du enkelt färjan till Vaxholms charmiga stadskärna med sitt rika utbud av caféer, restauranger och service.













