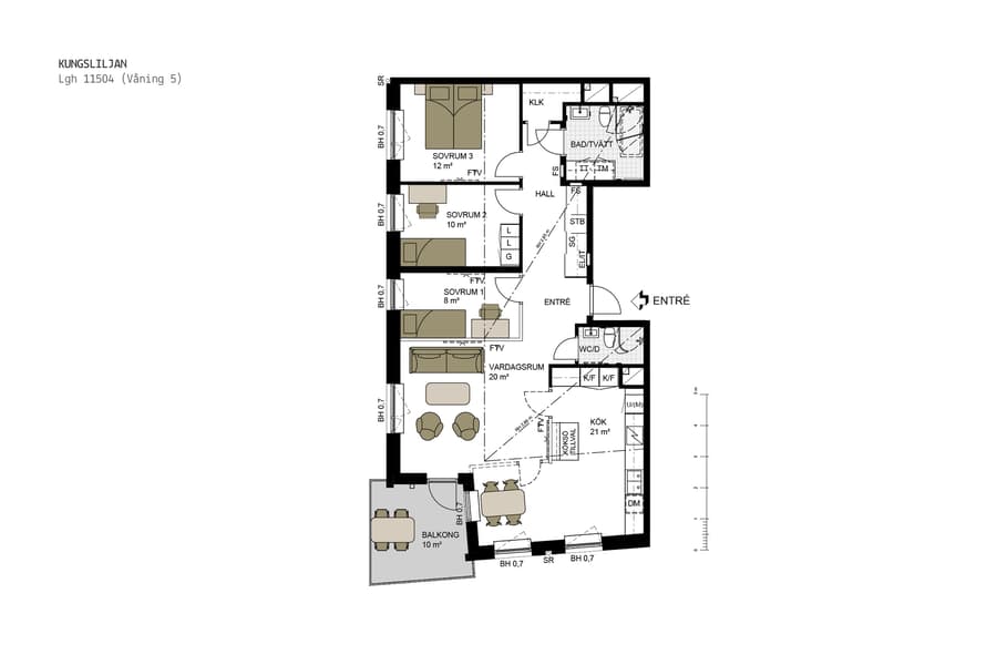
4 rok, 99 m²
Hörnlägenhet om 99 kvm med fina sällskapsytor, bra planlösning och balkong i sydväst. Rymlig hall med gott om förvaring i form av skjutdörrsgarderob. Lägenheten har delvis högre takhöjd (se ritning). Denna lägenhet har en ljusare ekparkett än standard.
Köket är modernt med beiga köksluckor samt en bänkskiva som spänner sig en bit upp på väggen och utgör en bakkantslist. Rostfria vitvaror med matchande rostfri blandare och köks-ö som tillval. Kyl, frys, diskmaskin, induktionshäll samt ugn. Allt noga utvalt för en trevlig dag i köket. Vardagsrum med utgång till hörnbalkongen som ligger i sydväst.
Vidare i bostaden finns dels extra wc med dusch, dels badrum. Badrummet är inrett i neutrala färger med vita kakelplattor och golv i beige klinker. Här finns en praktisk kommod med tvättställ i vitt, duschväggar i klarglas, förvaring i väggskåp samt arbetsbänk som sträcker sig över både tvättmaskin och torktumlare. Utanför badrummet finns en klädkammare. Lägenheten har tre bra sovrum i varierande storlek.
Bostaden har genomgående formats utifrån en stilren känsla med naturliga material så som ekparkett, fönsterbänkar i natursten och vitmålade väggar. Utifrån denna bas går det fint att bygga vidare på sin stil och sätta sin egen personliga prägel i sin bostad.
Järvastaden är ett citynära modernt och familjevänligt område med påtaglig känsla av småstadsidyll. Fina parker, härliga natur- och fritidsområden. För all tänkbar shopping och nöjen så finns Mall of Scandinavia samt Friends arena i närheten. Runt knuten erbjuds bra närservice, butiker samt goda kommunikationer.
Köket är modernt med beiga köksluckor samt en bänkskiva som spänner sig en bit upp på väggen och utgör en bakkantslist. Rostfria vitvaror med matchande rostfri blandare och köks-ö som tillval. Kyl, frys, diskmaskin, induktionshäll samt ugn. Allt noga utvalt för en trevlig dag i köket. Vardagsrum med utgång till hörnbalkongen som ligger i sydväst.
Vidare i bostaden finns dels extra wc med dusch, dels badrum. Badrummet är inrett i neutrala färger med vita kakelplattor och golv i beige klinker. Här finns en praktisk kommod med tvättställ i vitt, duschväggar i klarglas, förvaring i väggskåp samt arbetsbänk som sträcker sig över både tvättmaskin och torktumlare. Utanför badrummet finns en klädkammare. Lägenheten har tre bra sovrum i varierande storlek.
Bostaden har genomgående formats utifrån en stilren känsla med naturliga material så som ekparkett, fönsterbänkar i natursten och vitmålade väggar. Utifrån denna bas går det fint att bygga vidare på sin stil och sätta sin egen personliga prägel i sin bostad.
Järvastaden är ett citynära modernt och familjevänligt område med påtaglig känsla av småstadsidyll. Fina parker, härliga natur- och fritidsområden. För all tänkbar shopping och nöjen så finns Mall of Scandinavia samt Friends arena i närheten. Runt knuten erbjuds bra närservice, butiker samt goda kommunikationer.














