2 rok, 46 m²
Välkommen till denna 2:a med fransk balkong i nordväst och extra hög takhöjd (3,5 m) i nästan hela lägenheten.
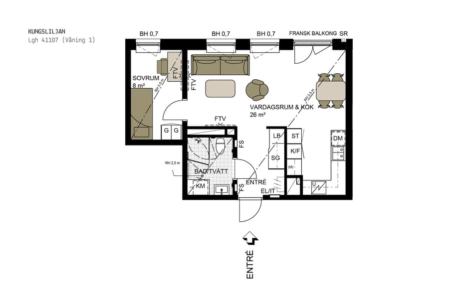
Hall med skjutdörrsgarderob och badrum i direkt anslutning. Vidare in i lägenheten finns den öppna planlösningen med kök och vardagsrum. Från kök/vardagsrum når man den franska balkongen som ligger i nordväst.
Badrummet är modernt med vita släta kakelväggar och grå klinker på golvet. Det är utrustat med en kommod med tvättställ i vitt, en praktisk arbetsbänk över kombimaskinen från Electrolux, vita väggfasta skåp för förvaring, wc, dusch med glasväggar och torkställning monterad på väggen. Köket är modernt utrustat med vita släta köksluckor och med god förvaring i såväl överskåp som i lådor samt en grå bänkskiva som spänner sig en bit upp på väggen och utgör en bakkantslist. Vitvarorna och blandaren är i rostfritt. Energieffektiv inbyggnadsugn, induktionshäll och helintegrerad diskmaskin, allt noga utvalt för en lyckad dag i köket. I sovrummet finns flera garderober och bra plats för en dubbelsäng och mindre möblering.
Lägenheten har genomgående formats utifrån en stilren känsla med naturliga material såsom ekparkett, fönsterbänkar i natursten och vitmålade väggar. Utifrån denna bas går det fint att bygga vidare på sin stil och sätta sin egen personliga prägel i sin bostad.
Järvastaden är ett citynära modernt och familjevänligt område med påtaglig känsla av småstadsidyll. Fina parker, härliga natur- och fritidsområden. För all tänkbar shopping och nöjen så finns Mall of Scandinavia samt Friends arena i närheten. Runt knuten erbjuds bra närservice, butiker samt goda kommunikationer.
Hall med skjutdörrsgarderob och badrum i direkt anslutning. Vidare in i lägenheten finns den öppna planlösningen med kök och vardagsrum. Från kök/vardagsrum når man den franska balkongen som ligger i nordväst.
Badrummet är modernt med vita släta kakelväggar och grå klinker på golvet. Det är utrustat med en kommod med tvättställ i vitt, en praktisk arbetsbänk över kombimaskinen från Electrolux, vita väggfasta skåp för förvaring, wc, dusch med glasväggar och torkställning monterad på väggen. Köket är modernt utrustat med vita släta köksluckor och med god förvaring i såväl överskåp som i lådor samt en grå bänkskiva som spänner sig en bit upp på väggen och utgör en bakkantslist. Vitvarorna och blandaren är i rostfritt. Energieffektiv inbyggnadsugn, induktionshäll och helintegrerad diskmaskin, allt noga utvalt för en lyckad dag i köket. I sovrummet finns flera garderober och bra plats för en dubbelsäng och mindre möblering.
Lägenheten har genomgående formats utifrån en stilren känsla med naturliga material såsom ekparkett, fönsterbänkar i natursten och vitmålade väggar. Utifrån denna bas går det fint att bygga vidare på sin stil och sätta sin egen personliga prägel i sin bostad.
Järvastaden är ett citynära modernt och familjevänligt område med påtaglig känsla av småstadsidyll. Fina parker, härliga natur- och fritidsområden. För all tänkbar shopping och nöjen så finns Mall of Scandinavia samt Friends arena i närheten. Runt knuten erbjuds bra närservice, butiker samt goda kommunikationer.














