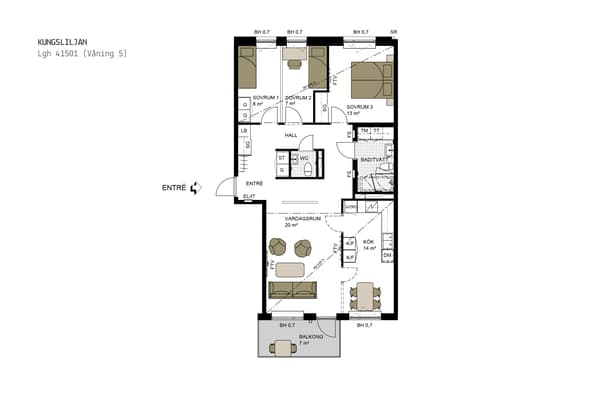
4 rok, 90 m²
Rymlig entré med avhängningsmöjligheter och några meter in i den inre hallen finns skjutdörrsgarderober med gott om förvaring. Vardagsrummet har gott om plats för soffgrupp och här finns utgången till balkongen som har ett sydostläge. Denna lägenhet har en ljusare ekparkett än standard.
Köket är modernt med vita köksluckor samt en grå bänkskiva som spänner sig en bit upp på väggen och utgör en bakkantslist. Rostfria vitvaror med matchande rostfri blandare. Diskmaskin, kyl, frys induktionshäll samt ugn. Allt noga utvalt för en trevlig dag i köket. Det stora badrummet är inrett i neutrala färger med vita kakelplattor och golv i grå klinker. Här finns en praktisk kommod med tvättställ i vitt, duschväggar i klarglas, förvaring i väggskåp samt arbetsbänk som sträcker sig över både tvättmaskin och torktumlare. Det finns även ett gäst-wc.
Bostaden har genomgående formats utifrån en stilren känsla med naturliga material så som ekparkett, fönsterbänkar i natursten och vitmålade väggar. Utifrån denna bas går det fint att bygga vidare på sin stil och sätta sin egen personliga prägel i sin bostad.
Järvastaden är ett citynära modernt och familjevänligt område med påtaglig känsla av småstadsidyll. Fina parker, härliga natur- och fritidsområden. För all tänkbar shopping och nöjen så finns Mall of Scandinavia samt Friends arena i närheten. Runt knuten erbjuds bra närservice, butiker samt goda kommunikationer.
Köket är modernt med vita köksluckor samt en grå bänkskiva som spänner sig en bit upp på väggen och utgör en bakkantslist. Rostfria vitvaror med matchande rostfri blandare. Diskmaskin, kyl, frys induktionshäll samt ugn. Allt noga utvalt för en trevlig dag i köket. Det stora badrummet är inrett i neutrala färger med vita kakelplattor och golv i grå klinker. Här finns en praktisk kommod med tvättställ i vitt, duschväggar i klarglas, förvaring i väggskåp samt arbetsbänk som sträcker sig över både tvättmaskin och torktumlare. Det finns även ett gäst-wc.
Bostaden har genomgående formats utifrån en stilren känsla med naturliga material så som ekparkett, fönsterbänkar i natursten och vitmålade väggar. Utifrån denna bas går det fint att bygga vidare på sin stil och sätta sin egen personliga prägel i sin bostad.
Järvastaden är ett citynära modernt och familjevänligt område med påtaglig känsla av småstadsidyll. Fina parker, härliga natur- och fritidsområden. För all tänkbar shopping och nöjen så finns Mall of Scandinavia samt Friends arena i närheten. Runt knuten erbjuds bra närservice, butiker samt goda kommunikationer.













