Boka bostaden före någon annan

Läs mer om hur det funkar att boka bostad

1 rok, 30 m²

Till salu
Pris
1 990 000 kr
Avgift
2 740 kr
Våning
1 / 6
Uteplats
19 m², Sydost
Tillträde
preliminärt från juli 2027

Boka bostaden före någon annan!

Den här bostaden går att boka. Läs mer om hur det funkar att boka bostad hos JM.

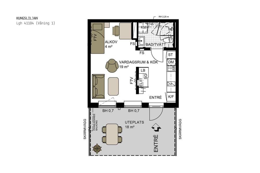
Planlösning

I planlösningen visas bostadsytans disposition. Se information så som mått, hur rummen är uppdelade och balkongens placering.

Floorplan

Balkongutsikt

Visionsbild som visar utsikten från balkongen eller uteplatsen.

Bostäderna är miljömärkta

Läs mer

Trygg bostadsrättsmarknad

Läs mer

Välj bostad

Se och jämför bostäderna i bostadsväljaren. Det du ser är visionsbilder och avvikelser kan förekomma.

Dölj alla bostäder
StatusRumPrisAvgiftBoareaVåningTillträdeNrAdress
Till salu11 990 000 kr2 740 kr30 m²3 / 6sep 202611301Lekparksgatan 13Läs mer om objekt 11301
Till salu11 990 000 kr2 870 kr33 m²1 / 6sep 202621102Järva Skjutbaneväg 44Läs mer om objekt 21102
Till salu11 990 000 kr2 740 kr30 m²1 / 6preliminärt från juli 202741103Torrängsgatan 16Läs mer om objekt 41103
Till salu11 990 000 kr2 740 kr30 m²1 / 6preliminärt från juli 202741104Torrängsgatan 16Läs mer om objekt 41104
Till salu12 090 000 kr2 740 kr30 m²4 / 6sep 202611401Lekparksgatan 13Läs mer om objekt 11401

Kungsliljan

Kungsliljan består av nyproducerade bostadsrätter med ett grönskande läge. Här finns lägenheter med olika karaktär och storlekar, för att passa både det mindre hushållet och barnfamiljen. De flesta med balkong eller uteplats.

Läs mer om projektet

Tidslinje

Bostäderna färdigställs
Vår & sommar 2026
Nu bygger vi färdigt de nya bostäderna! Du som köper en bostad kommer att bjudas in till visning av din bostad innan ditt tillträde.

/ 8
laddar

Intresseanmälan

Ansvarig mäklare kommer att kontakta dig med mer information om bostäderna när du har anmält intresse.

Om du har ett konto hos oss sedan tidigare blir du ombedd att logga in för att slutföra din intresseanmälan.

Fler bostäder i närheten

Se alla

Till salu

1 rok, 30 m²

Solna kommun / Järvastaden / Kungsliljan

1 990 000 kr

Bostadsrätt • Våning 3/6

Till salu

1 rok, 30 m²

Solna kommun / Järvastaden / Kungsliljan

2 090 000 kr

Bostadsrätt • Våning 4/6

Till salu

1 rok, 30 m²

Solna kommun / Järvastaden / Kungsliljan

2 190 000 kr

Bostadsrätt • Våning 5/6