4 rok, 95 m²
Välkomna till natur- och stadsnära Järvastaden och denna trevliga lägenhet om 95 kvm balkong i nordost. Denna lägenhet har en ljusare ekparkett än standard.
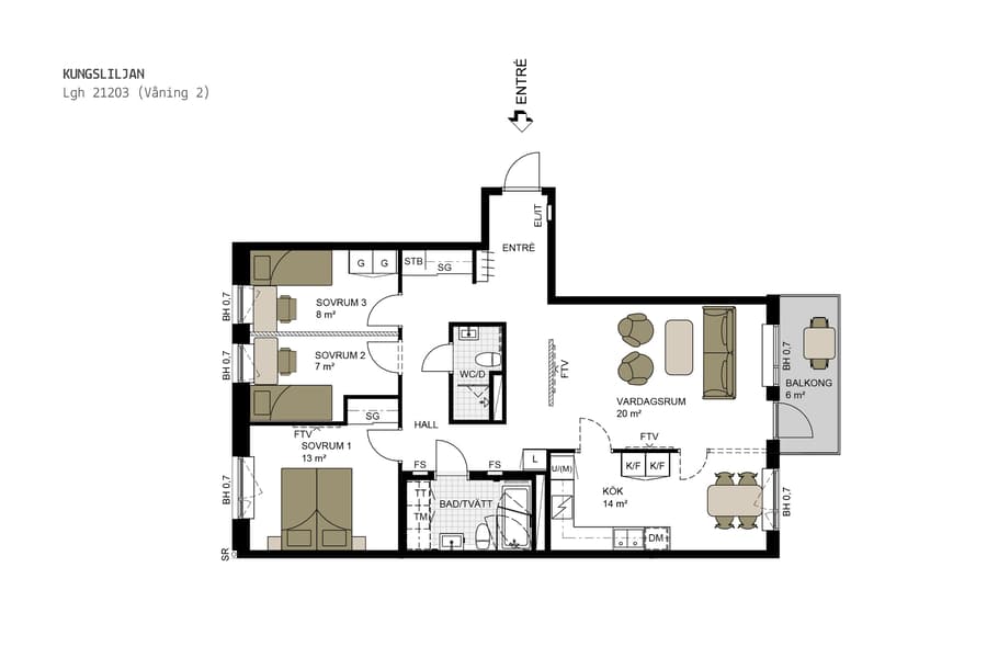
Bostaden är genomgående med en generös yta i hallen för svängrum och har goda förvaringsmöjligheter och från hallen når man gäst-WC med dusch. Det stora badrummet är vitkaklat med golv i beige klinker och här finns en vit kommod med tvättställ och spegel ovanför. Över tvättmaskinen och torktumlaren finns det en praktisk arbetsbänk med skåp ovanför för mer förvaring.
Köket och vardagsrummet utgör tillsammans bostadens sällskapsyta och vardagsrummet förlängs med balkongen. Köket är modernt med beiga skåpsluckor som harmoniserar med bänkskivan som spänner sig en bit upp på väggen och utgör en bakkantslist. Energieffektiva vitvaror i rostfritt, rostfri blandare, integrerad diskmaskin samt ugn som noga är utvalda för att lyckas i köket.
Tre bra sovrum och två av dem har skjutdörrsgarderob respektive garderober.
Lägenhetens interiör är utformad utifrån en stilren känsla med naturliga material så som ekparkett, fönsterbänkar i natursten och vitmålade väggar. En riktigt bra lägenhet som passar barnfamiljen perfekt!
Järvastaden är ett citynära modernt och familjevänligt område med påtaglig känsla av småstadsidyll. Fina parker, härliga natur- och fritidsområden. För all tänkbar shopping och nöjen så finns Mall of Scandinavia samt Friends arena i närheten. Runt knuten erbjuds bra närservice, butiker samt goda kommunikationer.
Bostaden är genomgående med en generös yta i hallen för svängrum och har goda förvaringsmöjligheter och från hallen når man gäst-WC med dusch. Det stora badrummet är vitkaklat med golv i beige klinker och här finns en vit kommod med tvättställ och spegel ovanför. Över tvättmaskinen och torktumlaren finns det en praktisk arbetsbänk med skåp ovanför för mer förvaring.
Köket och vardagsrummet utgör tillsammans bostadens sällskapsyta och vardagsrummet förlängs med balkongen. Köket är modernt med beiga skåpsluckor som harmoniserar med bänkskivan som spänner sig en bit upp på väggen och utgör en bakkantslist. Energieffektiva vitvaror i rostfritt, rostfri blandare, integrerad diskmaskin samt ugn som noga är utvalda för att lyckas i köket.
Tre bra sovrum och två av dem har skjutdörrsgarderob respektive garderober.
Lägenhetens interiör är utformad utifrån en stilren känsla med naturliga material så som ekparkett, fönsterbänkar i natursten och vitmålade väggar. En riktigt bra lägenhet som passar barnfamiljen perfekt!
Järvastaden är ett citynära modernt och familjevänligt område med påtaglig känsla av småstadsidyll. Fina parker, härliga natur- och fritidsområden. För all tänkbar shopping och nöjen så finns Mall of Scandinavia samt Friends arena i närheten. Runt knuten erbjuds bra närservice, butiker samt goda kommunikationer.














