3 rok, 82 m²
Välkommen till denna hörnlägenhet högst upp i huset som har en väldigt stor terrass om ca 69 kvm som vetter mot sydost och sydväst. Vid hallen finns en praktisk klädkammare med gott om plats för avhängning och förvaring.
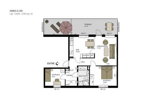
Bostaden är yteffektivt planerad utifrån en öppen planlösning med kök och vardagsrum på ena sidan av lägenheten och sovrummen på motsatt sida. Sällskapsdelen är generöst tilltagen med separat plats för matbord vid fönster och gott om plats för soffgrupp samt annan möblering. Den soliga terrassen som sträcker sig runt hela lägenheten skapar ett djup till och här kommer man spendera många soliga stunder. Denna lägenhet har en ljusare ekparkett än standard.
Köket är modernt och fullutrustat med beiga köksluckor samt en bänkskiva som spänner sig en bit upp på väggen som utgör en bakkantslist. Rostfria vitvaror med matchande rostfri blandare. Energieffektiv helintegrerad diskmaskin, induktionshäll samt ugn från Siemens. Allt noga utvalt för en trevlig dag i köket.
Badrummets vitkaklade väggar i kombination med beig klinker harmoniserar med varandra och är tänkt att inge en känsla av välbefinnande. Badrummet är fullutrustat med vit kommod med tvättställ, en generös arbetsbänk som sträcker sig över såväl tvättmaskinen som torktumlaren, överskåp med bra förvaring samt dusch med duschvägg i klarglas. Två bra sovrum med garderob i båda.
Bostadens interiör är utformad utifrån en stilren känsla med naturliga material så som ekparkett, fönsterbänkar i natursten och vitmålade väggar. Denna bas ligger till grund för att var och en sen ska sätta sin egen prägel utifrån eget önskemål och preferens. Järvastaden är ett citynära modernt och familjevänligt område med påtaglig känsla av småstadsidyll. Fina parker, härliga natur- och fritidsområden. För all tänkbar shopping och nöjen så finns Mall of Scandinavia samt Friends arena i närheten. Runt knuten erbjuds bra närservice, butiker samt goda kommunikationer.
Bostaden är yteffektivt planerad utifrån en öppen planlösning med kök och vardagsrum på ena sidan av lägenheten och sovrummen på motsatt sida. Sällskapsdelen är generöst tilltagen med separat plats för matbord vid fönster och gott om plats för soffgrupp samt annan möblering. Den soliga terrassen som sträcker sig runt hela lägenheten skapar ett djup till och här kommer man spendera många soliga stunder. Denna lägenhet har en ljusare ekparkett än standard.
Köket är modernt och fullutrustat med beiga köksluckor samt en bänkskiva som spänner sig en bit upp på väggen som utgör en bakkantslist. Rostfria vitvaror med matchande rostfri blandare. Energieffektiv helintegrerad diskmaskin, induktionshäll samt ugn från Siemens. Allt noga utvalt för en trevlig dag i köket.
Badrummets vitkaklade väggar i kombination med beig klinker harmoniserar med varandra och är tänkt att inge en känsla av välbefinnande. Badrummet är fullutrustat med vit kommod med tvättställ, en generös arbetsbänk som sträcker sig över såväl tvättmaskinen som torktumlaren, överskåp med bra förvaring samt dusch med duschvägg i klarglas. Två bra sovrum med garderob i båda.
Bostadens interiör är utformad utifrån en stilren känsla med naturliga material så som ekparkett, fönsterbänkar i natursten och vitmålade väggar. Denna bas ligger till grund för att var och en sen ska sätta sin egen prägel utifrån eget önskemål och preferens. Järvastaden är ett citynära modernt och familjevänligt område med påtaglig känsla av småstadsidyll. Fina parker, härliga natur- och fritidsområden. För all tänkbar shopping och nöjen så finns Mall of Scandinavia samt Friends arena i närheten. Runt knuten erbjuds bra närservice, butiker samt goda kommunikationer.














