3 rok, 78 m²
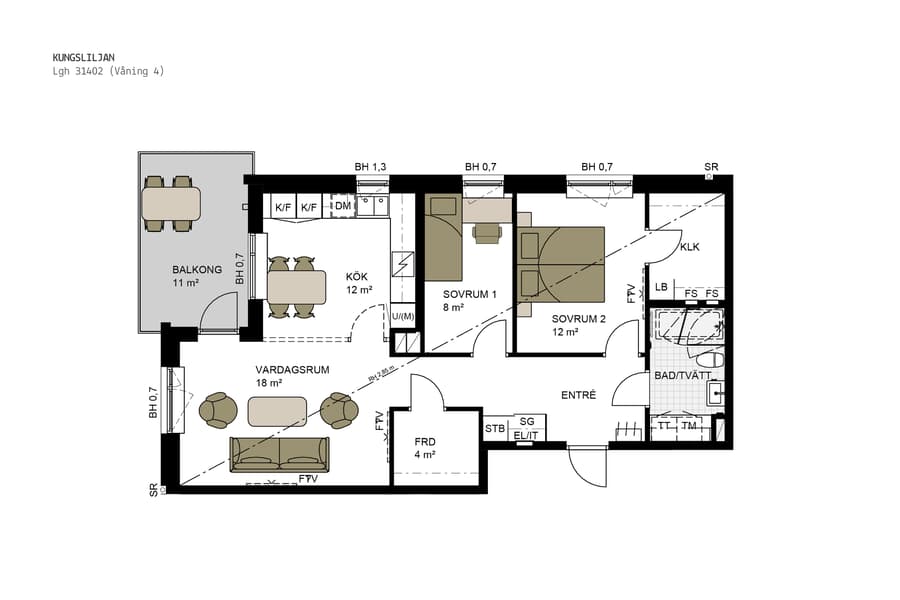
Hörnlägenhet med ljusinsläpp från två väderstreck, stor balkong i sydväst samt en takhöjd om 2,85 m (2,5 m är standardhöjd). Hallen är rymlig och utrustad med skjutdörrsgarderob. Direkt till höger ligger det väl tilltagna badrummet som har vitkaklade väggar med grå klinkergolv. Det är fullutrustat med vit kommod med tvättställ, en generös arbetsbänk som sträcker sig över såväl tvättmaskinen som torktumlaren, överskåp med bra förvaring samt dusch med duschväggar i klarglas. Önskas så finns det möjlighet att byta ut duschen mot badkar.
Bostaden är smart planerad utifrån en öppen planlösning med kök och vardagsrum på ena sidan av lägenheten och de två sovrummen med badrum på den motsatta sidan. Sällskapsytan i lägenheten är generöst tilltagen och här finns plats för matbord och gott om plats för soffgrupp och annan möblering. Från vardagsrummet har man möjlighet att gå ut på lägenhetens balkong som ligger i sydväst.
Köket är modernt och har vita köksluckor samt en grå bänkskiva som spänner sig en bit upp på väggen och utgör en bakkantslist. Kyl, frys, diskmaskin, induktionshäll samt ugn.
Två bra sovrum och det större har en rymlig klädkammare med stora förvaringsmöjligheter. Denna lägenhet har inget externt förråd utan förrådet ligger i lägenheten.
Bostadens interiör är utformad utifrån en stilren känsla med naturliga material så som ekparkett, fönsterbänkar i natursten och vitmålade väggar. Denna bas ligger till grund för att var och en sen ska sätta sin egen prägel utifrån eget önskemål och preferens.
Järvastaden är ett citynära modernt och familjevänligt område med påtaglig känsla av småstadsidyll. Fina parker, härliga natur- och fritidsområden. För all tänkbar shopping och nöjen så finns Mall of Scandinavia samt Friends arena i närheten. Runt knuten erbjuds bra närservice, butiker samt goda kommunikationer.
Bostaden är smart planerad utifrån en öppen planlösning med kök och vardagsrum på ena sidan av lägenheten och de två sovrummen med badrum på den motsatta sidan. Sällskapsytan i lägenheten är generöst tilltagen och här finns plats för matbord och gott om plats för soffgrupp och annan möblering. Från vardagsrummet har man möjlighet att gå ut på lägenhetens balkong som ligger i sydväst.
Köket är modernt och har vita köksluckor samt en grå bänkskiva som spänner sig en bit upp på väggen och utgör en bakkantslist. Kyl, frys, diskmaskin, induktionshäll samt ugn.
Två bra sovrum och det större har en rymlig klädkammare med stora förvaringsmöjligheter. Denna lägenhet har inget externt förråd utan förrådet ligger i lägenheten.
Bostadens interiör är utformad utifrån en stilren känsla med naturliga material så som ekparkett, fönsterbänkar i natursten och vitmålade väggar. Denna bas ligger till grund för att var och en sen ska sätta sin egen prägel utifrån eget önskemål och preferens.
Järvastaden är ett citynära modernt och familjevänligt område med påtaglig känsla av småstadsidyll. Fina parker, härliga natur- och fritidsområden. För all tänkbar shopping och nöjen så finns Mall of Scandinavia samt Friends arena i närheten. Runt knuten erbjuds bra närservice, butiker samt goda kommunikationer.
















