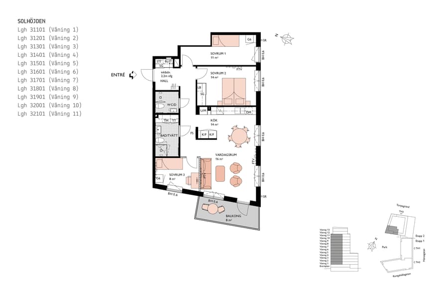
4 rok, 87 m²
På elfte våningen finner du denna trevliga gavelfyra i soligt läge med alla bekvämligheter som förväntas av ett nyproducerat boende. Upplev bekvämligheterna med ditt nya boende i Kongahälla.
Stig in i hallen som möter dig med förvaring i både skjutdörrsgarderob och kapphylla. Vidare finner du de första två sovrummen som båda är rymliga. Det större av dem är perfekt för dubbelsängen och tillhörande nattduksbord och erbjuder förvaring i skjutdörrsgarderob medan det något mindre har en garderob för förvaring och är bättre lämpat för enkelsäng och vidare möblemang.
Från den inre hallen nås de två helkaklade badrummen. Det första är utrustat med duschhörna, kommod med förvaring, spegel och toalett medan det andra, tillika största badrummet, även har en tvättdel med tvätmaskin, torktumlare, arbetsbänk och väggskåp.
Härifrån når du de sociala ytorna med kök och vardagsrum i ett halvöppet samband. Det lättarbetade köket har gott om plats för matlagning i gemenskap och förvaring erbjuds i flera skåp och lådor. Här finns allt du kan förvänta dig av ett modernt kök i form av energisnåla vitvaror som utgörs av två kombinerade kyl/frys, inbyggnadsugn och mikro, induktionshäll samt integrerad diskmaskin.
Invid fönster finns gott om plats för matgrupp där du dukar upp till såväl vardagsmiddagen som festmåltiden med nära och kära.
Vardagsrummet i sin tur har plats för soffgrupp, tv-möbel och vidare möblemang. Sommartid öppnar du fördelaktigen upp till balkongen i västerläge med utsikt den blivande kommunala parken.
Från vardagsrummet nås det sista av de tre sovrummen. Ett mindre sovrum med förvaring i en garderob. Detta sovrum kan väljas bort till fördel för ett större vardagsrum och generösa umgängesytor.
JM erbjuder sobra materialval med en genomgående hög finish. Originalinredningen går i tidlöst vitt, både vad gäller väggfärg, köks- och badrumsinredning. I köket kompletteras det vita med kontrasterande grå arbetsbänk som fortsätter upp som bakkantslist en bit på väggen. Maskinparken går i rostfritt. I badrummet kompletteras det vita av grått klinkergolv. Därtill finns flera tillval att göra.
I Solhöjden bor du centralt och känner pulsen i denna nya stadsdel med all tänkbar service och kommunikationer runt husknuten. Är du inte bekant med området finns här ett stort utbud av butiker, caféer och restauranger och en kort promenad bort ligger Resecentrum för smidig transport både söder-och norrut.
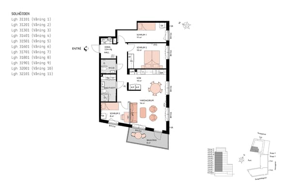
Stig in i hallen som möter dig med förvaring i både skjutdörrsgarderob och kapphylla. Vidare finner du de första två sovrummen som båda är rymliga. Det större av dem är perfekt för dubbelsängen och tillhörande nattduksbord och erbjuder förvaring i skjutdörrsgarderob medan det något mindre har en garderob för förvaring och är bättre lämpat för enkelsäng och vidare möblemang.
Från den inre hallen nås de två helkaklade badrummen. Det första är utrustat med duschhörna, kommod med förvaring, spegel och toalett medan det andra, tillika största badrummet, även har en tvättdel med tvätmaskin, torktumlare, arbetsbänk och väggskåp.
Härifrån når du de sociala ytorna med kök och vardagsrum i ett halvöppet samband. Det lättarbetade köket har gott om plats för matlagning i gemenskap och förvaring erbjuds i flera skåp och lådor. Här finns allt du kan förvänta dig av ett modernt kök i form av energisnåla vitvaror som utgörs av två kombinerade kyl/frys, inbyggnadsugn och mikro, induktionshäll samt integrerad diskmaskin.
Invid fönster finns gott om plats för matgrupp där du dukar upp till såväl vardagsmiddagen som festmåltiden med nära och kära.
Vardagsrummet i sin tur har plats för soffgrupp, tv-möbel och vidare möblemang. Sommartid öppnar du fördelaktigen upp till balkongen i västerläge med utsikt den blivande kommunala parken.
Från vardagsrummet nås det sista av de tre sovrummen. Ett mindre sovrum med förvaring i en garderob. Detta sovrum kan väljas bort till fördel för ett större vardagsrum och generösa umgängesytor.
JM erbjuder sobra materialval med en genomgående hög finish. Originalinredningen går i tidlöst vitt, både vad gäller väggfärg, köks- och badrumsinredning. I köket kompletteras det vita med kontrasterande grå arbetsbänk som fortsätter upp som bakkantslist en bit på väggen. Maskinparken går i rostfritt. I badrummet kompletteras det vita av grått klinkergolv. Därtill finns flera tillval att göra.
I Solhöjden bor du centralt och känner pulsen i denna nya stadsdel med all tänkbar service och kommunikationer runt husknuten. Är du inte bekant med området finns här ett stort utbud av butiker, caféer och restauranger och en kort promenad bort ligger Resecentrum för smidig transport både söder-och norrut.













