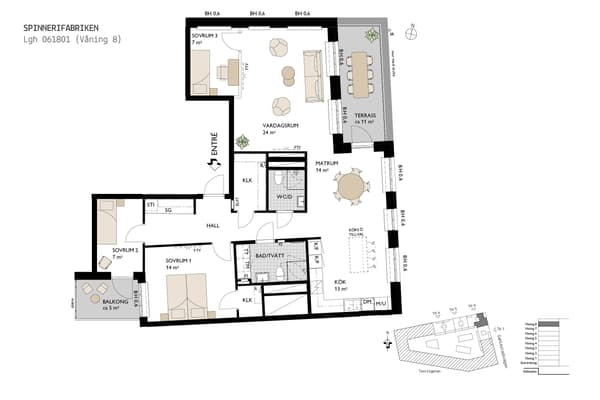
4 rok, 96 m²
En trappa upp finner du denna genomtänkta gavelfyra med dubbla balkonger och alla bekvämligheter som förväntas av ett nyproducerat boende.
Stig in i hallen som möter dig med generösa förvaringsytor bakom kvadratsmarta skjutdörrar i spegelglas. På motsatt sida finner du det första av två helkaklade badrum, detta med dusch bakom skärmvägg i klarglas, vägghängd kommod och toalett.
Vidare finner du kök och vardagsrum i ett öppet samband. Det lättarbetade köket har gott om plats för matlagning i gemenskap och förvaring erbjuds i flera skåp och lådor. Här finns allt du kan förvänta dig av ett modernt kök i form av energisnåla vitvaror som utgörs av två kombinerade kyl/frys, inbyggnadsugn och mikro, induktionshäll samt integrerad diskmaskin. En halvvägg separerar köket från vardagsrummet och på köpet får du en given tv-vägg på motsatt sida.
Invid fönster finns gott om plats för matgrupp där du dukar upp till såväl vardagsmiddagen som festmåltiden med nära och kära. Intill återfinns och bostadens klädkammare med ett flexibelt hyllsystem som låter dig anpassa förvaringslösningen efter dina behov.
Vardagsrummet i sin tur har plats för soffgrupp, tv-möbel och vidare möblemang. Sommartid öppnar du fördelaktigen upp till balkongen där morgonkaffet intas i förmiddagssolen.
I bostadens motsatta ände är sovrummen belägna. Samtliga tre sovrum är lättmöblerade och de två mindre om ca 8 kvm har plats för sängmöbel och skrivbord medan det större inrymmer dubbelsäng och tillhörande nattduksbord. En skjutdörrsgarderob erbjuder förvaring. Från det större sovrummet nås bostadens andra balkong med trevlig utblick mot Safjällets natur. Här kan du njuta av solen under sen eftermiddag och inpå kvällen.
I anslutning till sovrummen är det andra badrummet beläget. Även det är helkaklat och inrymmer duschhörna med svängbara dörrar i klarglas. Här finns gott om förvaring i vägghängd kommod och flera väggskåp. Under arbetsbänken finner du tvättmaskin och torktumlare, för att smidigt hantera klädvården i vardagen. Inget mer spring till tvättstugan här inte!
JM erbjuder sobra materialval med en genomgående hög finish. Denna lägenhet levereras med konceptet JM Original vilket innebär en genomgående neutral inredning i form av vita väggar och ekparkettgolv. Vitt kök från Vedum med grå arbetsbänk i laminat som fortsätter en bit upp på väggen som stänkskydd och kvalitativa rostfria vitvaror från Electrolux och Franke. Två badrum som båda har matt vitt kakel i stående sättning, grå klinkergolv, belyst spegel och vit kommod. En neutral grund där du kan sätta din prägel genom möbler och inredning.
I Safjället Ägarlägenheter bor du centralt vid foten av det vackra Safjället som utöver avkopplande natur även erbjuder belyst motionsspår och fotbollsplan. På bekvämt promenadavstånd finns flera förskolor och skolor samt Mölndals centrum med sitt breda utbud av butiker, service, restauranger och caféer. Ett stenkast bort ligger Mölndals sjukhus medan Sahlgrenska sjukhuset, Pedagogen och Chalmers finns på bekvämt pendlingsavstånd. Goda kommunikationer med bil, buss, cykel och spårvagn tar dig snabbt och lätt till både Göteborg och Mölndal centrum.
Stig in i hallen som möter dig med generösa förvaringsytor bakom kvadratsmarta skjutdörrar i spegelglas. På motsatt sida finner du det första av två helkaklade badrum, detta med dusch bakom skärmvägg i klarglas, vägghängd kommod och toalett.
Vidare finner du kök och vardagsrum i ett öppet samband. Det lättarbetade köket har gott om plats för matlagning i gemenskap och förvaring erbjuds i flera skåp och lådor. Här finns allt du kan förvänta dig av ett modernt kök i form av energisnåla vitvaror som utgörs av två kombinerade kyl/frys, inbyggnadsugn och mikro, induktionshäll samt integrerad diskmaskin. En halvvägg separerar köket från vardagsrummet och på köpet får du en given tv-vägg på motsatt sida.
Invid fönster finns gott om plats för matgrupp där du dukar upp till såväl vardagsmiddagen som festmåltiden med nära och kära. Intill återfinns och bostadens klädkammare med ett flexibelt hyllsystem som låter dig anpassa förvaringslösningen efter dina behov.
Vardagsrummet i sin tur har plats för soffgrupp, tv-möbel och vidare möblemang. Sommartid öppnar du fördelaktigen upp till balkongen där morgonkaffet intas i förmiddagssolen.
I bostadens motsatta ände är sovrummen belägna. Samtliga tre sovrum är lättmöblerade och de två mindre om ca 8 kvm har plats för sängmöbel och skrivbord medan det större inrymmer dubbelsäng och tillhörande nattduksbord. En skjutdörrsgarderob erbjuder förvaring. Från det större sovrummet nås bostadens andra balkong med trevlig utblick mot Safjällets natur. Här kan du njuta av solen under sen eftermiddag och inpå kvällen.
I anslutning till sovrummen är det andra badrummet beläget. Även det är helkaklat och inrymmer duschhörna med svängbara dörrar i klarglas. Här finns gott om förvaring i vägghängd kommod och flera väggskåp. Under arbetsbänken finner du tvättmaskin och torktumlare, för att smidigt hantera klädvården i vardagen. Inget mer spring till tvättstugan här inte!
JM erbjuder sobra materialval med en genomgående hög finish. Denna lägenhet levereras med konceptet JM Original vilket innebär en genomgående neutral inredning i form av vita väggar och ekparkettgolv. Vitt kök från Vedum med grå arbetsbänk i laminat som fortsätter en bit upp på väggen som stänkskydd och kvalitativa rostfria vitvaror från Electrolux och Franke. Två badrum som båda har matt vitt kakel i stående sättning, grå klinkergolv, belyst spegel och vit kommod. En neutral grund där du kan sätta din prägel genom möbler och inredning.
I Safjället Ägarlägenheter bor du centralt vid foten av det vackra Safjället som utöver avkopplande natur även erbjuder belyst motionsspår och fotbollsplan. På bekvämt promenadavstånd finns flera förskolor och skolor samt Mölndals centrum med sitt breda utbud av butiker, service, restauranger och caféer. Ett stenkast bort ligger Mölndals sjukhus medan Sahlgrenska sjukhuset, Pedagogen och Chalmers finns på bekvämt pendlingsavstånd. Goda kommunikationer med bil, buss, cykel och spårvagn tar dig snabbt och lätt till både Göteborg och Mölndal centrum.
















