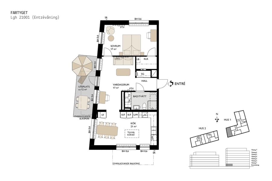
2 rok, 69 m²
Denna tvåa på 69 kvm är skapad för dig som vill ha både rymd och trivsel. När du kliver in möts du av ett ljust hem där kök och vardagsrum binds samman i en öppen planlösning, en naturlig plats för middagar, vänner och gemenskap. Sovrummet är rymligt och erbjuder bra förvaring, medan den stora uteplatsen förlänger vardagsrummet och blir en perfekt plats för frukost i solen eller en kväll med något gott i glaset.
I Fartyget får du nyproduktion när den är som bäst, ljusa materialval, kök från Vedum och vitvaror från Electrolux. Här finns garage med laddplatser, cykelhus och praktiska lösningar som gör vardagen enkel.
Dockan är ett område som kombinerar det bästa av två världar. Här har du närheten till havet för avkoppling och natur, samtidigt som stadens puls, restauranger och service ligger ett stenkast bort. Ett boende som ger dig en komplett livsstil.
I Fartyget får du nyproduktion när den är som bäst, ljusa materialval, kök från Vedum och vitvaror från Electrolux. Här finns garage med laddplatser, cykelhus och praktiska lösningar som gör vardagen enkel.
Dockan är ett område som kombinerar det bästa av två världar. Här har du närheten till havet för avkoppling och natur, samtidigt som stadens puls, restauranger och service ligger ett stenkast bort. Ett boende som ger dig en komplett livsstil.













